1665 nemovitostí v ČESKÉ REPUBLICE
116 nemovitostí v ZAHRANIČÍ

Hlavní město Praha

Středočeský kraj

Jihočeský kraj

Plzeňský kraj

Karlovarský kraj

Ústecký kraj

Liberecký kraj

Královéhradecký kraj

Pardubický kraj

Kraj Vysočina

Jihomoravský kraj

Olomoucký kraj

Moravskoslezský kraj

Zlínský kraj

ZEMĚ

DISPOZICE

CENA A PLOCHA

Cena od
Cena do
Plocha od
Plocha do
Zobrazit nabídky
12 fotografií

Prodej rodinného domu, 162 m²

Budiměřice 66, Budiměřice
8 499 000 Kč (za nemovitost)
cena včetně odměny a právníhi servisu!

Nejde o to, co tu stojí dnes.
Jde o to, co tu může stát za pár měsíců.

Místo, kde si můžete vytvořit domov přesně podle sebe.

Nabízím k prodeji rozestavěnou novostavbu rodinného domu o dispozici 5+kk s užitnou plochou cca 162 m², která stojí na pozemku o velikosti 571 m² v klidné části obce Budiměřice, okres Nymburk.
Dům se nachází na okraji obce s přímou návazností na volnou krajinu, což zajišťuje klid, soukromí a otevřený prostor kolem domu.

Projekt počítá s komfortním zázemím pro rodinu, dostatkem prostoru i praktickým uspořádáním každodenního života.

Součástí inzerce je vizualizace možného finálního stavu domu.

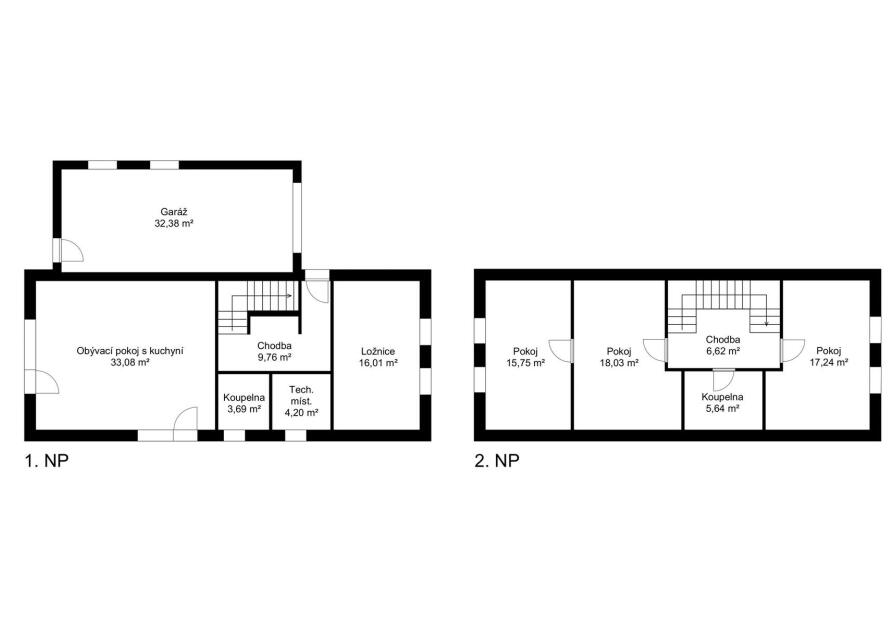
Dispozice a prostor

Dům je koncipován jako dvoupodlažní.

V přízemí vzniká hlavní obytný prostor – obývací pokoj propojený s kuchyní a jídelnou, s přímou návazností na zahradu. Dále zde najdete další pokoj (ideální jako ložnice, pracovna nebo pokoj pro hosty), koupelnu, technické zázemí a vstupní část domu.

V patře je navržen klidový prostor – tři samostatné pokoje a druhá koupelna. Dispozice je řešena tak, aby dům fungoval přirozeně a dlouhodobě pro rodinné bydlení.

Součástí domu je také integrovaná garáž a další parkovací stání na pozemku.
Všechny pokoje mají nadstandardní výměry, které nejsou u dnešních novostaveb běžné. Orientační plánek včetně rozměrů je součástí fotodokumentace.

Technické řešení

Dům je realizován jako zděná novostavba s důrazem na energetickou efektivitu a moderní technologie:

• vytápění tepelným čerpadlem
• napojení na vodovod, kanalizaci a elektřinu
• příprava kompletních rozvodů
• dešťová voda řešena vsakem na pozemku

Projektová dokumentace je k dispozici.

Pozemek a okolí

Pozemek je rovinatý, situovaný v zastavěné části obce s okolní zástavbou rodinných domů. Lokalita působí klidně, s bezprostředním napojením na zeleň a příjemnou atmosférou menší obce.

Budiměřice nabízejí kombinaci klidu a dostupnosti – Nymburk je vzdálen jen pár minut jízdy, Praha cca 45 minut (D11 / vlak).
Přímo v obci najdete základní vybavenost – mateřskou školu, obchod i obecní úřad.

Potenciál

Tohle není hotový dům.
A právě v tom je jeho největší výhoda.

Máte možnost dokončit ho přesně podle sebe – materiály, standard, dispoziční detaily i celkový styl. Vytvořit si domov, který nebude kompromisem, ale přesným odrazem toho, jak chcete bydlet.

Dům bude dokončen do fáze shell & core ve druhém kvartálu tohoto roku, přičemž zhotovitel je připraven zajistit dokončení dle individuálních požadavků konkrétního klienta.

Tato nemovitost je ideální pro klienty, kteří nehledají „hotové řešení“, ale příležitost.

Ráda vám nemovitost představím osobně a společně projdeme možnosti dokončení i další postup.
Ozvěte se a domluvíme si termín prohlídky. Pro komunikaci uvádějte evidenční číslo zakázky N117514.

Typ zakázky:
Prodej
Stav objektu:
Ve výstavbě
Užitná plocha:
162 m²
Plocha pozemku:
571 m²
Typ nemovitosti:
Rodinný
Poloha domu:
Samostatný
Typ domu:
Patrový
Garáž:
ANO
Parkovací místo:
ANO
Energ. nár. budovy:
B - Velmi úsporná
ID zakázky:
N117514
Pro pohyb mapy použijte dva prsty.
HYPOTEČNÍ KALKULAČKA
Hodnota nemovitosti
8 499 000 Kč
Výše úvěru
Vlastní zdroje
Doba splácení
let
Tato nemovitost již od měsíčně s roční úrokovou sazbou od 4,39 %.
Zjistit více informací
PODOBNÉ NEMOVITOSTI