1675 nemovitostí v ČESKÉ REPUBLICE
116 nemovitostí v ZAHRANIČÍ

Hlavní město Praha

Středočeský kraj

Jihočeský kraj

Plzeňský kraj

Karlovarský kraj

Ústecký kraj

Liberecký kraj

Královéhradecký kraj

Pardubický kraj

Kraj Vysočina

Jihomoravský kraj

Olomoucký kraj

Moravskoslezský kraj

Zlínský kraj

ZEMĚ

DISPOZICE

CENA A PLOCHA

Cena od
Cena do
Plocha od
Plocha do
Zobrazit nabídky

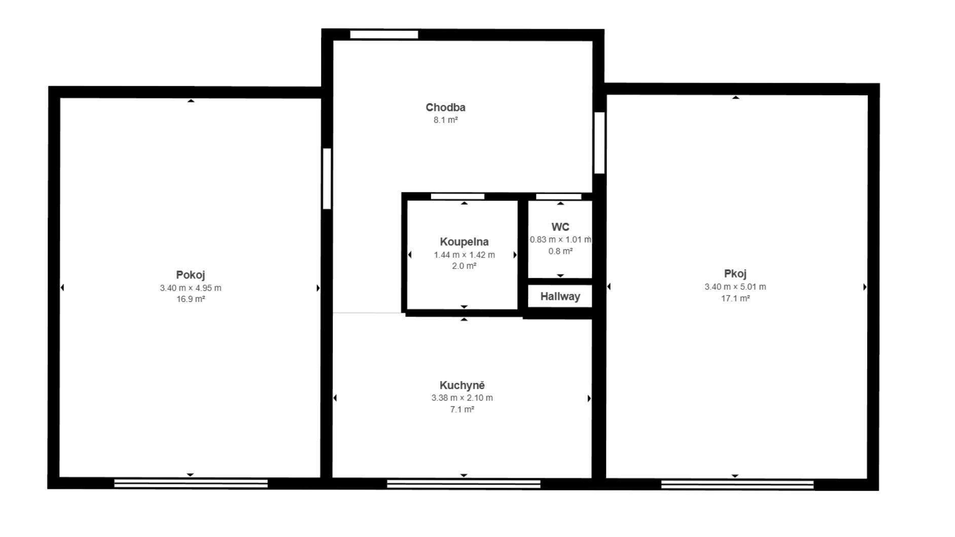
Pronájem bytu 2+1, 57 m²

Podkrušnohorská 957, Horní Litvínov, Litvínov
11 000 Kč (za měsíc)

K pronájmu nabízíme prostorný byt o dispozici 2+1 s rozlohou 57 m², který se nachází ve třetím nadzemním patře budovy bez výtahu. Byt prošel kompletní rekonstrukcí, takže je ve výborném stavu. K bytu náleží sklepní koje, kde můžete uskladnit například kola nebo jiné věci.

Součástí inzerátu je také 3D virtuální prohlídka, kterou doporučujeme shlédnout buď na tabletu, nebo na PC, abyste získali lepší představu o prostoru a uspořádání bytu.

Měsíční náklady celkem pro jednu osobu činí 12 920 Kč. Při podpisu smlouvy je nutné složit vratnou kauci ve výši 13 000 Kč a zaplatit provizi 13 310 Kč včetně DPH. Každá další osoba v bytě zvyšuje náklady o 800 Kč měsíčně. Nájemník si převádí elektřinu na sebe a výši záloh si nastaví dle své spotřeby.

Byt je určen pro slušné a pracující osoby a není možné žádat o příspěvky na bydlení. Pro komunikaci uvádějte evidenční číslo zakázky N117451.

Typ zakázky:
Pronájem
Dispozice bytu:
2+1
Stav objektu:
Po rekonstrukci
Užitná plocha:
57 m²
Umístění v objektu:
3. podlaží
Druh objektu:
Cihlová
Vlastnictví:
Osobní
Sklep:
2 m²
Energ. nár. budovy:
C - Úsporná
ID zakázky:
N117451
Pro pohyb mapy použijte dva prsty.