1670 nemovitostí v ČESKÉ REPUBLICE
116 nemovitostí v ZAHRANIČÍ

Hlavní město Praha

Středočeský kraj

Jihočeský kraj

Plzeňský kraj

Karlovarský kraj

Ústecký kraj

Liberecký kraj

Královéhradecký kraj

Pardubický kraj

Kraj Vysočina

Jihomoravský kraj

Olomoucký kraj

Moravskoslezský kraj

Zlínský kraj

ZEMĚ

DISPOZICE

CENA A PLOCHA

Cena od
Cena do
Plocha od
Plocha do
Zobrazit nabídky
20 fotografií

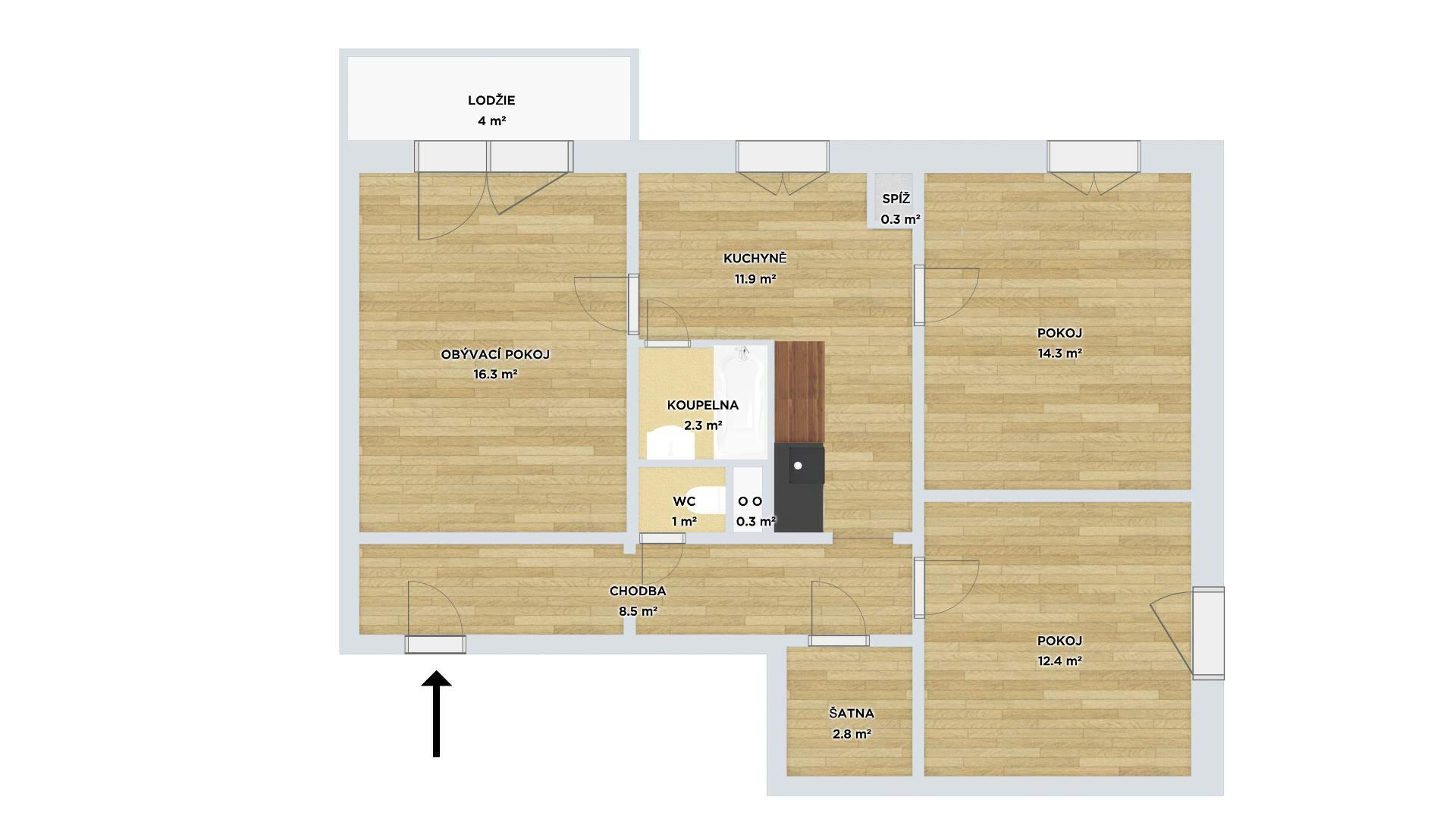
Prodej bytu 3+1, 71 m²

Přichystalova 105/71, Nový Svět, Olomouc
6 000 000 Kč (za nemovitost)

Velmi příjemný byt v menším bytovém domě na Novém Světě v Olomouci.

• dispozice 3+1, výměra 71,34 m²
• 3. patro s výtahem
• šatna, lodžie, sklepní kóje
• klimatizace
• pohodlné parkování před domem

Popis bytu:
Byt po rekonstrukci, plastová okna, zděné jádro se samostatným wc, na podlahách dlažba a v pokojích původní lehce renovované parkety, dveře s obložkovými zárubněmi, IKEA kuchyňská linka se zcela novou pracovní deskou a novou varnou deskou, pračka umístěna v kuchyňské lince, klimatizace v obývacím pokoji s venkovní jednotkou umístěnou v lodžii.
Bytový dům je revitalizován, zateplen a s pečlivou správou.

Náklady na bydlení:
zálohy 4 976 Kč (z toho fond oprav 1 200, teplo, teplá voda, studená voda, elektřina spol. prostor, výtah, správa)
+ elektřina cca 800 Kč

Zajištění nejvýhodnějšího financování při koupi je samozřejmostí. Při složení 20 % vlastních finančních prostředků můžeme vyřešit financování i bez prokazování příjmů. Nebo potřebujete vyměnit své bydlení za tuto nemovitost? Vezmeme vaši nemovitost do protiúčtu nebo vám zprostředkujeme její prodej.

* Pro komunikaci uvádějte evidenční číslo zakázky N117260.

Typ zakázky:
Prodej
Dispozice bytu:
3+1
Stav objektu:
Po rekonstrukci
Užitná plocha:
71 m²
Umístění v objektu:
4. podlaží
Druh objektu:
Panelová
Vlastnictví:
Osobní
Sklep:
ANO
Lodžie:
4 m²
Energ. nár. budovy:
D - Méně úsporná
ID zakázky:
N117260
Pro pohyb mapy použijte dva prsty.
HYPOTEČNÍ KALKULAČKA
Hodnota nemovitosti
6 000 000 Kč
Výše úvěru
Vlastní zdroje
Doba splácení
let
Tato nemovitost již od měsíčně s roční úrokovou sazbou od 4,39 %.
Zjistit více informací
PODOBNÉ NEMOVITOSTI