1685 nemovitostí v ČESKÉ REPUBLICE
116 nemovitostí v ZAHRANIČÍ

Hlavní město Praha

Středočeský kraj

Jihočeský kraj

Plzeňský kraj

Karlovarský kraj

Ústecký kraj

Liberecký kraj

Královéhradecký kraj

Pardubický kraj

Kraj Vysočina

Jihomoravský kraj

Olomoucký kraj

Moravskoslezský kraj

Zlínský kraj

ZEMĚ

DISPOZICE

CENA A PLOCHA

Cena od
Cena do
Plocha od
Plocha do
Zobrazit nabídky

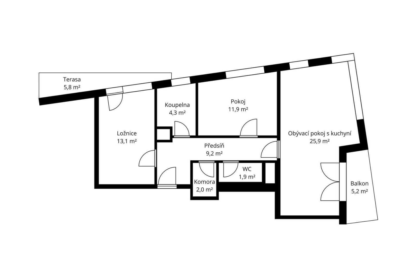
Prodej bytu 3+kk, 68 m²

Klapálkova 3368/30, Záběhlice, Praha
13 195 000 Kč (za nemovitost)

Exkluzivní prodej bytu 3+kk s celkovou výměrou 79,3m² (byt 68,3 m² + balkon 5,2 m² + terasa 5,8 m²), sklep 4,7m², vnitřní parkovací stání, Praha – Záběhlice, ulice Klapálkova.

Nabízíme k prodeji moderní bytovou jednotku, která se nachází v 5. nadzemním podlaží rezidenčního projektu Výhledy Chodovec od Central Group. Dispozice zahrnuje prostorný obývací pokoj s kuchyňským a jídelním koutem (25,9 m²) se vstupem na terasu, hlavní ložnicí (13,1m²) se vstupem na balkon, dětským pokojem (11,9 m²), koupelnu s vanou, samostatnou toaletu a praktickou komoru s vývody na pračku a sučičku. K jednotce náleží také sklep a vnitřní parkovací stání.

Byt je orientován na jihovýchod a severovýchod, což zajišťuje dostatek světla během dne a současně příjemné klima v letních měsících. O to se starají i elektrické venkovní rolety a klimatizace ve všech místnostech. Dispozice byla navržena tak, aby poskytovala komfortní rodinné bydlení s dostatkem soukromí i úložných prostor.

Benefity bytu: nerušený výhled do zeleně Trojmezí, klimatizace ve všech místnostech, elektrické rolety na oknech, alarm, luxusní kuchyňská linka na míru se spotřebiči a varnou deskou s integrovaným odsáváním, bezpečnostní vstupní dveře NEXT, kvalitní podlahové krytiny a moderní sanita. Dům byl zkolaudovaný v roce 2024, takže na samotný byt i veškeré vybavení je záruka.

Lokalita: Rezidenční projekt Výhledy Chodovec je vyhledávanou adresou díky kombinaci klidného prostředí a skvělé dostupnosti. V okolí se nachází kompletní občanská vybavenost – obchody (přímo u domu jsou potraviny), školy, školky, sportoviště, bazén i zdravotní střediska. Milovníci přírody ocení blízkost zejména přímé sousedství s parkem Trojmezí a dále nedaleké Hostivařské přehrady a lesoparku. Výbornou dopravní dostupnost zajišťuje stanice metra C – Roztyly a přímé napojení na dálnici D1.

V případě zájmu lze nemovitost financovat hypotečním úvěrem přes naše hypoteční centrum. Pouze u nás vám zajistíme moderní financování až na 35 let, bez ohledu na věk a prokazování příjmů, či nutnosti předkládat daňové přiznání (u podnikatelů). Zeptejte se nás a bydlete chytře! Nenechte si ujít tuto jedinečnou příležitost a kontaktujte nás pro další informace a dohodnutí termínu prohlídky. Rád Vás osobně přesvědčím o výjimečnosti této skvělé nemovitosti. Pro komunikaci uvádějte evidenční číslo zakázky N117242.

Typ zakázky:
Prodej
Dispozice bytu:
3+kk
Stav objektu:
Novostavba
Užitná plocha:
68 m²
Umístění v objektu:
5. podlaží
Druh objektu:
Skeletová
Vlastnictví:
Osobní
Balkón:
ANO
Sklep:
5 m²
Parkovací místo:
1
Terasa:
11 m²
Energ. nár. budovy:
B - Velmi úsporná
ID zakázky:
N117242
Pro pohyb mapy použijte dva prsty.
HYPOTEČNÍ KALKULAČKA
Hodnota nemovitosti
13 195 000 Kč
Výše úvěru
Vlastní zdroje
Doba splácení
let
Tato nemovitost již od měsíčně s roční úrokovou sazbou od 4,39 %.
Zjistit více informací
PODOBNÉ NEMOVITOSTI