1667 nemovitostí v ČESKÉ REPUBLICE
116 nemovitostí v ZAHRANIČÍ

Hlavní město Praha

Středočeský kraj

Jihočeský kraj

Plzeňský kraj

Karlovarský kraj

Ústecký kraj

Liberecký kraj

Královéhradecký kraj

Pardubický kraj

Kraj Vysočina

Jihomoravský kraj

Olomoucký kraj

Moravskoslezský kraj

Zlínský kraj

ZEMĚ

DISPOZICE

CENA A PLOCHA

Cena od
Cena do
Plocha od
Plocha do
Zobrazit nabídky
19 fotografií

Prodej bytu 3+1, 71 m²

Vodňanská 464, Malá Strana, Týn nad Vltavou
3 550 000 Kč (za nemovitost)
Cena je uvedená včetně advokátních a RK služeb

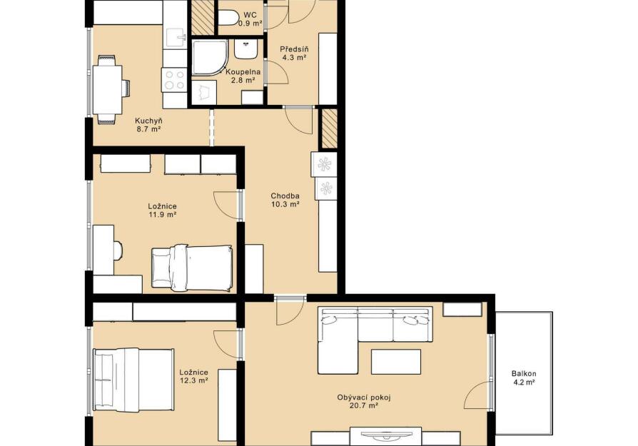
Nabízíme k prodeji výjimečně prostorný družstevní byt o dispozici 3+1 a celkové podlahové ploše 78,38 m² včetně lodžie a sklepní kóje, který se nachází v 5.nadzemním podlaží s výtahem.
Byt je v původním a udržovaném stavu, takže je možné se ihned nastěhovat, zároveň ale nabízí možnost rekonstrukce podle vlastních představ. Dispozice bytu je praktická a variabilní, což umožňuje prostor přizpůsobit modernějšímu a funkčnějšímu využití.
Po vstupu do bytu Vás přivítá prostorná chodba s dostatkem místa pro úložné řešení. Koupelna je oddělená od samostatného WC. Byt disponuje dvěma neprůchozími ložnicemi, které zajišťují dostatek soukromí. Kuchyň nabízí příjemný výhled na řeku, což dodává prostoru klidnou atmosféru. Obývací pokoj navazuje na vstup do lodžie, která poskytuje příjemné místo pro relaxaci.
K bytu náleží velmi prostorná sklepní kóje a k dispozici je také společná kolárna. Parkování je možné přímo před domem nebo v jeho blízkém okolí.
Velkou přidanou hodnotou je samotná lokalita – byt se nachází téměř v centru města, přesto v bezprostřední blízkosti řeky, což vytváří příjemnou kombinaci městského života a klidného prostředí pro procházky či sportovní aktivity. V docházkové vzdálenosti najdete kompletní občanskou vybavenost: obchody, školy, školky, zdravotnická zařízení, restaurace i zastávky MHD. Vše potřebné máte doslova pár minut od domu.
Tato nemovitost je ideální volbou jak pro rodinné bydlení, tak jako investiční příležitost. Pokud hledáte prostorný byt s potenciálem v atraktivní lokalitě, kde si můžete vytvořit domov podle vlastních představ, právě jste ho našli.
V případě zájmu Vám rádi zajistíme výhodné financování. Pro více informací či domluvení osobní prohlídky nás neváhejte kontaktovat. Pro komunikaci uvádějte evidenční číslo zakázky N117135.

Typ zakázky:
Prodej
Dispozice bytu:
3+1
Stav objektu:
Dobrý
Užitná plocha:
71 m²
Umístění v objektu:
5. podlaží
Druh objektu:
Panelová
Vlastnictví:
Družstevní
Sklep:
3 m²
Lodžie:
42 m²
Energ. nár. budovy:
G - Mimořádně nehospodárná
ID zakázky:
N117135
Pro pohyb mapy použijte dva prsty.
HYPOTEČNÍ KALKULAČKA
Hodnota nemovitosti
3 550 000 Kč
Výše úvěru
Vlastní zdroje
Doba splácení
let
Tato nemovitost již od měsíčně s roční úrokovou sazbou od 4,39 %.
Zjistit více informací
PODOBNÉ NEMOVITOSTI