1674 nemovitostí v ČESKÉ REPUBLICE
116 nemovitostí v ZAHRANIČÍ

Hlavní město Praha

Středočeský kraj

Jihočeský kraj

Plzeňský kraj

Karlovarský kraj

Ústecký kraj

Liberecký kraj

Královéhradecký kraj

Pardubický kraj

Kraj Vysočina

Jihomoravský kraj

Olomoucký kraj

Moravskoslezský kraj

Zlínský kraj

ZEMĚ

DISPOZICE

CENA A PLOCHA

Cena od
Cena do
Plocha od
Plocha do
Zobrazit nabídky
17 fotografií

Prodej bytu 4+kk, 90 m²

Horovo náměstí 1074/2, Libeň, Praha
9 900 000 Kč (za nemovitost)

Hledáte krásný prostorný byt kousek od centra Prahy? Právě jste ho našli!

V exkluzivním zastoupení majitele vám nabízíme ke koupi krásný a
prostorný byt, vhodný jak pro komfortní plnohodnotné rodinné bydlení,
tak jako velice zajímavá investice nebo zajištění bydlení pro své děti do
budoucna.

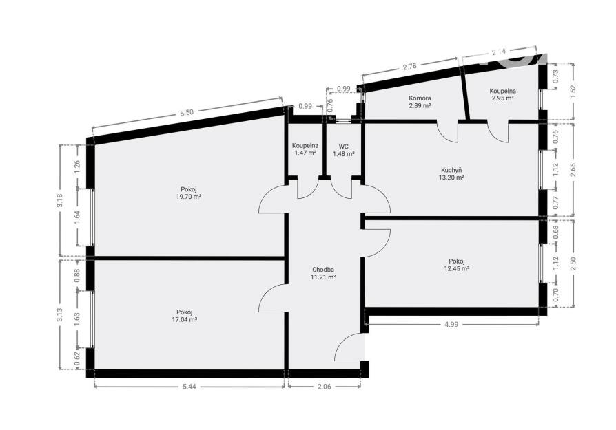
Byt má ideální rodinnou dispozici 4+kk s podlahovou plochou 89,7 m2. Skládá se ze třech plnohodnotných pokojů s plochami 19,7 m2, 17 m2 a 12,5 m2, prostorné kuchyně (13,2 m2) kam se ideálně vejde jídelna pro celou rodinu, předsíně, resp. chodby (11,2 m2), dvou koupelen, jedna s vanou (2,95 m2) a druhá se sprchovým koutem (1,5 m2), samostatné toalety (1,5 m2) a prostornou komorou (2,9 m2), „špajskou“, přístupnou přímo z kuchyně.

V pokojích jsou položeny dřevěné podlahy, v předsíni, koupelnách, toaletě a komoře je položena
dlažba.
Vytápění je etážové bytové, zajištěné plynovým kotlem a radiátory ve všech místnostech. Byt se prodává bez vybavení, v inzerci jsou použity i fotografie s virtuálními vizualizacemi pro účel představy o možnostech jeho zařízení.

Dům z roku 1920 je velice dobře udržovaný a všechny jednotky v domě byly v letech 2014 až 2015 rekonstruovány. Rekonstrukce zahrnovala nové rozvody elektřiny a vytápění, včetně osazení nových zdrojů vytápění. Byla osazena nová plastová okna, dveře a byly položeny nové podlahové krytiny.

Renovace uliční i dvorní fasády domu proběhla v letech 2022 až 2023. Byt se nachází na 5. nadzemním podlaží, tj. na 4. patře, v bytovém domě bez výtahu.

Díky své poloze je z bytu nádherný výhled po okolí. Bytový dům se nachází v blízkosti křižovatky ulic Zenklova a Povltavská a v okolí se nachází veškerá občanská vybavenost. Pár minut pěšky od domu se nachází Libeňský zámeček, kostel sv. Vojtěcha, Psí louka Libeň, Thomayerovy sady, mnoho sportovišť, školy atd..

Dopravní dostupnost je zajištěna zejména tramvajemi nebo autobusovou dopravou MHD. Stanice metra "B" Palmovka se nachází při ulici Zenklova ve vzdálenosti cca 900 metrů od domu.

Neváhejte a domluvte si osobní prohlídku bytu. Pro komunikaci uvádějte evidenční číslo zakázky N117106.

Typ zakázky:
Prodej
Dispozice bytu:
4+kk
Stav objektu:
Velmi dobrý
Užitná plocha:
90 m²
Umístění v objektu:
5. podlaží
Druh objektu:
Cihlová
Vlastnictví:
Osobní
Energ. nár. budovy:
G - Mimořádně nehospodárná
ID zakázky:
N117106
Pro pohyb mapy použijte dva prsty.
HYPOTEČNÍ KALKULAČKA
Hodnota nemovitosti
9 900 000 Kč
Výše úvěru
Vlastní zdroje
Doba splácení
let
Tato nemovitost již od měsíčně s roční úrokovou sazbou od 4,39 %.
Zjistit více informací
PODOBNÉ NEMOVITOSTI