1640 nemovitostí v ČESKÉ REPUBLICE
116 nemovitostí v ZAHRANIČÍ

Hlavní město Praha

Středočeský kraj

Jihočeský kraj

Plzeňský kraj

Karlovarský kraj

Ústecký kraj

Liberecký kraj

Královéhradecký kraj

Pardubický kraj

Kraj Vysočina

Jihomoravský kraj

Olomoucký kraj

Moravskoslezský kraj

Zlínský kraj

ZEMĚ

DISPOZICE

CENA A PLOCHA

Cena od
Cena do
Plocha od
Plocha do
Zobrazit nabídky
32 fotografií

Prodej rodinného domu, 223 m²

Beřovice 11, Beřovice
12 500 000 Kč (za nemovitost)

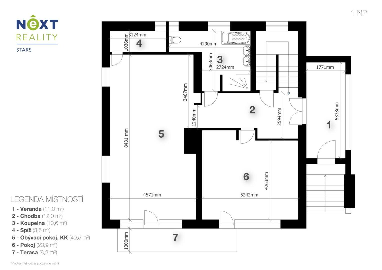
Exkluzivně vám představuji nabídku prostorného rodinného domu v obci Beřovice. Dům o dispozici 4+kk s garáží a udržovanou zahradou je postaven na pozemku o celkové výměře 941 m2. V 1. nadzemím podlaží se nachází vstupní předsíň, na kterou plynule navazuje chodba, ze které je přístup do dětského pokoje a dále do prostorného obývacího pokoje spojeného s kuchyňským koutem. Za kuchyní je prakticky řešený špajz. V tomto podlaží se rovněž nachází koupelna vybavená vanou, sprchovým koutem, toaletou a koupelnovým nábytkem.
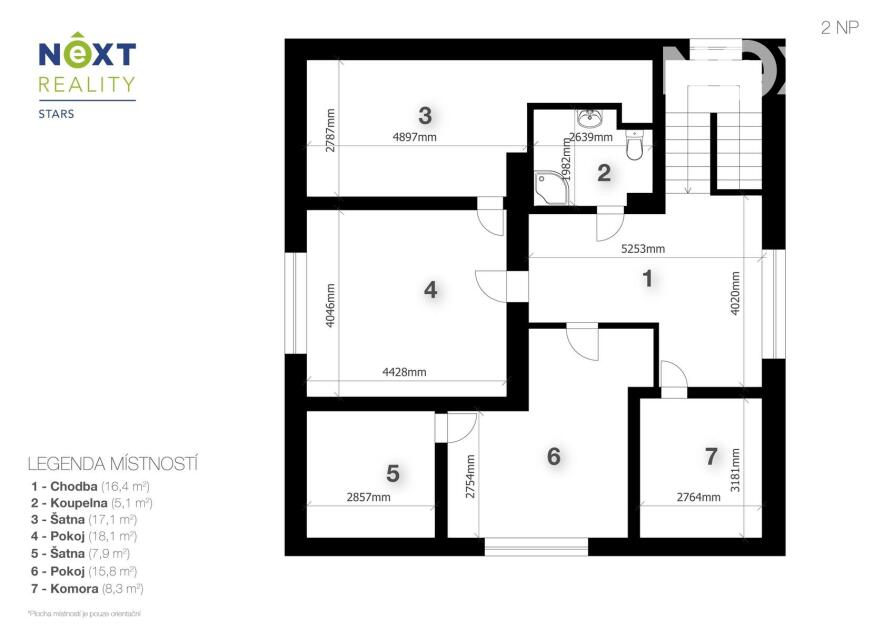
Po schodišti se dostanete do druhého nadzemního podlaží, kde se nachází dva samostatné, neprůchozí pokoje, z nichž každý disponuje vlastní prostornou šatnou. Dále je zde umístěna technická místnost a druhá koupelna, vybavena sprchovým koutem, toaletou a koupelnovým nábytkem. Samozřejmostí je rovněž prostor pro umístění pračky a sušičky.
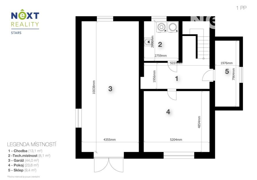
Dům je kompletně podsklepený a nabízí velkorysé zázemí. V suterénu se nachází garáž až pro dvě auta, kotelna, sklep a samostatný pokoj s možností využití jako domácí posilovna, pracovna nebo dílna.
Interiér domu prošel kompletní rekonstrukcí, v jejímž rámci byly provedeny nové rozvody elektřiny, vody a topení. Dům je nově zateplený, střecha prošla taktéž rekonstrukcí, což přispívá k nízkým provozním nákladům a celkovému komfortu bydlení. Vytápění domu je zajištěno tepelným čerpadlem, které zajišťuje úsporný a moderní provoz. Nemovitost je napojena na obecní vodovod, odpad je aktuálně řešen prostřednictvím jímky. V obci však probíhá výstavba kanalizace s možností budoucího připojení.
Beřovice jsou klidná obce, která se nachází 10 minut jízdy od Slaného. V obci je k dispozici základní občanská vybavenost – obecní úřad, venkovní sportoviště, obchod s potravinami i autobusová zastávka. Nachází se zde také oblíbené golfové hřiště s vynikající restaurací. V okolí domu je celá řada možností trávení volného času v přírodě, a to díky množství turistických i cyklistických stezek. Pro komunikaci uvádějte evidenční číslo zakázky N117034.

Typ zakázky:
Prodej
Stav objektu:
Velmi dobrý
Užitná plocha:
223 m²
Plocha pozemku:
941 m²
Typ nemovitosti:
Rodinný
Poloha domu:
Samostatný
Typ domu:
Patrový
Sklep:
68 m²
Terasa:
ANO
Garáž:
ANO
Energ. nár. budovy:
B - Velmi úsporná
ID zakázky:
N117034
Pro pohyb mapy použijte dva prsty.
HYPOTEČNÍ KALKULAČKA
Hodnota nemovitosti
12 500 000 Kč
Výše úvěru
Vlastní zdroje
Doba splácení
let
Tato nemovitost již od měsíčně s roční úrokovou sazbou od 4,39 %.
Zjistit více informací
PODOBNÉ NEMOVITOSTI