1684 nemovitostí v ČESKÉ REPUBLICE
116 nemovitostí v ZAHRANIČÍ

Hlavní město Praha

Středočeský kraj

Jihočeský kraj

Plzeňský kraj

Karlovarský kraj

Ústecký kraj

Liberecký kraj

Královéhradecký kraj

Pardubický kraj

Kraj Vysočina

Jihomoravský kraj

Olomoucký kraj

Moravskoslezský kraj

Zlínský kraj

ZEMĚ

DISPOZICE

CENA A PLOCHA

Cena od
Cena do
Plocha od
Plocha do
Zobrazit nabídky

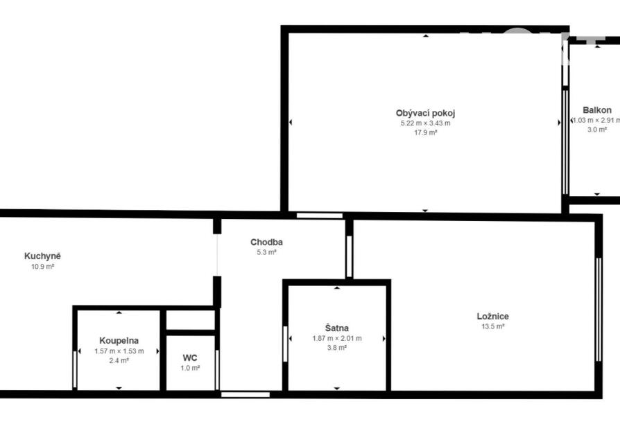
Prodej bytu 2+1, 59 m²

Nad parkem 385, Meziboří
2 739 000 Kč (za nemovitost)

Nabízíme k prodeji prostornou bytovou jednotku 2+1 o výměře 59 m2 v družstevním vlastnictví, situovanou v klidné lokalitě na adrese Nad Parkem 385, Meziboří. Byt se nachází v přízemí (nulté patro) panelového domu bez výtahu, přičemž vstup do bytu je plně bezbariérový, což ocení osoby se sníženou pohyblivostí i rodiny s kočárky. K bytu náleží prostorná sklepní koje a balkon, který skýtá příjemné místo pro relaxaci. Dispozice bytu je funkční a dobře využitelná jak pro jednotlivce a páry, tak i pro malou rodinu.

Byt prošel v roce 2023 komplexní a nadčasovou rekonstrukcí na vysoké úrovni a je připraven k okamžitému nastěhování bez nutnosti jakýchkoliv dalších investic. V rámci rekonstrukce bylo provedeno nové jádro s moderní koupelnou a samostatným WC, sádrokartonové stropy s kvalitním provedením, dekorativní štuky pro elegantní vzhled interiéru, nové podlahy v celém bytě, kompletní elektroinstalace dle platných norem, LED osvětlení v celém bytě a systém chytré domácnosti pro řízení světel a topení.

Měsíční náklady na bydlení jsou přehledné a transparentní. Fond oprav a pevné poplatky dle evidenčního listu činí 1 672 Kč měsíčně. Studená užitková voda, teplá užitková voda, ústřední topení a osvětlení společných prostor jsou účtovány dle skutečné spotřeby, případně jsou zahrnuty v poplatcích.

Součástí tohoto inzerátu je interaktivní 3D virtuální prohlídka bytu. Pro co nejlepší zážitek a přesnou představu o prostoru a uspořádání bytu doporučujeme prohlídku spustit na tabletu nebo počítači.

Prodávající nabízejí flexibilní podmínky předání. Stávající majitelé by uvítali možnost zůstat v bytě po dohodnutou dobu za podnájemné, což je varianta ideální pro investora hledajícího okamžitý výnos z pronájmu bez nutnosti shánět nájemníky. Pokud kupující preferuje byt volný, jsou majitelé připraveni se vystěhovat dle vzájemné dohody. Je rovněž možné dojednat ponechání části nebo veškerého vybavení v bytě. Vše je předmětem individuální dohody.

Meziboří je klidné město situované malebně pod Krušnými horami v Ústeckém kraji s výbornou dopravní dostupností do Litvínova a Mostu. Ve městě se nachází základní škola a mateřská škola, zdravotní středisko a lékárna, obchody a služby včetně potravin a pošty, městská knihovna s dětským oddělením a pravidelným programem, AHC Senior centrum a kulturní zařízení města. V bezprostřední blízkosti bytu se nachází dětské hřiště Nad Parkem. Město nabízí bohaté možnosti sportovního i kulturního vyžití. K dispozici je sportovní hala s celoročním provozem, ski areál Meziboří se sjezdovkami přímo ve městě, rozsáhlá síť cyklistických a turistických tras v Krušných horách, běžecké trasy v přírodě Krušnohoří a v letní sezóně koupání v jezerech Matylda a Most Lake Pro komunikaci uvádějte evidenční číslo zakázky N117010.

Typ zakázky:
Prodej
Dispozice bytu:
2+1
Stav objektu:
Po rekonstrukci
Užitná plocha:
59 m²
Druh objektu:
Panelová
Vlastnictví:
Družstevní
Balkón:
3 m²
Sklep:
2 m²
Energ. nár. budovy:
C - Úsporná
ID zakázky:
N117010
Pro pohyb mapy použijte dva prsty.
HYPOTEČNÍ KALKULAČKA
Hodnota nemovitosti
2 739 000 Kč
Výše úvěru
Vlastní zdroje
Doba splácení
let
Tato nemovitost již od měsíčně s roční úrokovou sazbou od 4,39 %.
Zjistit více informací
PODOBNÉ NEMOVITOSTI