1599 nemovitostí v ČESKÉ REPUBLICE
120 nemovitostí v ZAHRANIČÍ

Hlavní město Praha

Středočeský kraj

Jihočeský kraj

Plzeňský kraj

Karlovarský kraj

Ústecký kraj

Liberecký kraj

Královéhradecký kraj

Pardubický kraj

Kraj Vysočina

Jihomoravský kraj

Olomoucký kraj

Moravskoslezský kraj

Zlínský kraj

ZEMĚ

DISPOZICE

CENA A PLOCHA

Cena od
Cena do
Plocha od
Plocha do
Zobrazit nabídky
34 fotografií

Prodej bytu 3+1, 99 m²

Čsl. armády 1413/29, Šumperk
5 690 000 Kč (za nemovitost)

Hledáte místo, kde se budete cítit opravdu doma? Kde mají děti prostor na hraní, vy klid na odpočinek a zároveň vše důležité na dosah? Pak by vás tato nabídka mohla zaujmout.

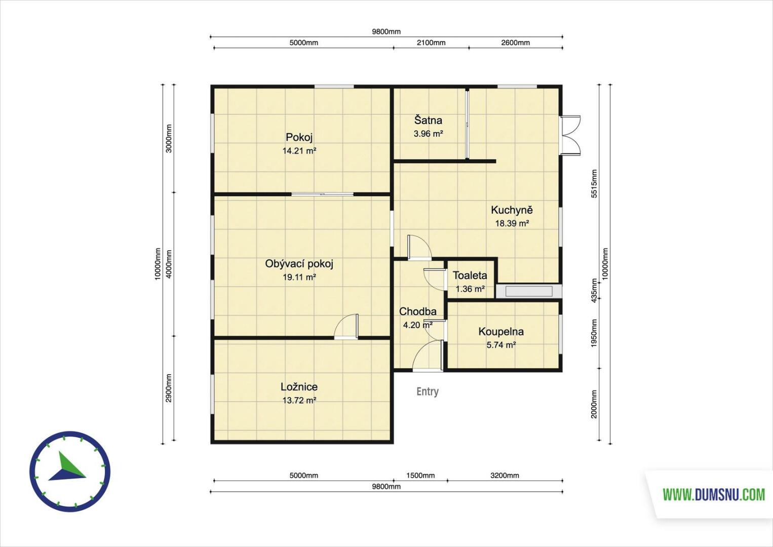
Nabízíme k prodeji prostorný a světlý byt o dispozici 3+1 a výměře 83,6 m², který se nachází v přízemí udržovaného cihlového domu o třech bytových jednotkách na ulici Československé armády v Šumperku.

Byt vás na první pohled zaujme svou vzdušností a příjemnou atmosférou – vysoké stropy, velké pokoje a dostatek denního světla vytváří prostor, kde se budete cítit opravdu doma. Dispozice 3+1 navíc nabízí možnost úpravy až na 4+1, takže byt poroste spolu s vaší rodinou a přizpůsobí se jejím potřebám.

Dispozičně byt nabízí vstupní chodbu, koupelnu s vanou i sprchovým koutem, samostatnou toaletu, kuchyni, velký obývací pokoj a dva neprůchozí pokoje. Za kuchyní se navíc nachází další praktický prostor, který může sloužit jako šatna, komora nebo například pracovna.

Velkým benefitem je přirozené propojení bytu s venkovním prostorem. Přímo z kuchyně vstoupíte na menší terasu, ideální pro ranní kávu, klidné večery nebo třeba jen chvíli pro sebe. Odtud pak plynule přecházíte na sdílenou zahradu, kde si děti mohou bezpečně hrát, zatímco vy si užíváte pohodu nebo posezení s přáteli. K dispozici je pergola pro grilování i společné chvíle a nechybí ani užitková studna.

K bytu náleží velkorysý sklep o výměře 15,4 m². V domě funguje společenství vlastníků a pravidelně se přispívá do fondu oprav ve výši 1 500 Kč měsíčně. Byt má rozvody elektřiny v mědi, vody v plastu, plastová okna a o vytápění i ohřev vody se stará plynový kondenzační kotel. Dům je napojen na obecní vodovod, kanalizaci i plyn.

Celkové měsíční náklady na provoz pro čtyřčlennou rodinu činí orientačně 8 100 Kč včetně fondu oprav. Dům nabízí klidné bydlení s důrazem na soukromí, což ocení zejména rodiny s dětmi hledající bezpečné a příjemné zázemí.

Lokalita nabízí příjemné spojení klidného bydlení a dobré dostupnosti – v okolí najdete veškerou občanskou vybavenost a vše potřebné máte v pohodlné docházkové vzdálenosti.

Pokud vás tato nabídka zaujala, neváhejte se ozvat a domluvit si prohlídku – rádi vás bytem osobně provedeme. Samozřejmostí je i zajištění financování, kdy vám naši finanční specialisté pomohou vybrat nejvhodnější variantu přímo na míru. Pro komunikaci uvádějte evidenční číslo zakázky N116895.

Typ zakázky:
Prodej
Dispozice bytu:
3+1
Stav objektu:
Dobrý
Užitná plocha:
99 m²
Umístění v objektu:
1. podlaží
Druh objektu:
Cihlová
Vlastnictví:
Osobní
Sklep:
ANO
Energ. nár. budovy:
G - Mimořádně nehospodárná
ID zakázky:
N116895
Pro pohyb mapy použijte dva prsty.
HYPOTEČNÍ KALKULAČKA
Hodnota nemovitosti
5 690 000 Kč
Výše úvěru
Vlastní zdroje
Doba splácení
let
Tato nemovitost již od měsíčně s roční úrokovou sazbou od 4,39 %.
Zjistit více informací
PODOBNÉ NEMOVITOSTI