1685 nemovitostí v ČESKÉ REPUBLICE
116 nemovitostí v ZAHRANIČÍ

Hlavní město Praha

Středočeský kraj

Jihočeský kraj

Plzeňský kraj

Karlovarský kraj

Ústecký kraj

Liberecký kraj

Královéhradecký kraj

Pardubický kraj

Kraj Vysočina

Jihomoravský kraj

Olomoucký kraj

Moravskoslezský kraj

Zlínský kraj

ZEMĚ

DISPOZICE

CENA A PLOCHA

Cena od
Cena do
Plocha od
Plocha do
Zobrazit nabídky

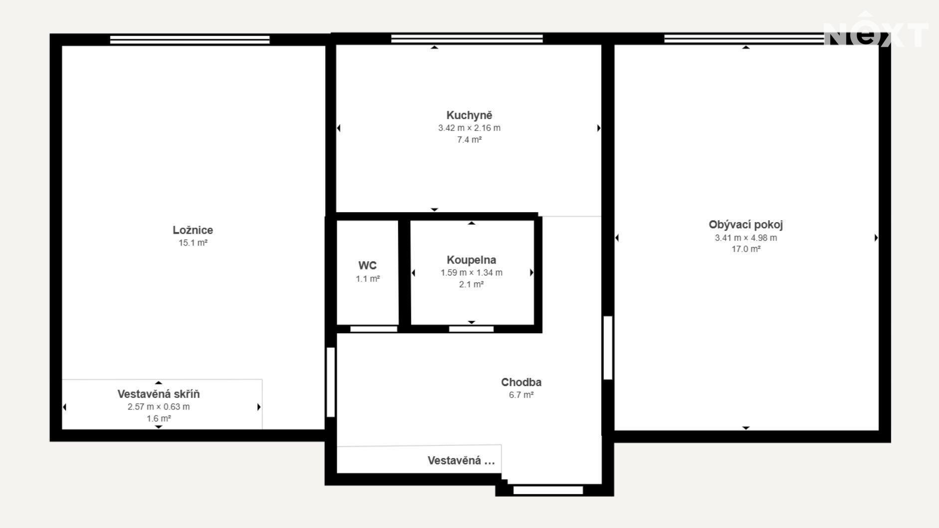
Prodej bytu 2+1, 51 m²

Jaroslava Průchy 2907/14, Most
1 899 000 Kč (za nemovitost)

Na prodej bytová jednotka 2+1 o výměře 54 m² v družstevním vlastnictví, nacházející se ve 4. nadzemním podlaží s výtahem, na adrese J. Průchy 2907/14, Most. Byt je v krásném udržovaném stavu a součástí bytu je sklepní koje.

Měsíční poplatky zahrnují fond oprav, vodu a topení ve výši 3 713 Kč, elektřinu a plyn si nový majitel nastaví dle vlastní spotřeby. Převod členství v Bytovém družstvu Průchy hradí kupující ve výši 5 000 Kč, více informací naleznete na stránkách družstva: http://bdpruchy.bytovedruzstvo.eu/

Dům prošel kompletní revitalizací, která zahrnovala zateplení fasády, novou střechu, rekonstrukci chodeb a sklepů, modernizaci výtahu a zabezpečení kamerovým systémem. Lokalita J. Průchy v Mostě nabízí výbornou občanskou vybavenost – v docházkové vzdálenosti se nachází supermarkety, obchody denní potřeby, základní a mateřské školy, lékař a lékárna. Dopravní dostupnost zajišťuje MHD se zastávkami v blízkosti domu a v okolí jsou také parky, hřiště a sportovní zařízení.

Součástí inzerátu je 3D virtuální prohlídka, kterou doporučujeme shlédnout na tabletu nebo počítači pro lepší představu o prostoru a uspořádání. Pro komunikaci uvádějte evidenční číslo zakázky N116865.

Typ zakázky:
Prodej
Dispozice bytu:
2+1
Stav objektu:
Dobrý
Užitná plocha:
51 m²
Umístění v objektu:
4. podlaží
Druh objektu:
Panelová
Vlastnictví:
Družstevní
Sklep:
2 m²
Energ. nár. budovy:
D - Méně úsporná
ID zakázky:
N116865
Pro pohyb mapy použijte dva prsty.
HYPOTEČNÍ KALKULAČKA
Hodnota nemovitosti
1 899 000 Kč
Výše úvěru
Vlastní zdroje
Doba splácení
let
Tato nemovitost již od měsíčně s roční úrokovou sazbou od 4,39 %.
Zjistit více informací
PODOBNÉ NEMOVITOSTI