1647 nemovitostí v ČESKÉ REPUBLICE
117 nemovitostí v ZAHRANIČÍ

Hlavní město Praha

Středočeský kraj

Jihočeský kraj

Plzeňský kraj

Karlovarský kraj

Ústecký kraj

Liberecký kraj

Královéhradecký kraj

Pardubický kraj

Kraj Vysočina

Jihomoravský kraj

Olomoucký kraj

Moravskoslezský kraj

Zlínský kraj

ZEMĚ

DISPOZICE

CENA A PLOCHA

Cena od
Cena do
Plocha od
Plocha do
Zobrazit nabídky
24 fotografií

Prodej rodinného domu, 103 m²

Na Příči 26, Mutějovice
7 900 000 Kč (za nemovitost)

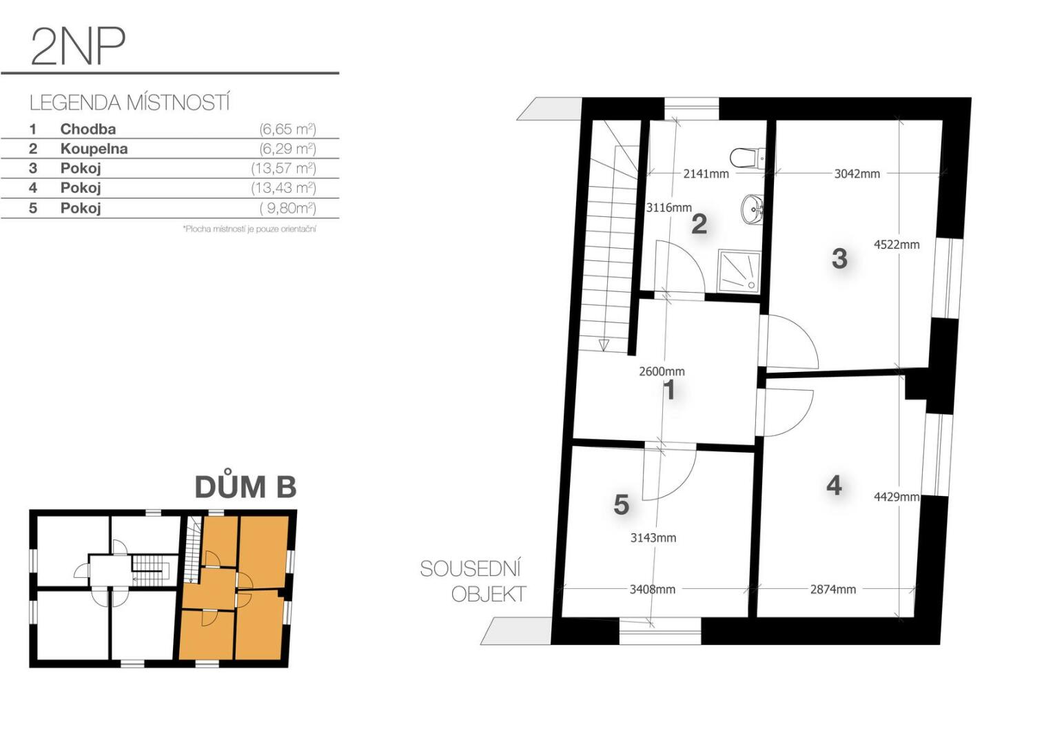
Představujeme vám nabídku prodeje novostavby rodinného domu v kraji chmele a výborného piva a to přímo v obci Mutějovice. Dům je postaven na pozemku o výměře 256 m² a splňuje všechny podmínky nízkoenergetického bydlení. Disponuje kvalitním zdivem, izolačními trojskly v oknech a teplovodním podlahovým vytápěním, jehož zdrojem je tepelné čerpadlo. Na střeše je připravena instalace fotovoltaických panelů a nechybí ani komín, který umožňuje připojení krbu či krbových kamen v obývacím pokoji. Zkrátka vše, co moderní bydlení vyžaduje. Dům je dispozičně řešen jako 5kk s celkovou podlahovou plochou 103 m², což poskytuje dostatek prostoru pro každého člena rodiny. Hlavním vchodem vstoupíte do prostorné chodby s místem pro úložné prostory, odkud se vchází do jednotlivých místností. V přízemí se nachází prostorný obývací pokoj s kuchyňským koutem a přímým výstupem na východně orientovanou zahradu s terasou, ideální pro trávení volného času s rodinou a přáteli. Dále je v přízemí pokoj, který lze využít jako pracovnu, nebo hostinský pokoj, koupelna s toaletou, sprchovým koutem, umyvadlem a prostorem pro pračku. Po schodišti vystoupáte do podkroví, kde se nacházejí tři prostorné ložnice a druhá koupelna se sprchovým koutem, umyvadlem, toaletou a prostorem pro pračku i sušičku. Dům bude kompletně dokončený v červnu 2026. Pozemek bude kompletně oplocený, zatravněný a zahrnuje terasu, parkovací stání, dvoukřídlou vjezdovou bránu i branku pro pěší. Mutějovice jsou obcí se skvělou občanskou vybaveností. Najdete zde mateřskou i základní školu, obchod, obecní úřad, poštu a řadu sportovišť. V okolí se nachází mnoho turistických cílů. Obec má dobré autobusové spojení s Prahou, Rakovníkem i okolními obcemi. Nájezd na dálnici D6 je vzdálen do 10 minut jízdy, přičemž na okraj Prahy se dostanete přibližně za 30 minut. Do Rakovníka dojedete zhruba za 15 minut. Pokud vás nabídka tohoto domu zaujala a nemáte vyřešený způsob financování kupní ceny, i s tím Vám rádi pomůžeme. Pro komunikaci uvádějte evidenční číslo zakázky N116753.

Typ zakázky:
Prodej
Stav objektu:
Novostavba
Užitná plocha:
103 m²
Plocha pozemku:
256 m²
Typ nemovitosti:
Rodinný
Poloha domu:
Rohový
Typ domu:
Patrový
Terasa:
ANO
Parkovací místo:
ANO
Energ. nár. budovy:
B - Velmi úsporná
ID zakázky:
N116753
Pro pohyb mapy použijte dva prsty.
HYPOTEČNÍ KALKULAČKA
Hodnota nemovitosti
7 900 000 Kč
Výše úvěru
Vlastní zdroje
Doba splácení
let
Tato nemovitost již od měsíčně s roční úrokovou sazbou od 4,39 %.
Zjistit více informací
PODOBNÉ NEMOVITOSTI