1635 nemovitostí v ČESKÉ REPUBLICE
116 nemovitostí v ZAHRANIČÍ

Hlavní město Praha

Středočeský kraj

Jihočeský kraj

Plzeňský kraj

Karlovarský kraj

Ústecký kraj

Liberecký kraj

Královéhradecký kraj

Pardubický kraj

Kraj Vysočina

Jihomoravský kraj

Olomoucký kraj

Moravskoslezský kraj

Zlínský kraj

ZEMĚ

DISPOZICE

CENA A PLOCHA

Cena od
Cena do
Plocha od
Plocha do
Zobrazit nabídky
50 fotografií

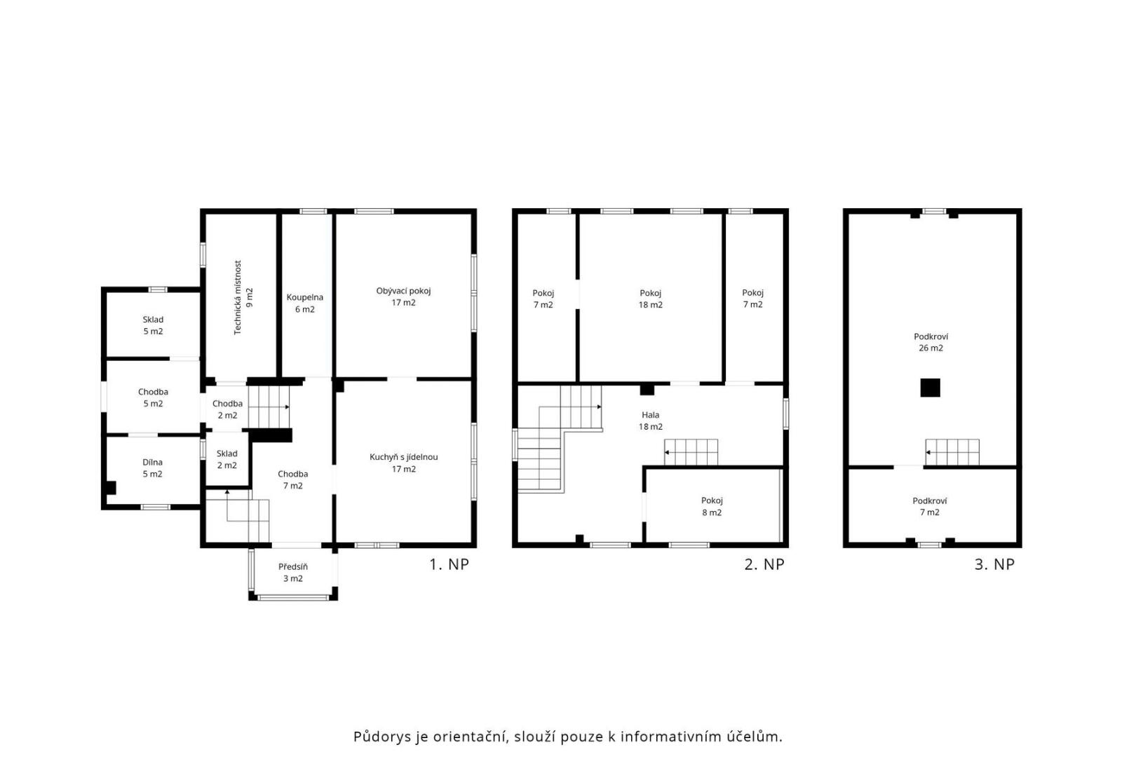
Prodej rodinného domu, 169 m²

Nová 231, Cvikov I, Cvikov
5 349 000 Kč (za nemovitost)
Momentální měsíční náklady 2100,- Kč. Cena včetně kompletního právního servisu a provize RK. Možnost moderního financování.

Prodej samostatně stojícího rodinného domu s garáží a rozlehlou zahradou ve Cvikově. Udržovaná nemovitost nyní slouží k rekreaci. Působivé je zachování množství původních prvků v interiéru, pozornost si zaslouží zejména zdobené dřevěné vchodové dveře. Vytápění je řešeno lokálně plynovými přímotopy. Ohřev vody v koupelně zajišťuje dnes již raritní lázeňský kotel na tuhá paliva. Špaletová dřevěná okna doplňují dřevěná okna s dvojsklem. Střecha je v dobrém stavu, co se týče krytiny i krovu. Na pozemku stojí již zmíněná garáž, zapsaná v katastru nemovitostí. Dům je napojen na všechny inženýrské sítě - plyn, vodu, elektřinu i kanalizaci. Mezi hlavní výhody patří výborná orientace s maximem slunečního svitu, bezproblémový přístup na pozemek ze dvou obecních asfaltových komunikací, rekonstrukce dle vlastních představ, veškerá občanská vybavenost, moderní sportoviště a malebná příroda podhůří Lužických hor. Další informace v RK, Energetická náročnost – G. Využijte možnost moderního financování až na 30 let bez ohledu na věk a prokazování příjmů, či nutnosti předkládat daňové přiznání (u podnikatelů). Zeptejte se u nás a bydlete chytře. Pro komunikaci uvádějte evidenční číslo zakázky N116731.

Typ zakázky:
Prodej
Stav objektu:
Dobrý
Užitná plocha:
169 m²
Plocha pozemku:
1 700 m²
Plocha zahrady:
1 541 m²
Typ nemovitosti:
Rodinný
Poloha domu:
Samostatný
Typ domu:
Patrový
Garáž:
1
Parkovací místo:
5
Energ. nár. budovy:
G - Mimořádně nehospodárná
ID zakázky:
N116731
Pro pohyb mapy použijte dva prsty.
HYPOTEČNÍ KALKULAČKA
Hodnota nemovitosti
5 349 000 Kč
Výše úvěru
Vlastní zdroje
Doba splácení
let
Tato nemovitost již od měsíčně s roční úrokovou sazbou od 4,39 %.
Zjistit více informací
PODOBNÉ NEMOVITOSTI