1594 nemovitostí v ČESKÉ REPUBLICE
120 nemovitostí v ZAHRANIČÍ

Hlavní město Praha

Středočeský kraj

Jihočeský kraj

Plzeňský kraj

Karlovarský kraj

Ústecký kraj

Liberecký kraj

Královéhradecký kraj

Pardubický kraj

Kraj Vysočina

Jihomoravský kraj

Olomoucký kraj

Moravskoslezský kraj

Zlínský kraj

ZEMĚ

DISPOZICE

CENA A PLOCHA

Cena od
Cena do
Plocha od
Plocha do
Zobrazit nabídky

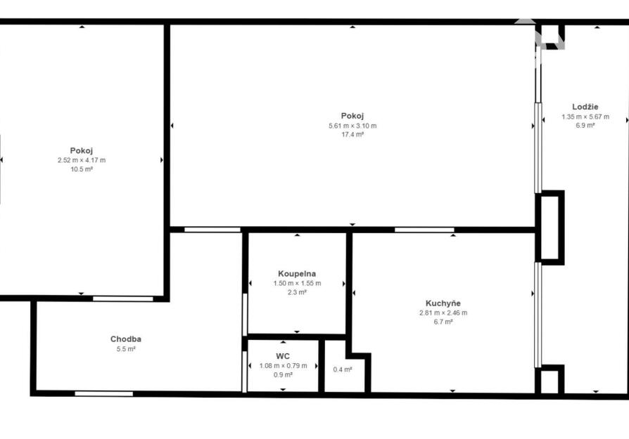
Prodej bytu 2+1, 48 m²

Aléská 255, Pražské Předměstí, Bílina
1 649 000 Kč (za nemovitost)

Na prodej nabízíme bytovou jednotku 2+1 o celkové ploše 48 m², nacházející se v 8. patře panelového domu se dvěma výtahy na adrese Aléská 255, Bílina.

Byt je v původním, udržovaném stavu a nabízí tak možnost vlastní rekonstrukce a přizpůsobení dle vašich představ. Součástí bytu je prostorná lodžie a sklepní koje.

Panelový dům prošel zateplením a je vybaven kamerovým systémem, který zajišťuje bezpečnost obyvatel.

Součástí inzerátu je 3D virtuální prohlídka, kterou doporučujeme shlédnout na tabletu nebo PC pro lepší představu o prostoru a uspořádání bytu.

Náklady na bydlení
Fond oprav činí 2 264 Kč měsíčně, zálohy na vodu a topení jsou účtovány dle skutečné spotřeby, elektřinu si nový majitel nastaví dle vlastní spotřeby.

Občanská vybavenost v okolí
Byt se nachází na sídlišti Aléská v Bílině, které nabízí velmi dobrou občanskou vybavenost. V docházkové vzdálenosti se nachází supermarkety Albert a Lidl, drogerie, lékárna a pošta. V blízkosti sídliště se nachází základní škola Aléská a mateřská škola. Centrum města s dalšími službami, praktickými lékaři a specialisty je dostupné přibližně 10 až 15 minut pěšky. Nemocnice Bílina je vzdálena přibližně 5 minut autem. Přímo u domu se nachází zastávky městské hromadné dopravy se spojením do Ústí nad Labem, Teplic a Mostu. Vlakové nádraží Bílina je dostupné přibližně 10 minut pěšky. V okolí sídliště jsou k dispozici parky, zeleň, sportovní a dětská hřiště. Aquapark a sportovní centrum Bílina jsou vzdáleny přibližně 5 minut autem. Pro komunikaci uvádějte evidenční číslo zakázky N116691.

Typ zakázky:
Prodej
Dispozice bytu:
2+1
Stav objektu:
Před rekonstrukcí
Užitná plocha:
48 m²
Umístění v objektu:
9. podlaží
Druh objektu:
Panelová
Vlastnictví:
Osobní
Sklep:
2 m²
Lodžie:
6 m²
Energ. nár. budovy:
B - Velmi úsporná
ID zakázky:
N116691
Pro pohyb mapy použijte dva prsty.
HYPOTEČNÍ KALKULAČKA
Hodnota nemovitosti
1 649 000 Kč
Výše úvěru
Vlastní zdroje
Doba splácení
let
Tato nemovitost již od měsíčně s roční úrokovou sazbou od 4,39 %.
Zjistit více informací
PODOBNÉ NEMOVITOSTI