1657 nemovitostí v ČESKÉ REPUBLICE
117 nemovitostí v ZAHRANIČÍ

Hlavní město Praha

Středočeský kraj

Jihočeský kraj

Plzeňský kraj

Karlovarský kraj

Ústecký kraj

Liberecký kraj

Královéhradecký kraj

Pardubický kraj

Kraj Vysočina

Jihomoravský kraj

Olomoucký kraj

Moravskoslezský kraj

Zlínský kraj

ZEMĚ

DISPOZICE

CENA A PLOCHA

Cena od
Cena do
Plocha od
Plocha do
Zobrazit nabídky
12 fotografií

Pronájem komerčního objektu Sklady, 722 m²

Hájecká 1304/14, Černovice, Brno
145 000 Kč (za nemovitost)
+ energie, + kauce (1x měsíční nájem), + provize RK, + DPH

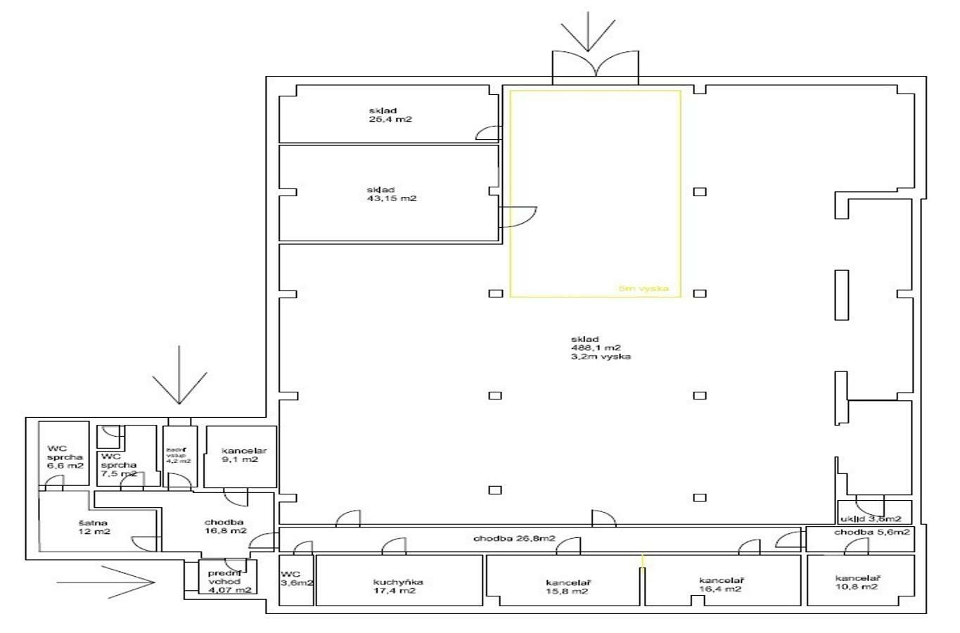
Nabízíme k pronájmu přízemní komerční budovu o celkové užitné ploše 722 m² v Brně, ulice Hájecká (areál ČSAD). Objekt je ideální pro skladování, logistiku, e-commerce, distribuci, lehkou výrobu nebo dílenský provoz. K dispozici ihned.

Budova je navržena tak, aby maximálně vyhovovala provozním potřebám moderní firmy. Celková užitná plocha je rozdělena do přehledných a funkčních celků:

Hlavní skladovací prostor
Srdcem budovy je rozsáhlý hlavní skladovací prostor, který poskytuje dostatek místa pro skladování zboží, manipulaci s paletami, provoz regálových systémů nebo organizaci logistických procesů. Prostor je přístupný přes nájezdovou rampu a vrata, která umožňují pohodlný příjezd nákladních vozidel včetně kamionu – bez komplikací, bez zbytečných manévrů. Součástí skladu jsou dvě větší kancelářské místnosti, které lze využít přímo jako operativní zázemí pro vedoucí skladu, dispečery nebo administrativu spojenou s provozem.

Administrativní a provozní zázemí
Z druhé strany budovy se nachází samostatný vstup přes klasické vstupní dveře do prostor zázemí. Tato část budovy nabízí:
- Kanceláře – vhodné pro administrativu, vedení firmy nebo obchodní oddělení
- Chodby – přehledné propojení jednotlivých prostor
- Toalety – standardní hygienické zázemí pro zaměstnance
- Šatny – praktické zázemí pro pracovníky skladu i kanceláří

Celkové řešení budovy je promyšlené a umožňuje efektivní oddělení provozní a administrativní části, přičemž obě zůstávají vzájemně dobře propojeny.

Přístup, logistika a parkování
Jedním z největších předností je výborná dostupnost a logistická připravenost:
- Přístup kamionem bez problémů – příjezdová komunikace a nájezdová rampa umožňují zásobování i expedici v plném rozsahu
- 12 parkovacích míst přímo před budovou u silnice – dostatek prostoru pro zaměstnance i návštěvy
- Manipulační plocha před skladem – ideální pro nakládku, vykládku, krátkodobé odstavení vozidel nebo manipulaci se zbožím

Výborné řešení pro firmy zaměřené na skladování, fulfillment, servis či montáž.

Technické vybavení
– elektřina
– vytápění plynovým kotlem
– teplá voda (bojler)
– napojení na veřejný vodovod a kanalizaci

Energie a služby jsou účtovány paušálem s ročním vyúčtováním dle skutečné spotřeby (dle měřidel).

Možnosti využití
Sklad, e-shop logistika (příjem, balení, expedice), servis, dílna, distribuční centrum, lehká výroba či kombinovaný administrativně-provozní provoz.

Cenové podmínky
Měsíční nájem: 145 000 Kč + DPH + služby
Kauce: 1 měsíční nájem
Nájemní smlouva na dobu neurčitou

Lokalita
Strategická poloha v Brně s výbornou dostupností na hlavní dopravní tahy, průmyslové zóny i dálniční síť. Vhodné jako základna pro lokální i celorepublikovou distribuci.

Neváhejte nás kontaktovat – rádi vám prostory osobně ukážeme a zodpovíme veškeré vaše dotazy. Pro komunikaci uvádějte evidenční číslo zakázky N116594.

Typ zakázky:
Pronájem
Typ nemovitosti:
Komerční
Užitná plocha:
722 m²
Stav objektu:
Dobrý
Parkovací místo:
12
Energ. nár. budovy:
G - Mimořádně nehospodárná
ID zakázky:
N116594
Pro pohyb mapy použijte dva prsty.