1557 nemovitostí v ČESKÉ REPUBLICE
119 nemovitostí v ZAHRANIČÍ

Hlavní město Praha

Středočeský kraj

Jihočeský kraj

Plzeňský kraj

Karlovarský kraj

Ústecký kraj

Liberecký kraj

Královéhradecký kraj

Pardubický kraj

Kraj Vysočina

Jihomoravský kraj

Olomoucký kraj

Moravskoslezský kraj

Zlínský kraj

ZEMĚ

DISPOZICE

CENA A PLOCHA

Cena od
Cena do
Plocha od
Plocha do
Zobrazit nabídky
17 fotografií

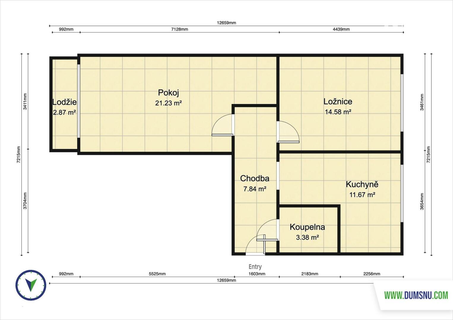
Pronájem bytu 2+1, 64 m²

Lukavice 84, Lukavice
9 000 Kč (za měsíc)
Nájemné činí 9.000 Kč měsíčně + přibližně 4.500 Kč zálohy na služby (teplo, voda) + cca 1.500 Kč záloha na elektřinu.

PRONÁJEM zrekonstruovaného bytu 2+1 v Lukavici

Hledáte klidné, hezké a prostorné bydlení v příjemné obci s výbornou dostupností do Mohelnice i Zábřeha? Pak by vás mohl zaujmout právě tento byt.

Byt je velmi pěkný, po rekonstrukci, a nachází se ve 2. nadzemním podlaží panelového domu.

Ze vstupní chodby se vstupuje do kuchyně, která je vybavena kuchyňskou linkou, troubou, varnou deskou a lednicí. V kuchyni je také prostor pro myčku i pračku. Okna jsou plastová s dvojskly.

V bytě se dále nacházejí dva neprůchozí pokoje, které mohou sloužit jako obývací pokoj, ložnice či dětský pokoj. K jednomu z pokojů náleží lodžie, která poskytuje příjemné místo pro odpočinek a relaxaci. Samozřejmostí je koupelna s vanou, umyvadlem, zrcadlem a toaletou.

Ohřev teplé vody zajišťuje elektrický bojler.

K bytu náleží prostorný sklep, který slouží k pohodlném uskladnění věcí, poskytuje praktický úložný prostor a zajišťuje pořádek v domácnosti.

Obec Lukavice se nachází u železniční tratě mezi Zábřehem a Olomoucí a nabízí typickou venkovskou občanskou vybavenost. Najdete zde mateřskou školu, základní školu (1.–5. ročník), obecní úřad, knihovnu, ordinaci praktického lékaře pro dospělé, sokolovnu i hřiště. K dispozici je také prodejna potravin a místní pohostinství.

Nájemné činí 9.000 Kč měsíčně + přibližně 4.500 Kč zálohy na služby (teplo, voda) + cca 1.500 Kč záloha na elektřinu.
Vratná kauce je stanovena ve výši 18.000 Kč. Provize realitní kanceláři činí 10.000 Kč + DPH.

Byt je určen k dlouhodobému pronájmu a je k dispozici ihned.

PENB: C
Dana Nová
Tel: 739 609 055 Pro komunikaci uvádějte evidenční číslo zakázky N116467.

Typ zakázky:
Pronájem
Dispozice bytu:
2+1
Stav objektu:
Velmi dobrý
Užitná plocha:
64 m²
Umístění v objektu:
2. podlaží
Druh objektu:
Panelová
Vlastnictví:
Osobní
Sklep:
ANO
Energ. nár. budovy:
C - Úsporná
ID zakázky:
N116467
Pro pohyb mapy použijte dva prsty.