1557 nemovitostí v ČESKÉ REPUBLICE
119 nemovitostí v ZAHRANIČÍ

Hlavní město Praha

Středočeský kraj

Jihočeský kraj

Plzeňský kraj

Karlovarský kraj

Ústecký kraj

Liberecký kraj

Královéhradecký kraj

Pardubický kraj

Kraj Vysočina

Jihomoravský kraj

Olomoucký kraj

Moravskoslezský kraj

Zlínský kraj

ZEMĚ

DISPOZICE

CENA A PLOCHA

Cena od
Cena do
Plocha od
Plocha do
Zobrazit nabídky
20 fotografií

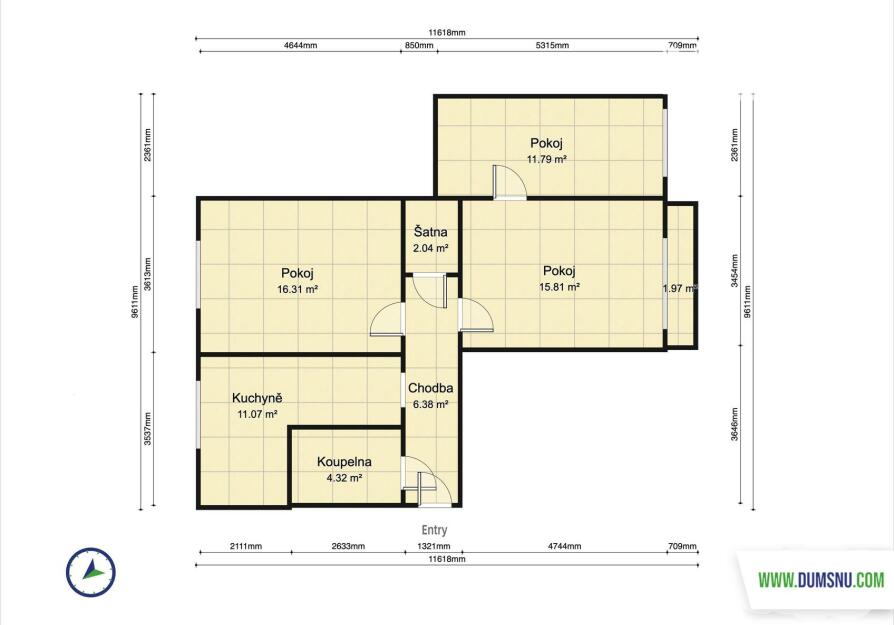
Prodej bytu 3+1, 68 m²

Severovýchod 634/33, Zábřeh
3 690 000 Kč (za nemovitost)

Prostorný družstevní byt 3+1, 68 m2, ulice Severovýchod, Zábřeh

Hledáte příjemné bydlení v Zábřehu, nebo chcete chytře investovat do nemovitosti? Potom zbystřete.

Nabízíme k prodeji byt o dispozici 3+1 na ulici Severovýchod v Zábřehu, nacházející se v 7. nadzemním podlaží panelového domu s výtahem. Jedná se o družstevní byt s možností převodu do osobního vlastnictví, se splacenou anuitou.

Byt je ve velmi zachovalém stavu. Dispozice zahrnuje koupelnu s toaletou, kuchyni s jídelním koutem a tři pokoje, z nichž jeden je průchozí. Z jednoho pokoje je vstup na zasklenou lodžii. Praktická šatna potěší každého, kdo ocení dostatek úložného prostoru. Součástí je také sklepní kóje.

Byt prošel částečnou rekonstrukcí – původní umakartové jádro bylo nahrazeno zděným.

Vaření je řešeno plynovým sporákem, vytápění je zajištěno dálkovým rozvodem tepla.

Panelový dům je po částečné revitalizaci: má plastová okna, novou fasádu se zateplením a výtah. Parkování je možné před domem.

V okolí se nachází veškerá občanská vybavenost – obchody, lékárny, poliklinika, škola, školka, dům dětí a mládeže, ZUŠ, pošta a další služby. Do centra města se pohodlně dostanete pěšky. Nedaleko je také cyklostezka vedoucí až do Postřelmova.

Město Zábřeh leží mezi Šumperkem a Mohelnicí. Do Olomouce se autem dostanete přibližně za 30 minut, do Šumperka díky obchvatu zhruba za 12 minut. Velkou výhodou je také vlakové nádraží, které zajišťuje výbornou dopravní dostupnost.

V případě, že vás tato nabídka zaujala, neváhejte mě kontaktovat, ráda vás provedu.

V rámci našeho servisu vám navíc zdarma zajistíme konzultaci s naším zkušeným finančním poradcem, který vám rád pomůže najít nejvýhodnější způsob financování nákupu této nemovitosti.

PENB: C
Dana Nová
Tel: 739 609 055
Cena: 3.690.000 Kč Pro komunikaci uvádějte evidenční číslo zakázky N116466.

Typ zakázky:
Prodej
Dispozice bytu:
3+1
Stav objektu:
Dobrý
Užitná plocha:
68 m²
Umístění v objektu:
7. podlaží
Druh objektu:
Panelová
Vlastnictví:
Družstevní
Sklep:
ANO
Energ. nár. budovy:
C - Úsporná
ID zakázky:
N116466
Pro pohyb mapy použijte dva prsty.
HYPOTEČNÍ KALKULAČKA
Hodnota nemovitosti
3 690 000 Kč
Výše úvěru
Vlastní zdroje
Doba splácení
let
Tato nemovitost již od měsíčně s roční úrokovou sazbou od 4,39 %.
Zjistit více informací
PODOBNÉ NEMOVITOSTI