1607 nemovitostí v ČESKÉ REPUBLICE
120 nemovitostí v ZAHRANIČÍ

Hlavní město Praha

Středočeský kraj

Jihočeský kraj

Plzeňský kraj

Karlovarský kraj

Ústecký kraj

Liberecký kraj

Královéhradecký kraj

Pardubický kraj

Kraj Vysočina

Jihomoravský kraj

Olomoucký kraj

Moravskoslezský kraj

Zlínský kraj

ZEMĚ

DISPOZICE

CENA A PLOCHA

Cena od
Cena do
Plocha od
Plocha do
Zobrazit nabídky
19 fotografií

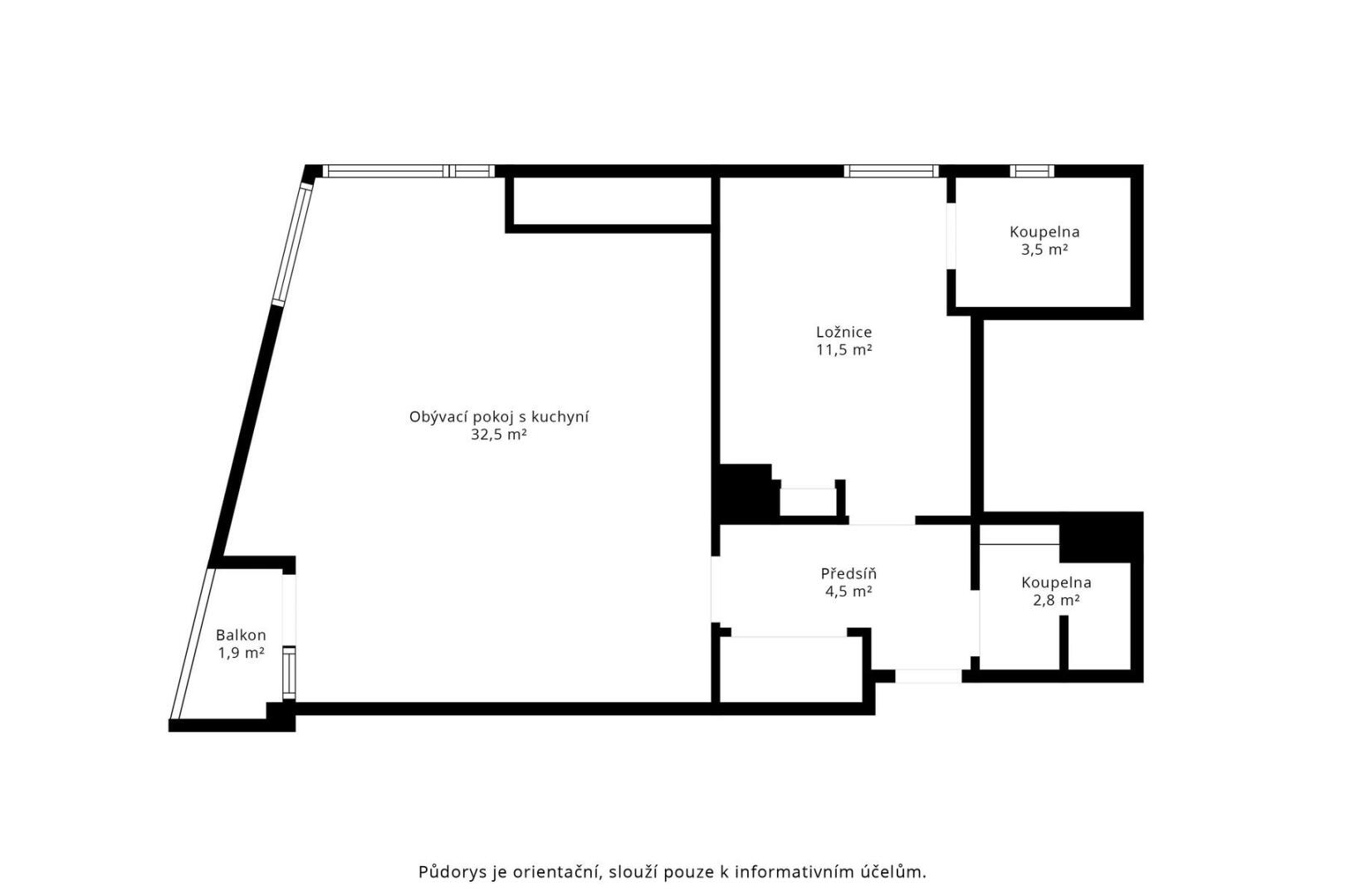
Prodej bytu 2+kk, 61 m²

Pod Ateliéry 1254/3, Hlubočepy, Praha
12 500 000 Kč (za nemovitost)

V Praze je těžké najít místo, kde máte zároveň moderní byt, absolutní klid a kousek vlastní zeleně. To vše naleznete v elegantní prémiové rezidenci ve vilové čtvrti, kde se stane Vaším novým domovem novostavba bytu, který nabízí vše pro dokonalý komfort. Byt o dispozici 2+kk má celkovou podlahovou plochu 66,5 m2, kdy užitná plocha činí 61,2 m2, lodžie činí 2,5 m2 a sklep 2,8 m2. Součástí ceny je také garážové stání. Okouzlí Vás jedinečná lokalita nejkrásnější části Barrandova, kde snoubí kombinace moderní architektury a krásné přírody. Kromě nadstandardně prostorného bytu máte také k dispozici garážové stání a výlučné užívaní vlastní soukromé zahrady (19,6 m2), kam si můžete kdykoli odejít odpočinout, posedět na slunci nebo strávit večer venku v naprostém soukromí. Ideální únik od města, který máte pár kroků od domova.

Designový byt s lodžií, vlastní zahradou a garážovým stáním je součástí prémiové komorní rezidence z roku 2019 situované na konci slepé ulice v klidné vilové zástavbě starého Barrandova. Byt ve 3.NP nabízí obývací pokoj s kuchyní a jídelnou se vstupem na lodžii , ložnici s en-suite koupelnou, samostatnou toaletu a předsíň s úložnými prostory. Interiér je proveden ve vysokém standardu – třívrstvé dřevěné podlahy, velkoformátová dlažba v dekoru kamene, kvalitní dveře, velkoplošná okna s venkovními žaluziemi, designové tapety a vestavěné skříně ve všech místnostech.

Na upravené zahradě s pergolou a grilem navazuje soukromá zahrada bytu. Dům stojí na hraně skalního masivu u lesů Chuchelského háje, přesto je metro Smíchovské nádraží dostupné autobusem do 10 minut. Díky exkluzivní lokaci v této vilové a památkové zóně se jedná o stabilní dlouhodobou investici.

Tento byt je nesporně jednou z nejlepších možných investic, díky mnoha výhodám:

- prémiová malá rezidence (jen pár bytů)
- celková podlahová plocha 66,5 m2
- tichá slepá ulice a zeleň poskytující jedinečné soukromí a bezpečnost
- výlučné užívání vlastní zahrady 19,6 m2
- garážové stání a sklep
- nízkoenergetická novostavba
- metro do 10 minut
- vysoký standard bez nutnosti investic
- atraktivní lokalita s růstem ceny

Byt je možné financovat hypotečním úvěrem a my Vám v tomto procesu rádi pomůžeme. Nabízíme moderní financování až na 30 let, bez ohledu na věk, prokazování příjmů či nutnost předkládat daňové přiznání (pro podnikatele). Zeptejte se nás a bydlete chytře! Pro komunikaci uvádějte evidenční číslo zakázky N116249.

Typ zakázky:
Prodej
Dispozice bytu:
2+kk
Stav objektu:
Novostavba
Užitná plocha:
61 m²
Plocha zahrady:
19 m²
Umístění v objektu:
3. podlaží
Druh objektu:
Cihlová
Vlastnictví:
Osobní
Sklep:
2 m²
Garáž:
ANO
Lodžie:
2 m²
Parkovací místo:
1
Plocha zahrady:
19 m²
Energ. nár. budovy:
B - Velmi úsporná
ID zakázky:
N116249
Pro pohyb mapy použijte dva prsty.
HYPOTEČNÍ KALKULAČKA
Hodnota nemovitosti
12 500 000 Kč
Výše úvěru
Vlastní zdroje
Doba splácení
let
Tato nemovitost již od měsíčně s roční úrokovou sazbou od 4,39 %.
Zjistit více informací
PODOBNÉ NEMOVITOSTI