1644 nemovitostí v ČESKÉ REPUBLICE
117 nemovitostí v ZAHRANIČÍ

Hlavní město Praha

Středočeský kraj

Jihočeský kraj

Plzeňský kraj

Karlovarský kraj

Ústecký kraj

Liberecký kraj

Královéhradecký kraj

Pardubický kraj

Kraj Vysočina

Jihomoravský kraj

Olomoucký kraj

Moravskoslezský kraj

Zlínský kraj

ZEMĚ

DISPOZICE

CENA A PLOCHA

Cena od
Cena do
Plocha od
Plocha do
Zobrazit nabídky
15 fotografií

Prodej rodinného domu, 109 m²

Jana Švermy 460, Lenešice
4 890 000 Kč (za nemovitost)

Na prodej nabízíme rodinný dům se zahradou v obci Lenešice, ulice Jana Švermy. Dům s celkovou užitnou plochou 109 m² a pozemkem o rozloze 585 m² přímo sousedí s druhým samostatným RD (dvojdomek).

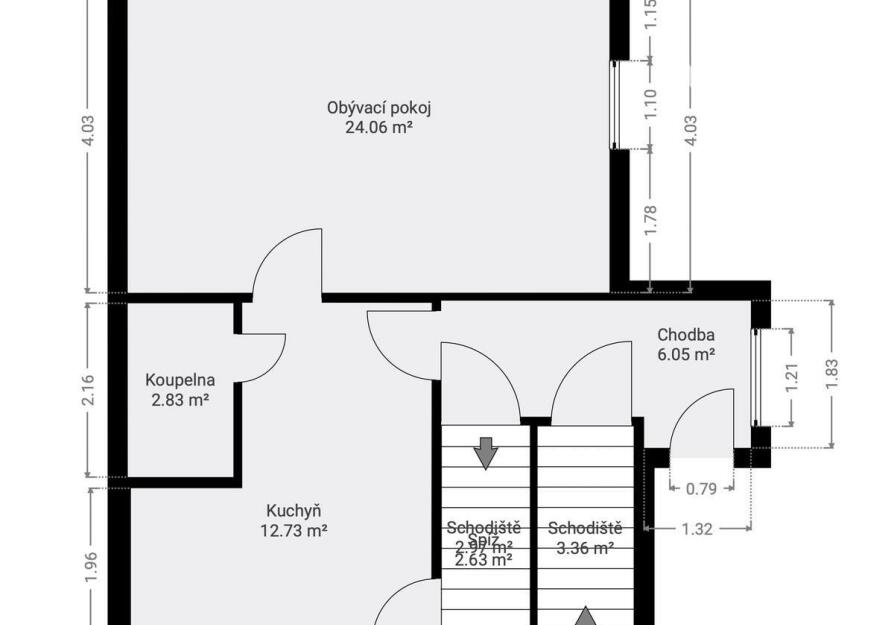
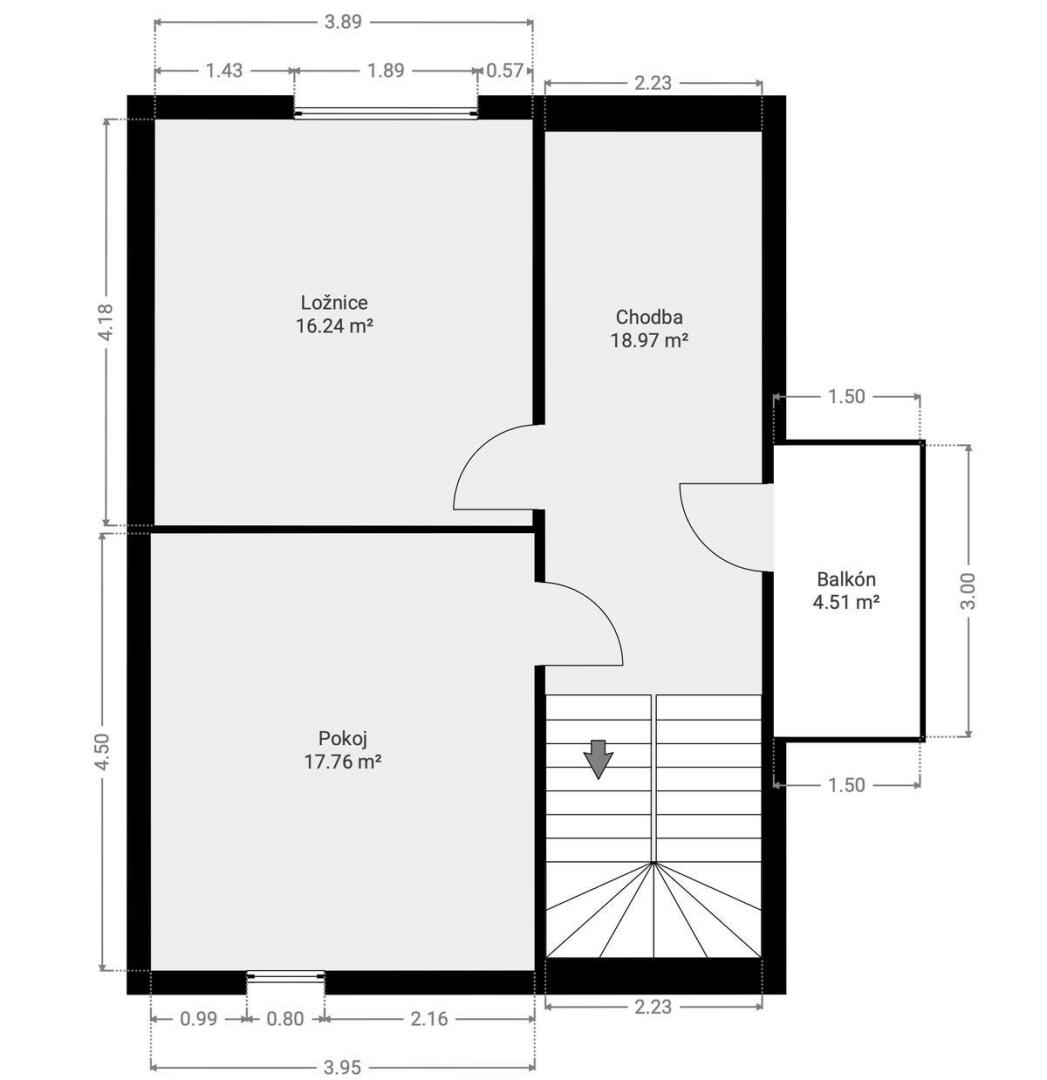
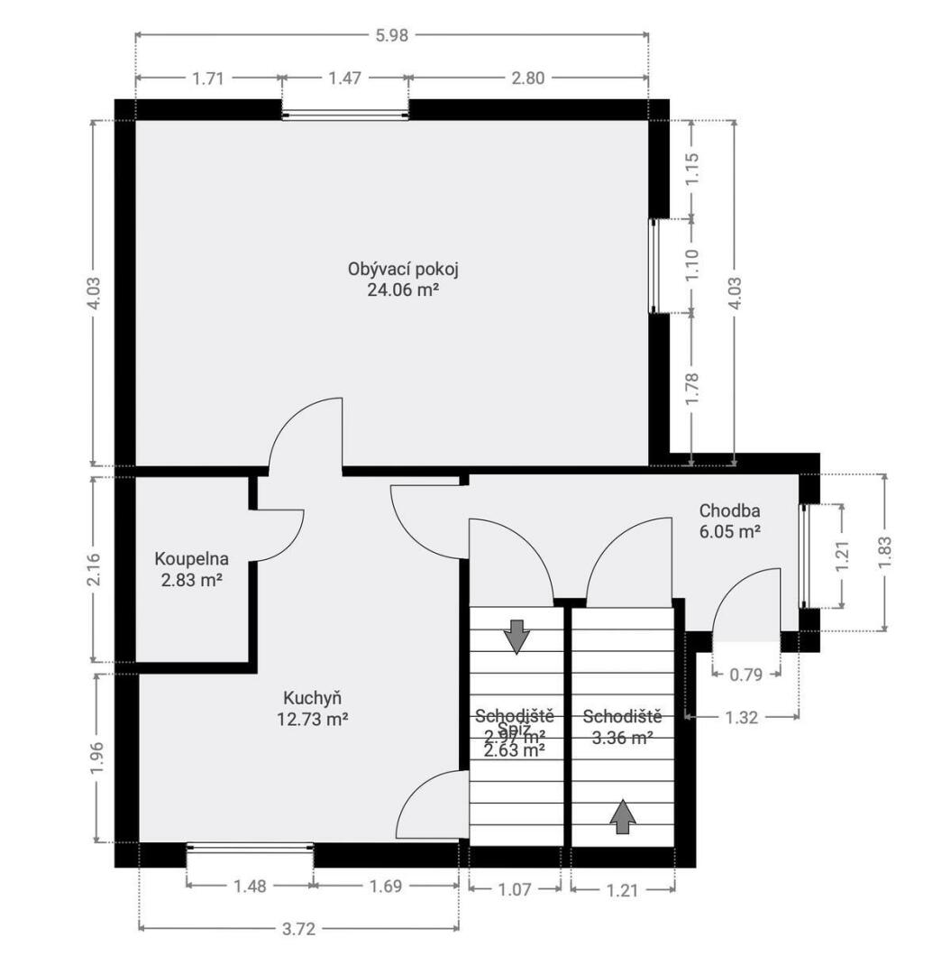
V přízemí najdete kuchyni, koupelnu a obývací pokoj. V patře je ložnice a druhý pokoj, který čeká na dokončení rekonstrukce – ideální příležitost přizpůsobit si dům podle vlastních představ. Dům má také jedno podzemní podlaží, kde se nachází čtyři místnosti využitelné jako sklep, dílna, sklad zahradního náčiní, kotelna, prádelna či letní kuchyň.

Vytápění je řešeno lokálně plynovým kotlem a kachlovými kamny, dům je napojen na veřejnou kanalizaci. Zahrada za domem nabízí dostatek místa pro odpočinek i vlastní realizaci – ať už vysadíte zeleninu, uděláte dětský koutek nebo pergolu s posezením. Na zahradě je také umístěn velký kotec pro psa.

Obec Lenešice leží jen pár minut od Loun, takže máte po ruce kompletní občanskou vybavenost, ale zároveň klid venkovského bydlení. Do 1,5 km se nachází škola i další služby. Ve vedlejší vesnici se také nachází alternativní soukromá základní škola. V blízké době bude v obci vysokorychlostní optický internet - až 2000 Mb/s (v současné době probíhá plánování realizačních prací).

Dobré spojení je taktéž to Prahy, v současné době jste v hlavním městě zhruba za 50 minut, po dokončení dálnice D7 se dojezdová doba ještě sníží.

Tento dům je vhodný jak pro rodinu, která hledá vlastní bydlení, tak i pro ty, kdo chtějí investovat do nemovitosti s potenciálem.

Blízké okolí nabízí příjemné procházky přírodou či vyjížďky na kole, v létě je možnost osvěžení v řece Ohři, která je chůzí vzdálená do 10 minut. Pro komunikaci uvádějte evidenční číslo zakázky N116214.

Typ zakázky:
Prodej
Stav objektu:
Dobrý
Užitná plocha:
109 m²
Plocha pozemku:
585 m²
Typ nemovitosti:
Rodinný
Poloha domu:
Samostatný
Typ domu:
Patrový
Terasa:
ANO
Parkovací místo:
2
Energ. nár. budovy:
F - Velmi nehospodárná
ID zakázky:
N116214
Pro pohyb mapy použijte dva prsty.
HYPOTEČNÍ KALKULAČKA
Hodnota nemovitosti
4 890 000 Kč
Výše úvěru
Vlastní zdroje
Doba splácení
let
Tato nemovitost již od měsíčně s roční úrokovou sazbou od 4,39 %.
Zjistit více informací
PODOBNÉ NEMOVITOSTI