1557 nemovitostí v ČESKÉ REPUBLICE
119 nemovitostí v ZAHRANIČÍ

Hlavní město Praha

Středočeský kraj

Jihočeský kraj

Plzeňský kraj

Karlovarský kraj

Ústecký kraj

Liberecký kraj

Královéhradecký kraj

Pardubický kraj

Kraj Vysočina

Jihomoravský kraj

Olomoucký kraj

Moravskoslezský kraj

Zlínský kraj

ZEMĚ

DISPOZICE

CENA A PLOCHA

Cena od
Cena do
Plocha od
Plocha do
Zobrazit nabídky
24 fotografií

Prodej bytu 3+kk, 64 m²

Obchodní 1318/1, Rudná
Rezervováno

Bydlení, kde se budete cítit opravdu doma.

Komfort, praktičnost, klid a příjemný výhled do vnitrobloku – to jsou hlavní přednosti tohoto velmi pěkného bytu 3+kk s prostorným balkónem, umístěného ve 2. nadzemním podlaží zděného domu v oblíbené Obchodní ulici v Rudné u Prahy.

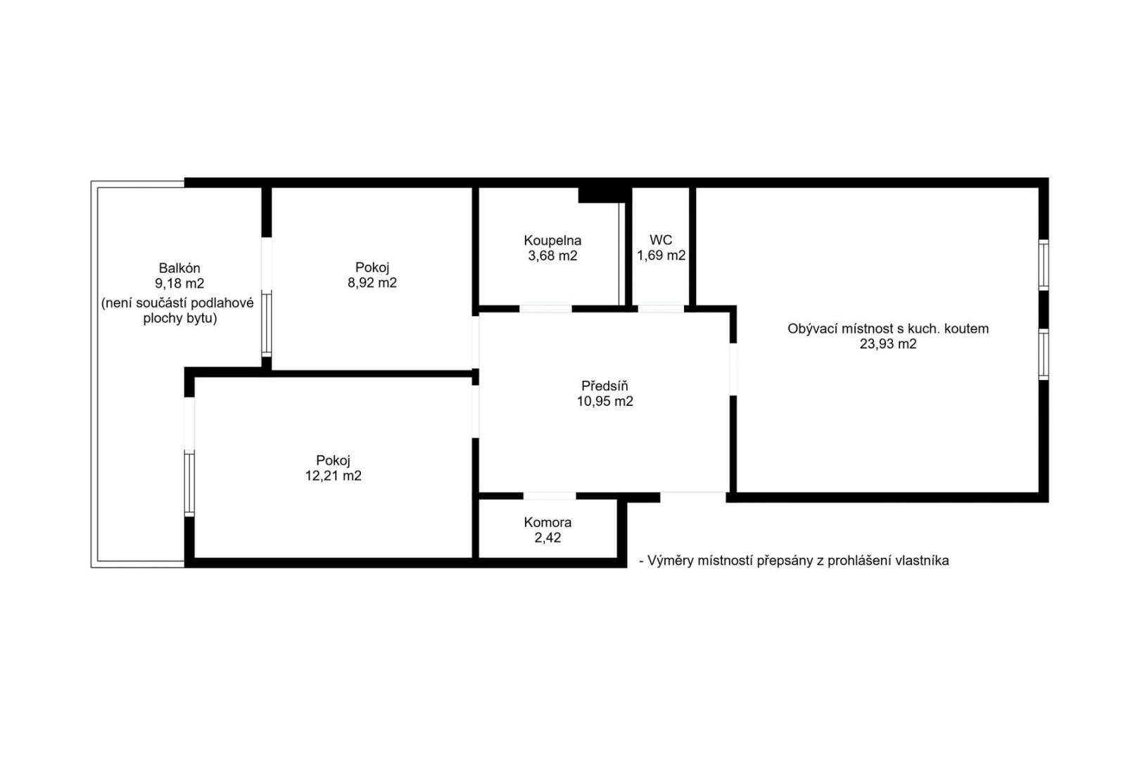
Byt o podlahové ploše 63,8 m² je promyšleně řešený tak, aby nabídl maximální pohodlí pro rodinné bydlení i moderní životní styl. Dominantou je světlý obývací prostor s kuchyňským koutem (23,93 m²), který přirozeně vybízí ke společným chvílím s rodinou či přáteli. Dva neprůchozí pokoje (12,21 m² a 8,92 m²) poskytují dostatek soukromí, ať už pro děti, pracovnu nebo ložnici.

Velkým benefitem je balkón o velikosti 9,18 m², přístupný z obou pokojů, orientovaný do klidného vnitrobloku. Ideální místo pro ranní kávu, večerní sklenku vína nebo jen chvíli ticha po náročném dni. Balkón není započítán do podlahové plochy, přesto výrazně rozšiřuje obytný komfort bytu.

Dispozici dále doplňuje prostorná předsíň, koupelna, samostatná toaleta a praktická komora, kterou ocení každý, kdo má rád pořádek a úložný prostor. Vytápění i ohřev teplé vody zajišťuje vlastní plynový kotel, což přináší kontrolu nad spotřebou a nízké provozní náklady. Dům je udržovaný ve velmi dobrém stavu a SVJ funguje bezproblémově.

Dalším praktickým benefitem je vlastní parkovací místo v garáži v suterénu domu, které zaručuje pohodlí a bezpečí v každém ročním období.

Rudná u Prahy nabízí ideální kombinaci klidného bydlení a výborné dostupnosti do hlavního města. Najdete zde kompletní občanskou vybavenost, zeleň, školy, školky i rychlé dopravní spojení do Prahy.

Pokud hledáte byt, který má příjemnou atmosféru, funkční dispozici a místo, kde se budete cítit dobře hned od první návštěvy, pak by tato nabídka neměla uniknout vaší pozornosti.

Rád vás osobně přivítám na prohlídce a ukážu vám, proč je tento byt výjimečný. Pro komunikaci uvádějte evidenční číslo zakázky N116167.

Typ zakázky:
Prodej
Dispozice bytu:
3+kk
Stav objektu:
Velmi dobrý
Užitná plocha:
64 m²
Umístění v objektu:
2. podlaží
Druh objektu:
Cihlová
Vlastnictví:
Osobní
Balkón:
9 m²
Garáž:
ANO
Lodžie:
5 m²
Energ. nár. budovy:
G - Mimořádně nehospodárná
ID zakázky:
N116167
Pro pohyb mapy použijte dva prsty.
PODOBNÉ NEMOVITOSTI