1562 nemovitostí v ČESKÉ REPUBLICE
151 nemovitostí v ZAHRANIČÍ

Hlavní město Praha

Středočeský kraj

Jihočeský kraj

Plzeňský kraj

Karlovarský kraj

Ústecký kraj

Liberecký kraj

Královéhradecký kraj

Pardubický kraj

Kraj Vysočina

Jihomoravský kraj

Olomoucký kraj

Moravskoslezský kraj

Zlínský kraj

ZEMĚ

DISPOZICE

CENA A PLOCHA

Cena od
Cena do
Plocha od
Plocha do
Zobrazit nabídky
8 fotografií

Pronájem bytu 2+kk, 53 m²

Na Labišti 534, Polabiny, Pardubice
Cena na vyžádání

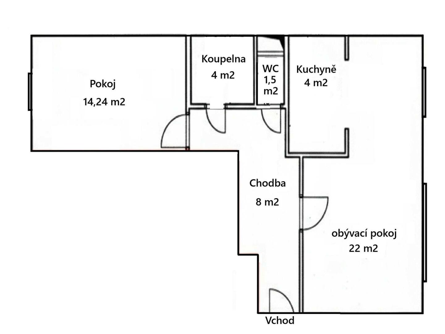
Nabízíme k pronájmu krásný slunný udržovaný byt 2+KK o výměře 53,74 m2, který se nachází ve 2NP bytového domu v ulici Na Labišti - Pardubice - Polabiny. Kuchyně je vybavena linkou s nerezovým dřezem, varnou deskou s dvěma plotýnkami. Koupelna disponuje vanou se sprchou, umyvadlem a místem pro pračku. WC samostatné. V chodbě k dispozici vestavěná skříň. Plastová okna - 2sklo. Podlahy převážně dlažba, v pokoji lino. Byt je nevybavený, bez sklepa a balkonu, v domě je kolárna a sušárna. Dům je zateplený celkově udržovaný, energetická náročnost C. bez výtahu (1,5 patra). V okolí se nachází ZŠ, MŠ, restaurace, supermarkety a obchody, sportoviště aj. Zastávka MHD cca 9 min chůze. Nájem 15.000 Kč + služby (5.000 Kč / 2 osoby) + elektřina + internet, vratná kauce 30.000 Kč, provize RK 20.000 Kč. Krásné prostředí u řeky pro volnočasové aktivity či procházky. Byt je volný, ihned k dispozici, nastěhování po domluvě. Přijďte se podívat na prohlídku! Pro komunikaci uvádějte evidenční číslo zakázky N116139.

Typ zakázky:
Pronájem
Dispozice bytu:
2+kk
Stav objektu:
Velmi dobrý
Užitná plocha:
53 m²
Umístění v objektu:
2. podlaží
Druh objektu:
Cihlová
Vlastnictví:
Osobní
Energ. nár. budovy:
C - Úsporná
ID zakázky:
N116139
Pro pohyb mapy použijte dva prsty.