1559 nemovitostí v ČESKÉ REPUBLICE
151 nemovitostí v ZAHRANIČÍ

Hlavní město Praha

Středočeský kraj

Jihočeský kraj

Plzeňský kraj

Karlovarský kraj

Ústecký kraj

Liberecký kraj

Královéhradecký kraj

Pardubický kraj

Kraj Vysočina

Jihomoravský kraj

Olomoucký kraj

Moravskoslezský kraj

Zlínský kraj

ZEMĚ

DISPOZICE

CENA A PLOCHA

Cena od
Cena do
Plocha od
Plocha do
Zobrazit nabídky
13 fotografií

Prodej pozemku Bydlení, 1 348 m²

Žabovřesky, Žabovřesky
4 490 000 Kč (za nemovitost)
Cena je uvedená včetně advokátních a RK služeb

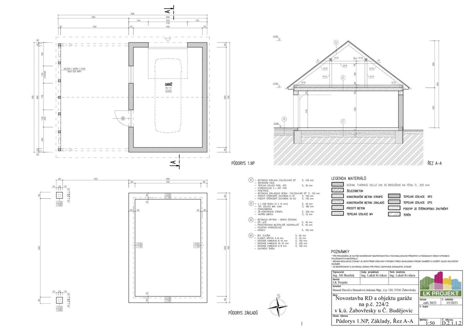
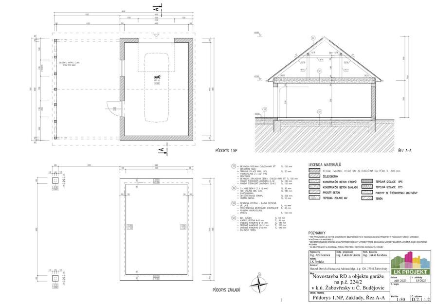
Prodej stavebního pozemku 1 348 m² – Žabovřesky u Českých Budějovic
Nabízíme k prodeji atraktivní stavební pozemek o výměře 1 348 m² v obci Žabovřesky, která se nachází v těsné blízkosti Českých Budějovic. Pozemek je dle platného územního plánu určen k výstavbě rodinného s maximální zastavěností 35 %, což poskytuje dostatek prostoru nejen pro samotnou stavbu, ale i pro zahradu a další zázemí.
Velkou výhodou této nabídky je skutečnost, že na pozemku již bylo žádáno o stavební povolení a je k dispozici zpracovaný stavební projekt rodinného domu včetně garážového stání. Budoucí majitel tak získává významnou časovou úsporu při přípravě výstavby.
Pozemek je technicky připraven k realizaci stavby. V přední části pozemku se nachází kaplička na elektřinu, v přístupové komunikaci je připravena přípojka na vodu. Odpadní vody jsou dle regulativu řešeny vlastní čističkou odpadních vod. Na konci pozemku jsou již zakopané kolektory pro tepelné čerpadlo, což výrazně snižuje budoucí náklady na vytápění a zvyšuje energetickou efektivitu domu.
Obec Žabovřesky je dlouhodobě vyhledávanou lokalitou pro klidné rodinné bydlení s výbornou dostupností krajského města. Českých Budějovic jsou 10 minut jízdy autem. Obec i její okolí nabízí základní občanskou vybavenost, obchody, služby, mateřské a základní školy v dostupné vzdálenosti, restaurace a dobré dopravní spojení. Milovníci aktivního života ocení blízkou přírodu, cyklostezky a možnosti pro relaxaci i sport.
Tento pozemek je ideální volbou pro ty, kteří hledají kvalitní bydlení v klidném prostředí s rychlým napojením na město, případně jako zajímavou investiční příležitost. Pro komunikaci uvádějte evidenční číslo zakázky N116036.

Typ zakázky:
Prodej
Druh pozemku:
Bydlení
Celková plocha:
1 348 m²
Komunikace:
Asfaltová
ID zakázky:
N116036
Pro pohyb mapy použijte dva prsty.
HYPOTEČNÍ KALKULAČKA
Hodnota nemovitosti
4 490 000 Kč
Výše úvěru
Vlastní zdroje
Doba splácení
let
Tato nemovitost již od měsíčně s roční úrokovou sazbou od 4,39 %.
Zjistit více informací