1557 nemovitostí v ČESKÉ REPUBLICE
150 nemovitostí v ZAHRANIČÍ

Hlavní město Praha

Středočeský kraj

Jihočeský kraj

Plzeňský kraj

Karlovarský kraj

Ústecký kraj

Liberecký kraj

Královéhradecký kraj

Pardubický kraj

Kraj Vysočina

Jihomoravský kraj

Olomoucký kraj

Moravskoslezský kraj

Zlínský kraj

ZEMĚ

DISPOZICE

CENA A PLOCHA

Cena od
Cena do
Plocha od
Plocha do
Zobrazit nabídky
18 fotografií

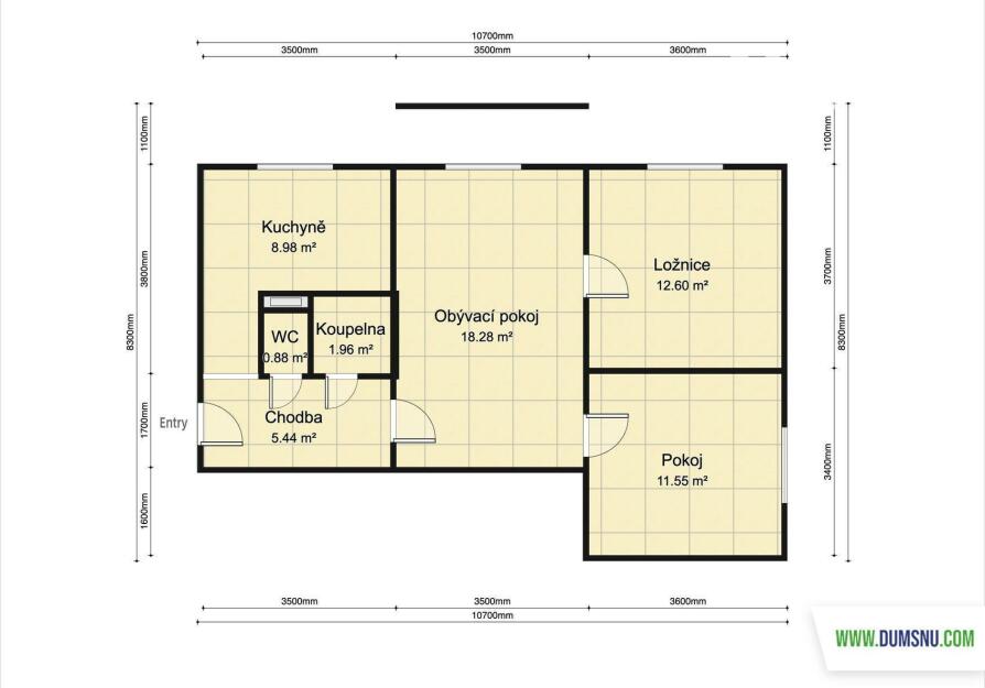
Pronájem bytu 3+1, 68 m²

Lidická 1767/19, Šumperk
10 500 Kč (za měsíc)

Hledáte bydlení kousek od centra města Šumperka? Tento byt na ulici Lidická je přesně pro ty, kteří chtějí mít vše na dosah a zároveň si užít příjemné prostředí.
Byt o dispozici 3+1 se nachází v 1.NP revitalizovaného panelového domu. Najdete v něm obývací pokoj, dvě útulné ložnice, praktickou kuchyni, koupelnu se sprchovým koutem a samostatnou toaletu. Orientace na jihovýchod zajišťuje dostatek světla po celý den.
V bytě je vyzděné jádro, částečně nové rozvody elektřiny i odpadů. Součástí pronájmu je také sklepní kóje, ideální pro uložení sezónních či sportovních věcí. Vytápění i ohřev vody jsou řešeny dálkově.
Měsíční náklady na bydlení:
• Nájemné: 10.500 Kč
• Zálohy na služby: 3.209 Kč
• Elektřinu (cca 1.500 Kč) a plyn (cca 300 Kč) si nájemník přepisuje na sebe
Vrátná kauce činní 21.000 Kč a odměna realitní kanceláři 10.500 Kč + DPH.

V blízkém okolí je kompletní občanská vybavenost – mateřská i základní škola, dětská hřiště, parky, obchody, lékaři, pošta i další služby jsou v docházkové blízkosti. Parkování je možné u domu.
Zaujal vás tento byt? Ozvěte se mi, ráda vám ho osobně ukážu. Pro komunikaci uvádějte evidenční číslo zakázky N115995.

Typ zakázky:
Pronájem
Dispozice bytu:
3+1
Stav objektu:
Dobrý
Užitná plocha:
68 m²
Umístění v objektu:
1. podlaží
Druh objektu:
Panelová
Vlastnictví:
Osobní
Energ. nár. budovy:
G - Mimořádně nehospodárná
ID zakázky:
N115995
Pro pohyb mapy použijte dva prsty.