1644 nemovitostí v ČESKÉ REPUBLICE
117 nemovitostí v ZAHRANIČÍ

Hlavní město Praha

Středočeský kraj

Jihočeský kraj

Plzeňský kraj

Karlovarský kraj

Ústecký kraj

Liberecký kraj

Královéhradecký kraj

Pardubický kraj

Kraj Vysočina

Jihomoravský kraj

Olomoucký kraj

Moravskoslezský kraj

Zlínský kraj

ZEMĚ

DISPOZICE

CENA A PLOCHA

Cena od
Cena do
Plocha od
Plocha do
Zobrazit nabídky
5 fotografií

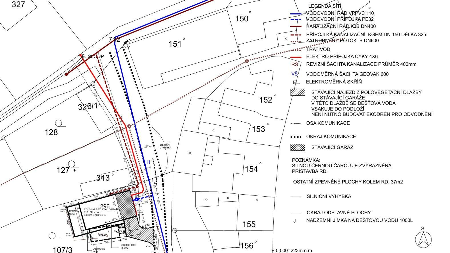
Prodej pozemku Bydlení, 576 m²

Kroměříž, Těšnovice, Kroměříž
2 500 000 Kč (za nemovitost)

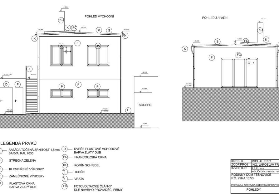
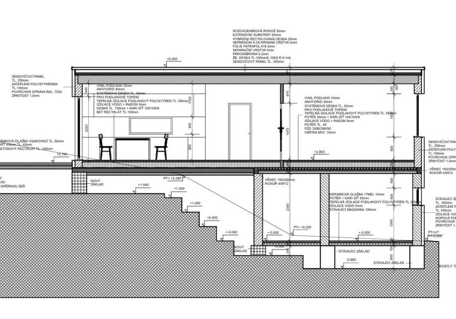
Ve výhradním zastoupení si Vám dovolujeme nabídnout pozemek v obci Těšnovice (5km od Kroměříže). Na tomto pozemku je postavěna funkční garáž (24 m2), která se doposud pronajímá. K pozemku jsou přivedeny veškeré sítě a součástí prodeje je již schválené stavební povolení včetně kompletního projektu. Doporučujeme osobní prohlídku, kde bude možné veškeré podklady vidět a projít. Pro komunikaci uvádějte evidenční číslo zakázky N115990.

Typ zakázky:
Prodej
Druh pozemku:
Bydlení
Celková plocha:
576 m²
ID zakázky:
N115990
Pro pohyb mapy použijte dva prsty.
HYPOTEČNÍ KALKULAČKA
Hodnota nemovitosti
2 500 000 Kč
Výše úvěru
Vlastní zdroje
Doba splácení
let
Tato nemovitost již od měsíčně s roční úrokovou sazbou od 4,39 %.
Zjistit více informací