1585 nemovitostí v ČESKÉ REPUBLICE
147 nemovitostí v ZAHRANIČÍ

Hlavní město Praha

Středočeský kraj

Jihočeský kraj

Plzeňský kraj

Karlovarský kraj

Ústecký kraj

Liberecký kraj

Královéhradecký kraj

Pardubický kraj

Kraj Vysočina

Jihomoravský kraj

Olomoucký kraj

Moravskoslezský kraj

Zlínský kraj

ZEMĚ

DISPOZICE

CENA A PLOCHA

Cena od
Cena do
Plocha od
Plocha do
Zobrazit nabídky
30 fotografií

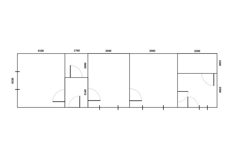
Prodej rodinného domu, 95 m²

Palackého 146, Městec Králové
4 499 000 Kč (za nemovitost)

Nabízíme k prodeji rodinný dům o dispozici 3+1, s odděleným bytem 1+1 v Městci Králové. Celková podlahová plocha domu činí 95 m² a zahrada o velikosti 175 m².

Hlavní bytová jednotka o dispozici 3+1 (72,5 m²) Vás osloví svým prostorem i možnostmi, zahrnuje také technickou místnost s kotlem na tuhá paliva a koupelnou. Součástí domu je rovněž samostatný byt 1+1 (22,5 m²) po rekonstrukci, též s vlastní kuchyní a koupelnou, vhodný i k případnému pronájmu.

Dům je nově zateplený. Vytápění je řešeno kotlem na tuhá paliva a kamny. Zdroj vody je zajištěn z vlastní studny a odpad napojen na veřejnou kanalizaci.

Celý pozemek je od cesty oddělen garážovými vraty, to zaručuje naprostý klid a soukromí. Součástí zahrady je také pergola a dílna, jež se dá využít mnoha způsoby, záleží jen na uvážení nového majitele.

Dalším benefitem je půda s možností vybudování další bytové jednotky, což nabízí prostor pro budoucí rozšíření obytné plochy dle vlastních potřeb.

Městec Králové nabízí kompletní občanskou vybavenost a dobrou dostupnost do okolních měst – do Nymburka je to cca 15 minut, do Chlumce nad Cidlinou cca 10 minut a přístup na dálnici D11 je vzdálen přibližně 15 minut.

Neváhejte si domluvit prohlídku – osobní návštěva Vám poskytne nejlepší představu o této nemovitosti.

Prodej spěchá! Pro komunikaci uvádějte evidenční číslo zakázky N115713.

Typ zakázky:
Prodej
Stav objektu:
Velmi dobrý
Užitná plocha:
95 m²
Plocha pozemku:
383 m²
Plocha zahrady:
175 m²
Typ nemovitosti:
Rodinný
Poloha domu:
Řadový
Typ domu:
Přízemní
Parkovací místo:
ANO
Energ. nár. budovy:
G - Mimořádně nehospodárná
ID zakázky:
N115713
Pro pohyb mapy použijte dva prsty.
HYPOTEČNÍ KALKULAČKA
Hodnota nemovitosti
4 499 000 Kč
Výše úvěru
Vlastní zdroje
Doba splácení
let
Tato nemovitost již od měsíčně s roční úrokovou sazbou od 4,39 %.
Zjistit více informací
PODOBNÉ NEMOVITOSTI