1584 nemovitostí v ČESKÉ REPUBLICE
147 nemovitostí v ZAHRANIČÍ

Hlavní město Praha

Středočeský kraj

Jihočeský kraj

Plzeňský kraj

Karlovarský kraj

Ústecký kraj

Liberecký kraj

Královéhradecký kraj

Pardubický kraj

Kraj Vysočina

Jihomoravský kraj

Olomoucký kraj

Moravskoslezský kraj

Zlínský kraj

ZEMĚ

DISPOZICE

CENA A PLOCHA

Cena od
Cena do
Plocha od
Plocha do
Zobrazit nabídky
27 fotografií

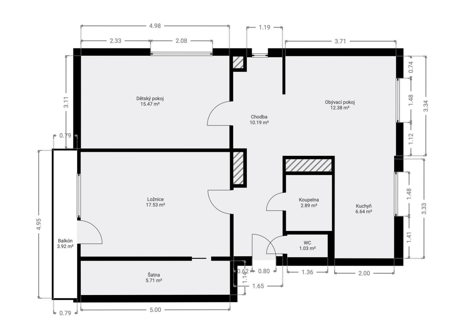
Prodej bytu 3+kk, 72 m²

Železničního pluku 1623, Zelené Předměstí, Pardubice
7 195 000 Kč (za nemovitost)

Nabízíme k prodeji krásný, světlý a prostorný byt 3+kk v žádané lokalitě Pardubic – ulice Železničního pluku. Byt se nachází v uzavřeném a oploceném bytovém domě, který nabízí maximální soukromí a bezpečí.

Byt prošel kompletní a velmi vkusnou rekonstrukcí před cca rokem – vše je nové, moderní a připravené k okamžitému nastěhování bez dalších investic. Díky promyšlené dispozici a dostatku denního světla působí byt velmi příjemně a vzdušně.

O komfort se stará vlastní plynový kotel, který zajišťuje efektivní vytápění i ohřev vody a umožňuje kontrolu nad náklady na bydlení.

Hlavní výhody bytu:

-dispozice 3+kk

-kompletní rekonstrukce (cca 1 rok)

-světlý a prostorný interiér

-vlastní plynový kotel

-sklep k bytu

-kryté parkovací stání

-krásná společná zahrada za domem

-oplocený areál domu

-kamerový systém – bezpečí a soukromí

-klidná lokalita s dobrou dostupností

Tento byt je ideální volbou pro ty, kteří hledají moderní bydlení v klidném a bezpečném prostředí, a zároveň chtějí mít vše důležité v dosahu.

PENB bude dodán, aktuálně uvádíme třídu G.

Pro více informací a osobní prohlídku nás neváhejte kontaktovat. Rádi vás bytem provedeme. Pro komunikaci uvádějte evidenční číslo zakázky N115646.

Typ zakázky:
Prodej
Dispozice bytu:
3+kk
Stav objektu:
Po rekonstrukci
Užitná plocha:
72 m²
Umístění v objektu:
4. podlaží
Druh objektu:
Cihlová
Vlastnictví:
Osobní
Balkón:
4 m²
Sklep:
2 m²
Parkovací místo:
ANO
Energ. nár. budovy:
G - Mimořádně nehospodárná
ID zakázky:
N115646
Pro pohyb mapy použijte dva prsty.
HYPOTEČNÍ KALKULAČKA
Hodnota nemovitosti
7 195 000 Kč
Výše úvěru
Vlastní zdroje
Doba splácení
let
Tato nemovitost již od měsíčně s roční úrokovou sazbou od 4,39 %.
Zjistit více informací
PODOBNÉ NEMOVITOSTI