1584 nemovitostí v ČESKÉ REPUBLICE
147 nemovitostí v ZAHRANIČÍ

Hlavní město Praha

Středočeský kraj

Jihočeský kraj

Plzeňský kraj

Karlovarský kraj

Ústecký kraj

Liberecký kraj

Královéhradecký kraj

Pardubický kraj

Kraj Vysočina

Jihomoravský kraj

Olomoucký kraj

Moravskoslezský kraj

Zlínský kraj

ZEMĚ

DISPOZICE

CENA A PLOCHA

Cena od
Cena do
Plocha od
Plocha do
Zobrazit nabídky
13 fotografií

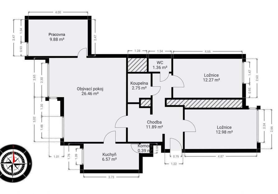
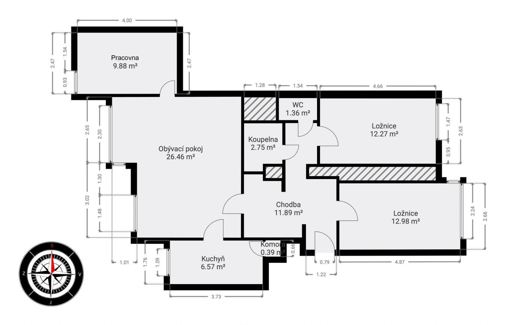
Prodej bytu 3+1, 85 m²

Leoše Janáčka 816, Králíky
2 900 000 Kč (za nemovitost)

Hledáte byt apartmánového typu za rozumné prostředky?

Nabízíme prodej pěkného bytu o velikosti 3+1(+ pracovna) s nádhernými výhledy v Králíkách.

Byt ve třetím patře atypického domu horského typu s nádherným výhledem na Suchý Vrch, Kralický sněžník, Stezku v oblacích a neposlední řadě dominantu místa Mariánské poutní místo Horu Matky Boží.

Orientační dispozice i standard dle fotoprezentace, o výměře podlahové plochy 85 m2.
K bytu dále náleží sklepní koje.

K bytu je možné přikoupit samostatnou garáž v domě

V bytě optický kabel pro vysokorychlostní internet

Vyjma toho, že je město Králíky městem s plnou občanskou vybaveností, mají jeden obrovský bonus a to že jsou v okruhu pár kilometrů obklopeny různými zimními středisky, jsou tedy i ideálním místem pro člověka milujícího lyžování, rozmanitou krajinu, výhledy a turistiku. Například zimní areál Dolní Morava i Buková Hora je od města vzdálen 7,5 km pohodlné 15 min jízdy od domu.

Zdarma Vám zajistíme nejlevnější hypoteční úvěr na trhu prostřednictvím spolupracujícího špičkového finančního poradce. Pro komunikaci uvádějte evidenční číslo zakázky N115645.

Typ zakázky:
Prodej
Dispozice bytu:
3+1
Stav objektu:
Velmi dobrý
Užitná plocha:
85 m²
Umístění v objektu:
4. podlaží
Druh objektu:
Skeletová
Vlastnictví:
Osobní
Sklep:
ANO
Garáž:
ANO
Energ. nár. budovy:
G - Mimořádně nehospodárná
ID zakázky:
N115645
Pro pohyb mapy použijte dva prsty.
HYPOTEČNÍ KALKULAČKA
Hodnota nemovitosti
2 900 000 Kč
Výše úvěru
Vlastní zdroje
Doba splácení
let
Tato nemovitost již od měsíčně s roční úrokovou sazbou od 4,39 %.
Zjistit více informací
PODOBNÉ NEMOVITOSTI