1635 nemovitostí v ČESKÉ REPUBLICE
116 nemovitostí v ZAHRANIČÍ

Hlavní město Praha

Středočeský kraj

Jihočeský kraj

Plzeňský kraj

Karlovarský kraj

Ústecký kraj

Liberecký kraj

Královéhradecký kraj

Pardubický kraj

Kraj Vysočina

Jihomoravský kraj

Olomoucký kraj

Moravskoslezský kraj

Zlínský kraj

ZEMĚ

DISPOZICE

CENA A PLOCHA

Cena od
Cena do
Plocha od
Plocha do
Zobrazit nabídky
26 fotografií

Prodej bytu 2+kk, 111 m²

Olgy Havlové 2899/17, Žižkov, Praha
11 490 000 Kč (za nemovitost)
Cena včetně odměny RK a právního servisu

Exkluzivně nabízíme k prodeji byt o dispozici 2+kk s několika venkovními plochami v moderním rezidenčním projektu v klidné části pražského Žižkova. Byt se nachází v přízemí moderní novostavby v klidné lokalitě Pražského Vackova, v ulici Olgy Havlové, Praha 3 – Žižkov.

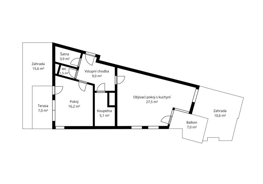
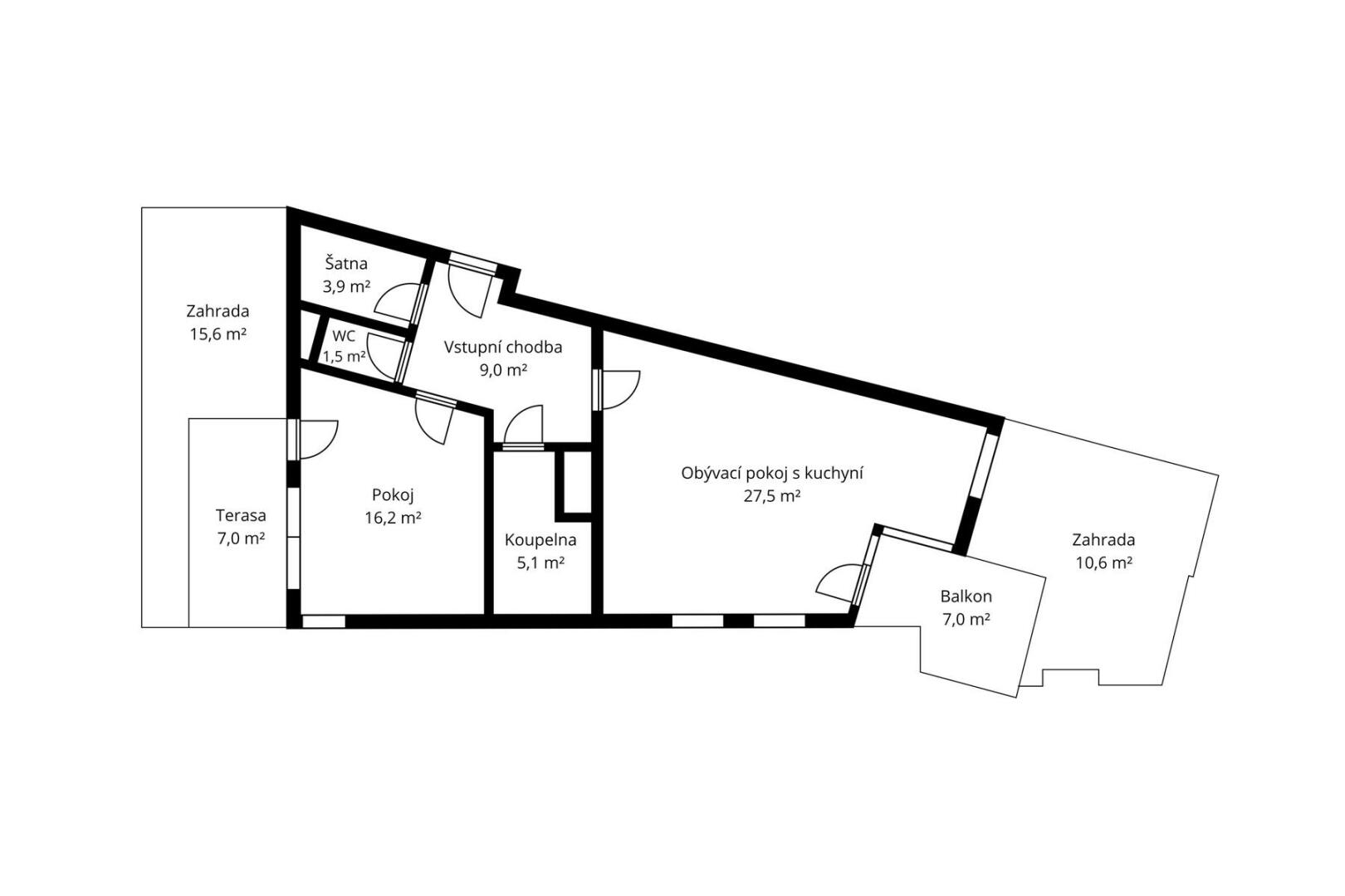
Celková užitná plocha činí 111 m² a zahrnuje samotný byt o ploše 66,4 m², dvě terasy a dvě zahrádky orientované jak do soukromého vnitrobloku, tak do klidného okolí domu. Součástí prodeje je sklep v suterénu domu.

Byt je velmi slunný a nabízí příjemné propojení interiéru s exteriérem.

Z obývacího pokoje s kuchyňským koutem je vstup na balkon (7 m²) se zahrádkou (10,6 m²), ideální pro posezení nebo zeleň. Ložnice má přímý vstup na terasu (7 m²) a zahrádku ve vnitrobloku (15,6 m²), která poskytuje klid a soukromí. Další krytá terasa (9 m²) rozšiřuje obytný prostor a nabízí využití po většinu roku.

Dispozice je praktická a promyšlená – obývací pokoj s kuchyní tvoří otevřený a světlý prostor, ložnice je klidná a dostatečně velká. Součástí bytu je koupelna, samostatné WC a šatna, které zvyšují komfort každodenního bydlení. Dispoziční plánek je součástí prezentace.

Interiér působí čistě, vzdušně a nadčasově. Byt je ve velmi dobrém stavu a je vhodný jak pro vlastní bydlení, tak jako investiční příležitost. SVJ je mladé a velmi dobře fungující, provozní náklady jsou nízké.

Rezidenční projekt je koncipován s důrazem na zeleň a klid – vnitrobloky, pěší cesty a parkové úpravy vytvářejí příjemné prostředí bez ruchu města, přesto s výbornou dostupností.

Velkou výhodou je poloha v docházkové vzdálenosti od parku Židovské pece, který nabízí prostor pro relax, sport i procházky. Lokalita má kompletní občanskou vybavenost a rychlé spojení do centra Prahy.

Tento byt nabízí kombinaci městského bydlení, soukromí a zeleně – hodnotu, která je v širším centru Prahy velmi žádaná.

Pro více informací mě neváhejte kdykoliv kontaktovat. Rád Vám byt osobně ukážu. Pro komunikaci uvádějte evidenční číslo zakázky N115539.

Typ zakázky:
Prodej
Dispozice bytu:
2+kk
Stav objektu:
Novostavba
Užitná plocha:
111 m²
Plocha zahrady:
25 m²
Umístění v objektu:
1. podlaží
Druh objektu:
Cihlová
Vlastnictví:
Osobní
Balkón:
10 m²
Sklep:
3 m²
Terasa:
7 m²
Plocha zahrady:
25 m²
Energ. nár. budovy:
B - Velmi úsporná
ID zakázky:
N115539
Pro pohyb mapy použijte dva prsty.
HYPOTEČNÍ KALKULAČKA
Hodnota nemovitosti
11 490 000 Kč
Výše úvěru
Vlastní zdroje
Doba splácení
let
Tato nemovitost již od měsíčně s roční úrokovou sazbou od 4,39 %.
Zjistit více informací
PODOBNÉ NEMOVITOSTI