1595 nemovitostí v ČESKÉ REPUBLICE
120 nemovitostí v ZAHRANIČÍ

Hlavní město Praha

Středočeský kraj

Jihočeský kraj

Plzeňský kraj

Karlovarský kraj

Ústecký kraj

Liberecký kraj

Královéhradecký kraj

Pardubický kraj

Kraj Vysočina

Jihomoravský kraj

Olomoucký kraj

Moravskoslezský kraj

Zlínský kraj

ZEMĚ

DISPOZICE

CENA A PLOCHA

Cena od
Cena do
Plocha od
Plocha do
Zobrazit nabídky
6 fotografií

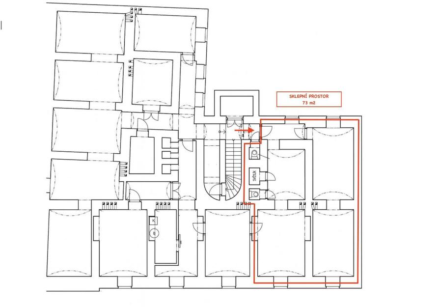
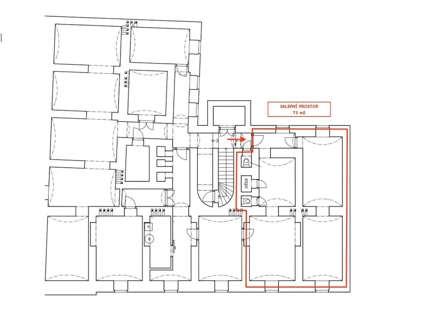
Pronájem komerčního objektu Sklady, 73 m²

Pplk. Sochora 694/24, Holešovice, Praha
19 000 Kč (za měsíc)
plus náklady na energie služby (elektřina, voda, vytápění, údržba), kauce, provize RK

K pronájmu nabízíme sklepní prostor o výměře 73 m² v suterénu činžovního domu na rohu ulic Dukelských hrdinů 39 a Pplk. Sochora 24, Praha 7 – Holešovice. Prostor tvoří čtyři místnosti se samostatným vstupem z hlavního schodiště domu, má vlastní sociální zázemí (toaleta, umyvadlo). Je možné zajistit přípravu pro instalaci kuchyňské linky.

Vhodné jako zázemí pro e-shop, ateliér, dílnu, archiv, kancelář bez přístupu klientů, výdejní místo, zkušebnu nebo sklad. Sklepní charakter zajišťuje stálou teplotu a klidné prostředí. Přístup 24/7, vstup přes domovní vchod.

Perfektní lokalita pár kroků od centra – tramvajová zastávka u domu, metro Vltavská 5 minut chůze. Parkování v modré zóně. Prostor bude k dispozici po realizaci nezbytných oprav od března 2026. Pro komunikaci uvádějte evidenční číslo zakázky N115450.

Typ zakázky:
Pronájem
Typ nemovitosti:
Komerční
Užitná plocha:
73 m²
Plocha pozemku:
1 m²
Stav objektu:
Velmi dobrý
Energ. nár. budovy:
G - Mimořádně nehospodárná
ID zakázky:
N115450
Pro pohyb mapy použijte dva prsty.