Hledáte pěkný a prostorný byt na dobrém místě? A co tato 3+1 v oblíbené části Zábřehu na ulici Křížkovského?
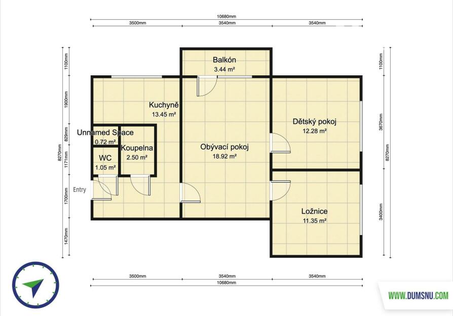
Byt o výměře 62 m2 se nachází ve 2. patře revitalizovaného panelového domu a na konci roku 2022 v něm proběhla rozsáhlá moderní rekonstrukce.
Dispozice je řešena velmi prakticky. Po vstupu do bytu se nachází chodba s vestavěnou skříní po celé délce, která poskytuje dostatek úložného prostoru. Kuchyň je vybavena velkou moderní linkou s vestavěnými spotřebiči. V koupelně, i přes její menší rozměr, našel své místo sprchový kout a je zde místo pro pračku se sušičkou (nejsou součástí vybavení). Ložnice i dětský pokoj jsou orientovány na východ, takže nabízejí dostatek denního světla i prostoru. Největší místností je světlý obývací pokoj s přímým vstupem na balkon, který je ideálním místem pro relaxaci.
Byt je kompletně vybaven.
Součástí bytu je sklep a samostatná komora o výměře 2 m², umístěná v mezipatře mimo bytovou jednotku, s přivedenou elektřinou.
Lokalita je ideální pro rodinné bydlení i pro každého, kdo hledá moderní byt na dobré adrese – do centra města s kompletní občanskou vybaveností je to jen pár minut chůze, přesto je dům umístěn mimo hlavní komunikaci, takže nabízí dostatek klidu a soukromí.
Nájemné je stanoveno na 14.000 Kč + cca 3.500 Kč tvoří zálohy na služby a energie spojené s užíváním bytu. Vratná kauce činí 30.000 Kč a provize realitní kanceláři 14.000 Kč + DPH.
Byt je určen k dlouhodobému pronájmu a bude k dispozici od 1.2.2026.
Prohlídky budou možné až od 9.1.2026. Pro komunikaci uvádějte evidenční číslo zakázky N115433.