1549 nemovitostí v ČESKÉ REPUBLICE
119 nemovitostí v ZAHRANIČÍ

Hlavní město Praha

Středočeský kraj

Jihočeský kraj

Plzeňský kraj

Karlovarský kraj

Ústecký kraj

Liberecký kraj

Královéhradecký kraj

Pardubický kraj

Kraj Vysočina

Jihomoravský kraj

Olomoucký kraj

Moravskoslezský kraj

Zlínský kraj

ZEMĚ

DISPOZICE

CENA A PLOCHA

Cena od
Cena do
Plocha od
Plocha do
Zobrazit nabídky
7 fotografií

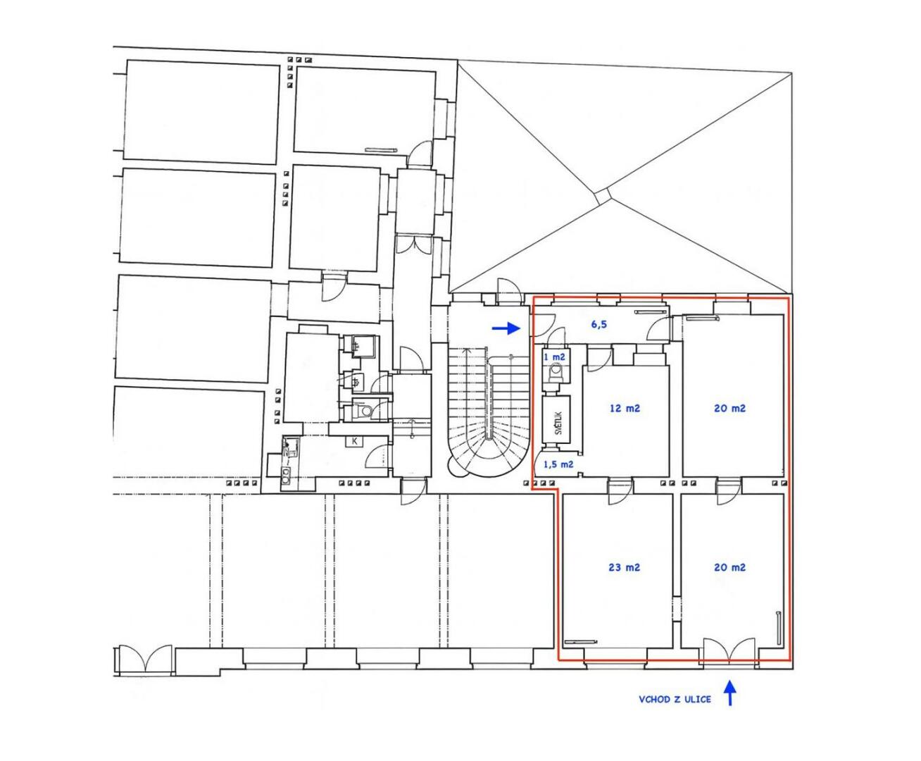
Pronájem komerčního objektu Obchodní prostory, 84 m²

Dukelských hrdinů 694/39, Holešovice, Praha
54 600 Kč (za měsíc)
plus náklady na energie služby (elektřina, voda, vytápění, údržba), kauce 1 měsíční nájem, provize RK

84 m² v srdci Holešovic – prostor, který si můžete přizpůsobit podle sebe.

Na adrese Dukelských hrdinů 39, nedaleko Strossmayerova náměstí, nabízíme k pronájmu nebytový prostor s výlohou a vstupem přímo z ulice. Čtyři místnosti, vlastní sociální zázemí a celková výměra 84 m² dávají možnost nového prostorového uspořádání vašemu záměru – ať už plánujete kancelář, showroom, studio, salon, ordinaci nebo menší gastro provoz. Místnosti mají výšku stropu 3,5 m. Výhodou jsou také nízké provozní náklady díky vlastní plynové kotelně umístěné v suterénu domu. Navíc je možné si k tomuto prostoru pronajmout dalších 73 m² v suterénu domu – ideální jako sklad, zázemí nebo technické prostory.

Kompletní rekonstrukce tohoto prostoru začne v lednu 2026 s jedinečnou příležitostí ovlivnit její podobu podle vlastních potřeb. A lokalita? Tramvaj staví před domem, metro je 5 minut chůze, centrum v podstatě za rohem.

K nastěhování po rekonstrukci, předpokládaný termín dokončení je duben 2026.
Velice rádi Vám zprostředkujeme prohlídku. Pro komunikaci uvádějte evidenční číslo zakázky N115412.

Typ zakázky:
Pronájem
Typ nemovitosti:
Komerční
Užitná plocha:
84 m²
Plocha pozemku:
1 m²
Stav objektu:
Velmi dobrý
Energ. nár. budovy:
G - Mimořádně nehospodárná
ID zakázky:
N115412
Pro pohyb mapy použijte dva prsty.