1641 nemovitostí v ČESKÉ REPUBLICE
145 nemovitostí v ZAHRANIČÍ

Hlavní město Praha

Středočeský kraj

Jihočeský kraj

Plzeňský kraj

Karlovarský kraj

Ústecký kraj

Liberecký kraj

Královéhradecký kraj

Pardubický kraj

Kraj Vysočina

Jihomoravský kraj

Olomoucký kraj

Moravskoslezský kraj

Zlínský kraj

ZEMĚ

DISPOZICE

CENA A PLOCHA

Cena od
Cena do
Plocha od
Plocha do
Zobrazit nabídky
17 fotografií

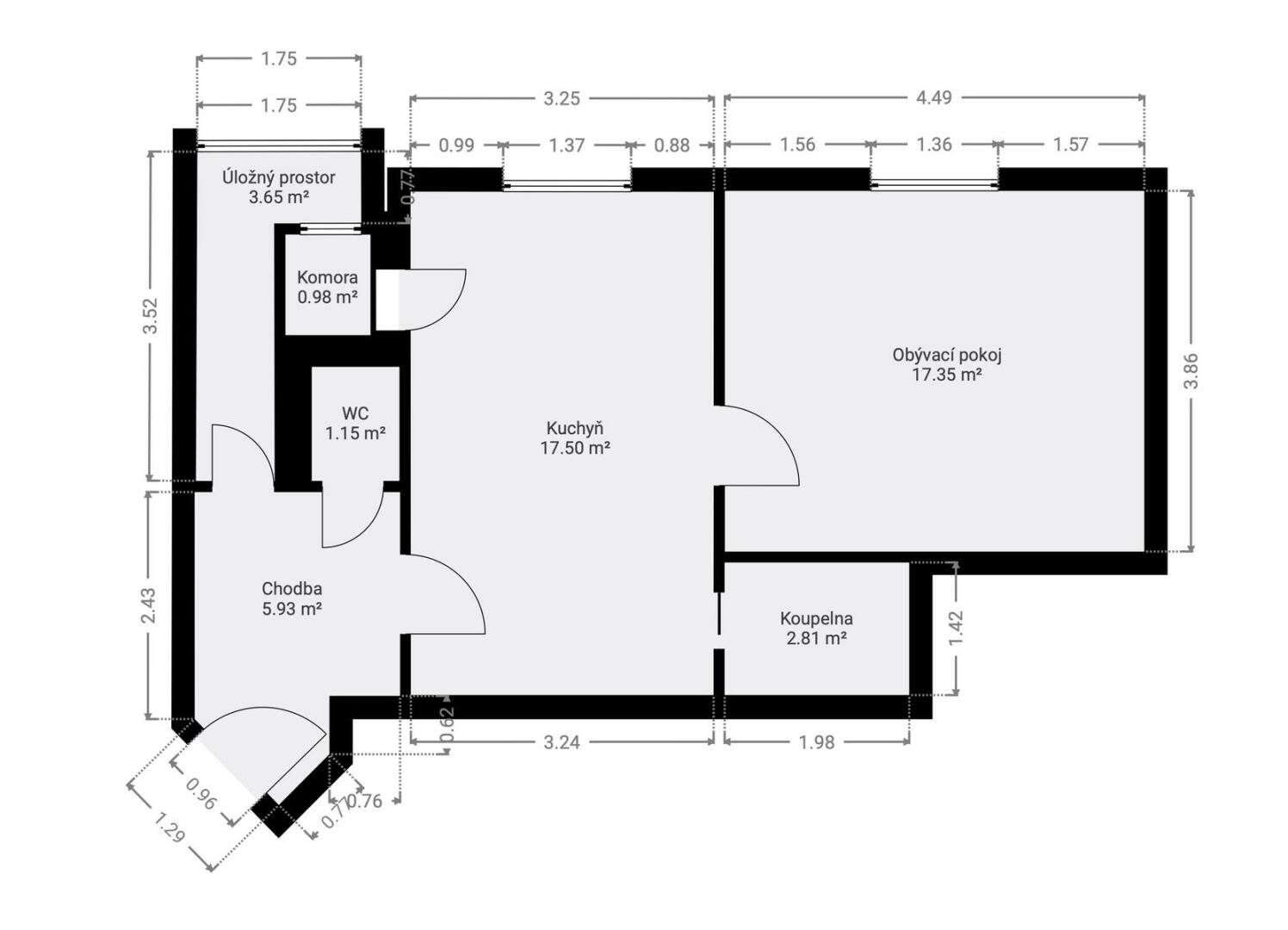
Pronájem bytu 2+kk, 51 m²

Na Jezerce 741/19, Nusle, Praha
19 500 Kč (za měsíc)
+ zúčtovatelná záloha na poplatky vč. energií 5000,-Kč

Pěkný byt o dispozici 2+kk/L o obytné ploše 49 m², v strategické ulici Na jezerce, jenž propojuje Nusle a Pankrác.

Byt se nachází v druhém patře cihlového domu z cca 40 let minulého století, vzdáleného cca 1 min chůze od busu linky 188 a 3 min chůze od zastávky tramvaje 3,4,5, 11,14,17,18, 21,24 popřípadě cca 10 minut chůze k metru C Pankrác a k OC Arkády Pankrác.

Dispozice dle prezentace (lodžie pojmenovaná v dispozici úložný prostor). Orientace bytu na východ s výhledem na protější park Jezerka.

Byt prošel rekonstrukcí do současné podoby v roce 2025. Kuchyňská linka se spotřebiči (varná deska, odsavač par). Po dohodě možnost lednice, pračky a myčky. Stropy cca 3,2 m, úložných prostor. Koupelna je vybavena sprchovým koutem, umývadlem a přípravou pro pračku.

Vytápění zajištují lokální plynové waw. Ohřev vody zajišťuje bojler. V domě vysokorychlostní internet.

Byt je nezařízený vyjma dle fotografií a možností zhora uvedeného.

K bytu náleží sklepní kóje v suterenu domu.

K nastěhování od 16.12. 2025. Preferujeme dlouhodobý pronájem 1 rok s možností prodloužení. Nájem + zúčtovatelné zálohy.

V případě zájmu o prohlídku prosím zašlete na tel. 777 113 173 SMS info o sobě jako např. počet osob, od kdy nájem, na jak dlouho, kuřák či nekuřák, děti, zvířata a případné speciální požadavky či podmínky a já se Vám poté ihned ozvu. Prohlídka možná 16.12 od 13.00 -18.00 a 17.12. 9.00 -14.00. Pro komunikaci uvádějte evidenční číslo zakázky N115363.

Typ zakázky:
Pronájem
Dispozice bytu:
2+kk
Stav objektu:
Velmi dobrý
Užitná plocha:
51 m²
Umístění v objektu:
3. podlaží
Druh objektu:
Cihlová
Vlastnictví:
Osobní
Sklep:
2 m²
Energ. nár. budovy:
G - Mimořádně nehospodárná
ID zakázky:
N115363
Pro pohyb mapy použijte dva prsty.