1626 nemovitostí v ČESKÉ REPUBLICE
143 nemovitostí v ZAHRANIČÍ

Hlavní město Praha

Středočeský kraj

Jihočeský kraj

Plzeňský kraj

Karlovarský kraj

Ústecký kraj

Liberecký kraj

Královéhradecký kraj

Pardubický kraj

Kraj Vysočina

Jihomoravský kraj

Olomoucký kraj

Moravskoslezský kraj

Zlínský kraj

ZEMĚ

DISPOZICE

CENA A PLOCHA

Cena od
Cena do
Plocha od
Plocha do
Zobrazit nabídky
24 fotografií

Prodej rodinného domu, 139 m²

Želeč, Želeč
8 849 000 Kč (za nemovitost)
Cena je včetně provize RK.

Prodej řadového domu, Želeč u Tábora.
V malebné a dynamicky se rozvíjející obci Želeč, vzdálené pouhých 12 km od Tábora, Vám nabízíme moderní projekt šesti nízkoenergetických řadových rodinných domů.
Projekt úspěšně postupuje – první řadový dům je již dokončený a má svého prvního majitele, další dům je právě ve výstavbě.
Domy vynikají jednoduchou architekturou, svěžím designem a především vysokou praktičností. Každý z nich nabízí dvě nadzemní podlaží, balkon, terasu, vlastní zahradu, garáž i garážové stání.
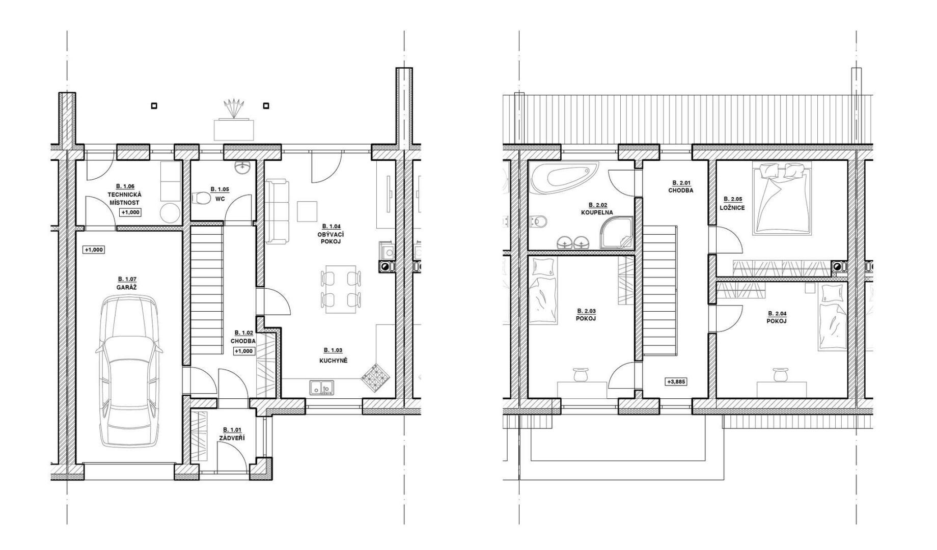
Rodinný řadový dům B o celkové ploše místností cca 138,58m2 a zastavěné ploše cca 97,6m2. Celková plocha zahrady cca 2177,4 m2.
Součástí prodeje je také kuchyňská linka v hodnotě 100.000 Kč (bez spotřebičů).
Dispozice domu: 1. NP: Vstupní zádveří navazuje na chodbu se schodištěm, ze které se vstupuje do velkého obývacího pokoje s kuchyňským koutem. Z obytného prostoru je přímý vstup na zastřešenou terasu a zahradu. Z chodby je přístupná garáž, sociální zařízení a také technická místnost s dalším vstupem na terasu.
2. NP: Najdete zde tři prostorné ložnice a velkou koupelnu s WC, vanou, sprchou a dvojitým umyvadlem. Z chodby i jedné ložnice je vstup na venkovní balkon s výhledem do klidné části obce.
Technologie a vybavení
• napojení na elektřinu 230/400 V, veřejný vodovod a kanalizaci
• tepelné čerpadlo vzduch–voda + teplovodní podlahové vytápění
• fotovoltaická elektrárna cca 2,7 kWp (6×450 Wp)
• akumulační nádrž TUV + topná voda cca 400 l
• příprava pro WallBox pro elektromobil
• možnost instalace krbu/krbových kamen
• kvalitativní standard + možnost klientských změn
• kuchyňská linka v ceně – 100.000 Kč bez spotřebičů
Obec Želeč je vyhledávanou lokalitou pro rodiny i aktivní životní styl. Nabízí kompletní občanskou vybavenost – školu, školku, obchod, poštu, lékaře, restaurace, vinárnu, muzeum, knihovnu i sportovní areál.
Okolí je ideální pro turistiku, cykloturistiku, houbaření i další volnočasové aktivity.
PENB: B – velmi úsporná
Nenechte si ujít možnost bydlet v moderním, úsporném a nadčasovém domě v jedné z nejžádanějších obcí v okolí Tábora.
Kontaktujte nás ještě dnes – rádi Vám zajistíme financování za nejvýhodnějších podmínek. Pro komunikaci uvádějte evidenční číslo zakázky N115118.

Typ zakázky:
Prodej
Stav objektu:
Ve výstavbě
Užitná plocha:
139 m²
Plocha pozemku:
315 m²
Typ nemovitosti:
Rodinný
Poloha domu:
Řadový
Typ domu:
Patrový
Terasa:
ANO
Garáž:
ANO
Parkovací místo:
ANO
Energ. nár. budovy:
B - Velmi úsporná
ID zakázky:
N115118
Pro pohyb mapy použijte dva prsty.
HYPOTEČNÍ KALKULAČKA
Hodnota nemovitosti
8 849 000 Kč
Výše úvěru
Vlastní zdroje
Doba splácení
let
Tato nemovitost již od měsíčně s roční úrokovou sazbou od 4,39 %.
Zjistit více informací
PODOBNÉ NEMOVITOSTI