1558 nemovitostí v ČESKÉ REPUBLICE
151 nemovitostí v ZAHRANIČÍ

Hlavní město Praha

Středočeský kraj

Jihočeský kraj

Plzeňský kraj

Karlovarský kraj

Ústecký kraj

Liberecký kraj

Královéhradecký kraj

Pardubický kraj

Kraj Vysočina

Jihomoravský kraj

Olomoucký kraj

Moravskoslezský kraj

Zlínský kraj

ZEMĚ

DISPOZICE

CENA A PLOCHA

Cena od
Cena do
Plocha od
Plocha do
Zobrazit nabídky
23 fotografií

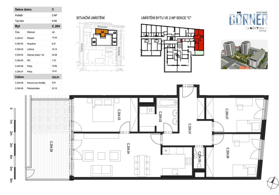
Prodej bytu 4+kk, 103 m²

Nemocniční 3020/6, Jižní Předměstí, Plzeň
9 980 000 Kč (za nemovitost)
+ parkovací stání - každé 450.000,-

Hledáte skutečně výjimečné bydlení v Plzni?

Nabízíme vám byt, který se v nabídce neobjevuje často a splní i ty nejnáročnější představy - moderní 4+kk o ploše 103 m² s terasou 23 m², sklepem a možností parkování 2 aut v podzemních garážích. Byt se nachází v novostavbě z roku 2020, v uzavřeném rezidenčním areálu na čip, který nabízí maximální klid, bezpečí i soukromí.

Dispozice bytu je promyšlená a velmi praktická (detailně ji můžete vidět na přiloženém půdorysu):

- vstupní předsíň s velkou vestavěnou skříní
- prostorný obývací pokoj s jídelnou a kuchyní
- ložnice se vstupem na terasu
- dva samostatné pokoje (dětský pokoj a pracovna)
- moderní koupelna a samostatné WC.
- hlavním lákadlem je terasa orientovaná do zeleného vnitrobloku, přístupná z obývacího pokoje i ložnice - ideální místo pro relaxaci či posezení s rodinou nebo přáteli.

Lokalita Chodského náměstí patří mezi nejvyhledávanější v Plzni. Nabízí kombinaci prestižní adresy, kompletní občanské vybavenosti a skvělé dostupnosti centra, přičemž díky uzavřenému areálu budete mít dostatek klidu a soukromí. Tento byt je ideální pro rodiny, které chtějí prostorné bydlení v srdci města, bez nutnosti dojíždění nebo starostí se zahradou.

Zavolejte mi a domluvme si prohlídku, rád vám tento jedinečný byt osobně ukážu. Pro komunikaci uvádějte evidenční číslo zakázky N115078.

Typ zakázky:
Prodej
Dispozice bytu:
4+kk
Stav objektu:
Novostavba
Užitná plocha:
103 m²
Umístění v objektu:
2. podlaží
Druh objektu:
Skeletová
Vlastnictví:
Osobní
Sklep:
3 m²
Garáž:
2
Parkovací místo:
ANO
Terasa:
23 m²
Energ. nár. budovy:
B - Velmi úsporná
ID zakázky:
N115078
Pro pohyb mapy použijte dva prsty.
HYPOTEČNÍ KALKULAČKA
Hodnota nemovitosti
9 980 000 Kč
Výše úvěru
Vlastní zdroje
Doba splácení
let
Tato nemovitost již od měsíčně s roční úrokovou sazbou od 4,39 %.
Zjistit více informací
PODOBNÉ NEMOVITOSTI