1634 nemovitostí v ČESKÉ REPUBLICE
144 nemovitostí v ZAHRANIČÍ

Hlavní město Praha

Středočeský kraj

Jihočeský kraj

Plzeňský kraj

Karlovarský kraj

Ústecký kraj

Liberecký kraj

Královéhradecký kraj

Pardubický kraj

Kraj Vysočina

Jihomoravský kraj

Olomoucký kraj

Moravskoslezský kraj

Zlínský kraj

ZEMĚ

DISPOZICE

CENA A PLOCHA

Cena od
Cena do
Plocha od
Plocha do
Zobrazit nabídky

Prodej domu Vícegenerační dům, 158 m²

Čechova 169, Kadaň
8 911 400 Kč (za nemovitost)

Máme pro vás jedinečnou příležitost pořídit si nemovitost přímo v srdci města Kadaně. Jen pár kroků od hlavního náměstí a oblíbeného nábřeží pod Kadaňským hradem stojí dům, který spojuje komfortní bydlení, fungující podnikání i atraktivní investiční potenciál pod jednou střechou.

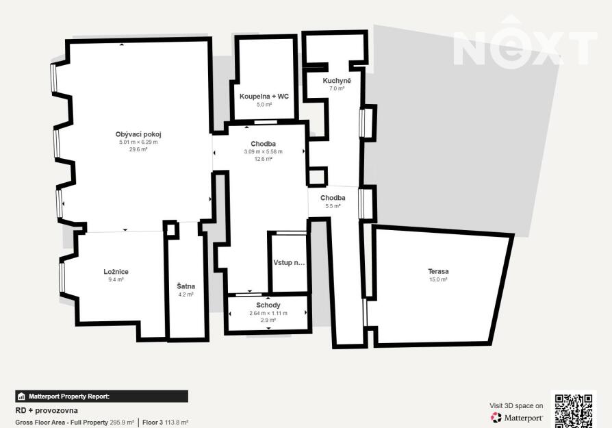
Dům má dvě podlaží a je rozdělen na komerční část v přízemí a bytovou jednotku v patře. Díky tomu nabízí okamžité využití bez nutnosti větších zásahů — ideální pro ty, kdo chtějí začít podnikat hned, nebo hledají bezpečnou investici s jistým výnosem.

V přízemí je útulná vinárna s venkovním posezením o rozloze 144,2 m2
V přízemí najdete plně funkční komerční prostor, kde nyní působí stylová vinárna s příjemnou atmosférou. Prostor je rozdělen chodbou na bar a samostatnou místnost pro hosty, samozřejmostí je sociální zázemí pro dámy i pány — vše v provozuschopném stavu.

Z chodby se dostanete na dvůr, kde oceníte venkovní posezení s grilem, ideální pro sezónní akce či rozšíření provozu. Navíc jsou zde dvě samostatné kanceláře, které lze využít jako zázemí, sklady, nebo pronajmout jako samostatné prostory o rozloze 11 m2

A tím to nekončí — ze dvora vede vstup do prostorného sklepa. Tento sklep je upraven pro společenské akce, degustace, menší oslavy nebo soukromé setkání. Díky samostatnému přístupu zde klienti mají dostatek soukromí i pohodlí o rozloze 37,9 m2


V horním podlaží se nachází samostatná bytová jednotka o dispozici 2+1 s terasou a výhledem do dvora o celkové rozloze 114 m2
Dispozice zahrnuje:
- prostornou chodbu se vstupem na půdu
- větší obývací pokoj s přilehlou ložnicí
- slunnou kuchyň s přímým vstupem na terasu orientovanou do dvora
- koupelnu s toaletou

Byt je ideální pro vlastní bydlení — klidné, slunné a přitom jen pár kroků od centra. Stejně dobře však poslouží jako nájemní jednotka, která může přinášet stabilní výnos.

Technické údaje a další informace
- vytápění a ohřev vody zajišťuje plynový kotel
- výborná poloha v centru města — vše doslova u dveří
- možnost okamžitého využití komerčních prostor
- samostatný vstup do sklepa ze zahrady

dům vhodný pro podnikání, investici i kombinované bydlení

Chcete vidět víc?
Rád vám tuto výjimečnou nemovitost osobně představím.
Probereme možnosti využití, výnosy i potenciál celého objektu.
Stačí se ozvat — domluvíme si termín prohlídky. Pro komunikaci uvádějte evidenční číslo zakázky N115072.

Typ zakázky:
Prodej
Stav objektu:
Velmi dobrý
Užitná plocha:
158 m²
Plocha pozemku:
162 m²
Plocha zahrady:
55 m²
Typ nemovitosti:
Vícegenerační dům
Poloha domu:
Řadový
Typ domu:
Patrový
Sklep:
18 m²
Terasa:
ANO
Energ. nár. budovy:
D - Méně úsporná
ID zakázky:
N115072
Pro pohyb mapy použijte dva prsty.
HYPOTEČNÍ KALKULAČKA
Hodnota nemovitosti
8 911 400 Kč
Výše úvěru
Vlastní zdroje
Doba splácení
let
Tato nemovitost již od měsíčně s roční úrokovou sazbou od 4,39 %.
Zjistit více informací
PODOBNÉ NEMOVITOSTI