1662 nemovitostí v ČESKÉ REPUBLICE
141 nemovitostí v ZAHRANIČÍ

Hlavní město Praha

Středočeský kraj

Jihočeský kraj

Plzeňský kraj

Karlovarský kraj

Ústecký kraj

Liberecký kraj

Královéhradecký kraj

Pardubický kraj

Kraj Vysočina

Jihomoravský kraj

Olomoucký kraj

Moravskoslezský kraj

Zlínský kraj

ZEMĚ

DISPOZICE

CENA A PLOCHA

Cena od
Cena do
Plocha od
Plocha do
Zobrazit nabídky
8 fotografií

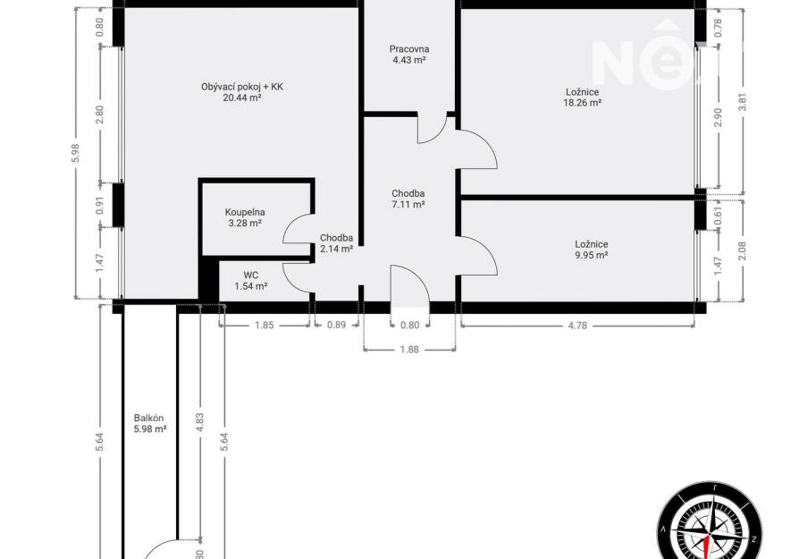
Prodej bytu 3+1, 85 m²

Stavařov 96, Polabiny, Pardubice
Cena na vyžádání

Zde v lokalitě Polabiny, v ulici Stavařov, během 14 dnů zahájíme prodej pěkného bytu 3+1 s pracovnou (aktuálně využívané jako další ložnice), umístěného ve zvýšeném přízemí, suplujícím takřka první patro, zatepleného panelového domu.

Byt po částečné rekonstrukci (majoritní část elektřiny v mědi, zděné jádro apod.)

Dispozice dle fotoprezentace. Podlahová plocha bytu 67 m2, lodžie 6 m2.

K bytu dále náleží vlastní velmi prostorná 14 m2 sklepní místnost dostupná z ulice.

Dům se nachází prakticky vedle univerzitního kampusu, dispozice vhodná pro bydlení rodiny či např. ke spolunájmu studentů. De facto 2 min chůze do zeleně podél Labe, nabízející cyklostezku, hřiště či trasy pro procházku. Na dohled a cca 2 min jízdy je benzinová pumpa, supermarket. Okolo 15 min chůze základní škola a školka, 20 min chůze vlakové nádraží Pardubice.

Zdarma Vám zajistíme nejlevnější hypoteční úvěr na trhu prostřednictvím spolupracujícího špičkového finančního poradce.

Doporučuji si již nyní zajistit prohlídku. Pro komunikaci uvádějte evidenční číslo zakázky N115017.

Typ zakázky:
Prodej
Dispozice bytu:
3+1
Stav objektu:
Dobrý
Užitná plocha:
85 m²
Umístění v objektu:
1. podlaží
Druh objektu:
Panelová
Vlastnictví:
Osobní
Sklep:
14 m²
Lodžie:
6 m²
Energ. nár. budovy:
D - Méně úsporná
ID zakázky:
N115017
Pro pohyb mapy použijte dva prsty.
PODOBNÉ NEMOVITOSTI