1677 nemovitostí v ČESKÉ REPUBLICE
140 nemovitostí v ZAHRANIČÍ

Hlavní město Praha

Středočeský kraj

Jihočeský kraj

Plzeňský kraj

Karlovarský kraj

Ústecký kraj

Liberecký kraj

Královéhradecký kraj

Pardubický kraj

Kraj Vysočina

Jihomoravský kraj

Olomoucký kraj

Moravskoslezský kraj

Zlínský kraj

ZEMĚ

DISPOZICE

CENA A PLOCHA

Cena od
Cena do
Plocha od
Plocha do
Zobrazit nabídky
23 fotografií

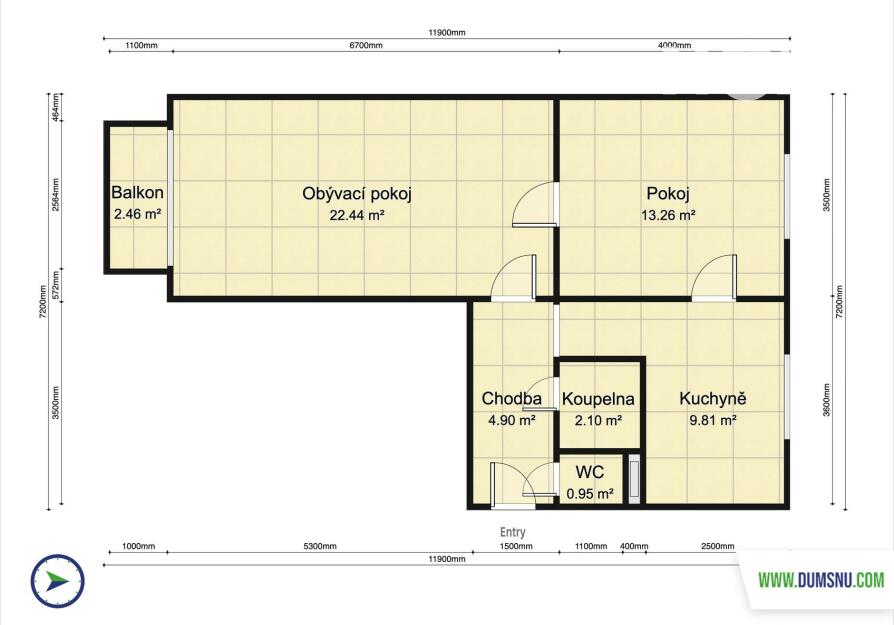
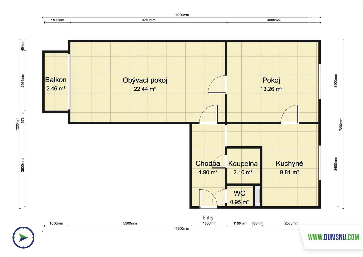
Prodej bytu 2+1, 55 m²

Revoluční 1681/16, Šumperk
3 190 000 Kč (za nemovitost)

Cihlový byt s výbornou polohou a jistým investičním potenciálem? Tato 2+1 spojuje klidné bydlení s blízkostí centra města.

Byt s celkovou výměrou 55 m² se nachází ve 4. nadzemním podlaží udržovaného cihlového domu bez výtahu. Prošel rekonstrukcí a je připraven k okamžitému užívání nebo k pronájmu. Z vstupní chodby se dostanete do kuchyně, koupelny a samostatného WC, dále do obývacího pokoje s balkonem. Další pokoj je průchozí z obývacího pokoje i kuchyně.

K bytu náleží také sklepní kóje.

Vytápění i ohřev vody jsou řešeny centrálně z teplárny, což zaručuje pohodlný a úsporný provoz.

Lokalita je skvělá - v docházkové vzdálenosti najdete obchody, služby i centrum města. Parkování je možné přímo před domem.

Díky své poloze, dispozici a nízkým provozním nákladům je byt ideální jak pro vlastní bydlení, tak jako zajímavá investiční příležitost.

Neváhejte a domluvte si prohlídku – ráda Vám byt osobně představím! V rámci našeho realitního a finančního servisu Vám rádi pomůžeme i s nejvýhodnějším financováním nákupu. Pro komunikaci uvádějte evidenční číslo zakázky N114822.

Typ zakázky:
Prodej
Dispozice bytu:
2+1
Stav objektu:
Dobrý
Užitná plocha:
55 m²
Umístění v objektu:
4. podlaží
Druh objektu:
Cihlová
Vlastnictví:
Osobní
Balkón:
ANO
Sklep:
ANO
Energ. nár. budovy:
D - Méně úsporná
ID zakázky:
N114822
Pro pohyb mapy použijte dva prsty.
HYPOTEČNÍ KALKULAČKA
Hodnota nemovitosti
3 190 000 Kč
Výše úvěru
Vlastní zdroje
Doba splácení
let
Tato nemovitost již od měsíčně s roční úrokovou sazbou od 4,39 %.
Zjistit více informací
PODOBNÉ NEMOVITOSTI