1668 nemovitostí v ČESKÉ REPUBLICE
141 nemovitostí v ZAHRANIČÍ

Hlavní město Praha

Středočeský kraj

Jihočeský kraj

Plzeňský kraj

Karlovarský kraj

Ústecký kraj

Liberecký kraj

Královéhradecký kraj

Pardubický kraj

Kraj Vysočina

Jihomoravský kraj

Olomoucký kraj

Moravskoslezský kraj

Zlínský kraj

ZEMĚ

DISPOZICE

CENA A PLOCHA

Cena od
Cena do
Plocha od
Plocha do
Zobrazit nabídky

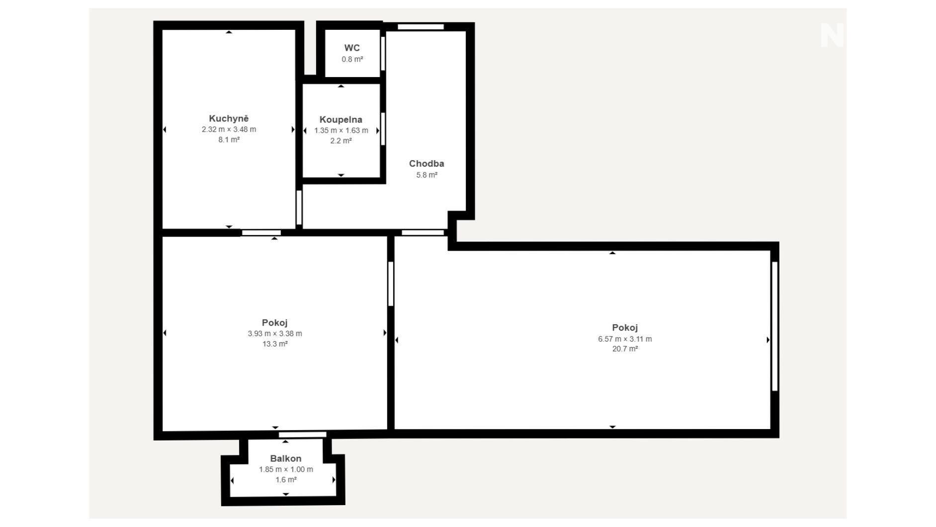
Prodej bytu 2+1, 52 m²

Podkrušnohorská 1663, Horní Litvínov, Litvínov
1 599 000 Kč (za nemovitost)

Hledáte klidné bydlení s možností přizpůsobit si vše podle vlastních představ? Nabízíme k prodeji bytovou jednotku o dispozici 2+1 a výměře 52 m², umístěnou v 1. nadzemním podlaží (bez výtahu) na adrese PKH 1663 v Litvínově. Byt je v původním stavu a je ideální pro kompletní rekonstrukci podle vašich přání. Součástí je balkon s výhledem do okolí a praktická sklepní kóje, kde pohodlně uložíte vše, co potřebujete.

• V blízkosti najdete obchody se smíšeným zbožím, supermarkety i menší specializované prodejny.
• V docházkové vzdálenosti jsou mateřské, základní, střední školy a sportovní škola.
• Snadná dostupnost lékařské péče (ordinace, lékárna) i pošty.
• Výborné spojení veřejnou dopravou: zastávka MHD i vlaku jsou nedaleko.
• Pohodlné napojení na hlavní silniční tahy pro rychlé cestování mimo město.

• Pro milovníky sportu je v okolí několik sportovních areálů (například tenisové kurty, fotbalové hřiště) a známý stadion Hlinky.
• V blízkosti se nachází také cyklostezky a turistické trasy vedoucí do krásných míst Krušných hor.
• Pár minut chůze od bytu se nacházejí parky a dětská hřiště vhodná pro rodiny s dětmi.
• Ve městě najdete také kulturní zařízení (kino, divadlo), knihovnu a různá komunitní centra.

Díky svému umístění v žádané lokalitě je tato nemovitost skvělou investiční příležitostí i příjemným místem k bydlení pro každého, kdo touží po bezpečné a přátelské čtvrti.

Máte-li zájem o prohlídku nebo další informace, neváhejte nás kontaktovat. Těšíme se na setkání! Pro komunikaci uvádějte evidenční číslo zakázky N114712.

Typ zakázky:
Prodej
Dispozice bytu:
2+1
Stav objektu:
Před rekonstrukcí
Užitná plocha:
52 m²
Umístění v objektu:
1. podlaží
Druh objektu:
Cihlová
Vlastnictví:
Osobní
Balkón:
2 m²
Sklep:
2 m²
Energ. nár. budovy:
G - Mimořádně nehospodárná
ID zakázky:
N114712
Pro pohyb mapy použijte dva prsty.
HYPOTEČNÍ KALKULAČKA
Hodnota nemovitosti
1 599 000 Kč
Výše úvěru
Vlastní zdroje
Doba splácení
let
Tato nemovitost již od měsíčně s roční úrokovou sazbou od 4,39 %.
Zjistit více informací
PODOBNÉ NEMOVITOSTI