Nabízíme k prodeji hezký, patrový dům se dvěma jednotkami, každá o dispozici 2+1 a o užitné ploše cca 118 m2, v ulici Budějovická, Horní Jirčany, Praha - západ.
Dům z plných pálených cihel postaven v roce cca 1960, který stojí na vlastním, rovinatém pozemku o výměře cca 335 m2. Na zahradě, kde je dostatek prostoru pro venkovní sezení a záhony je dále postavena dílna/garáž o výměře cca 25 m2.
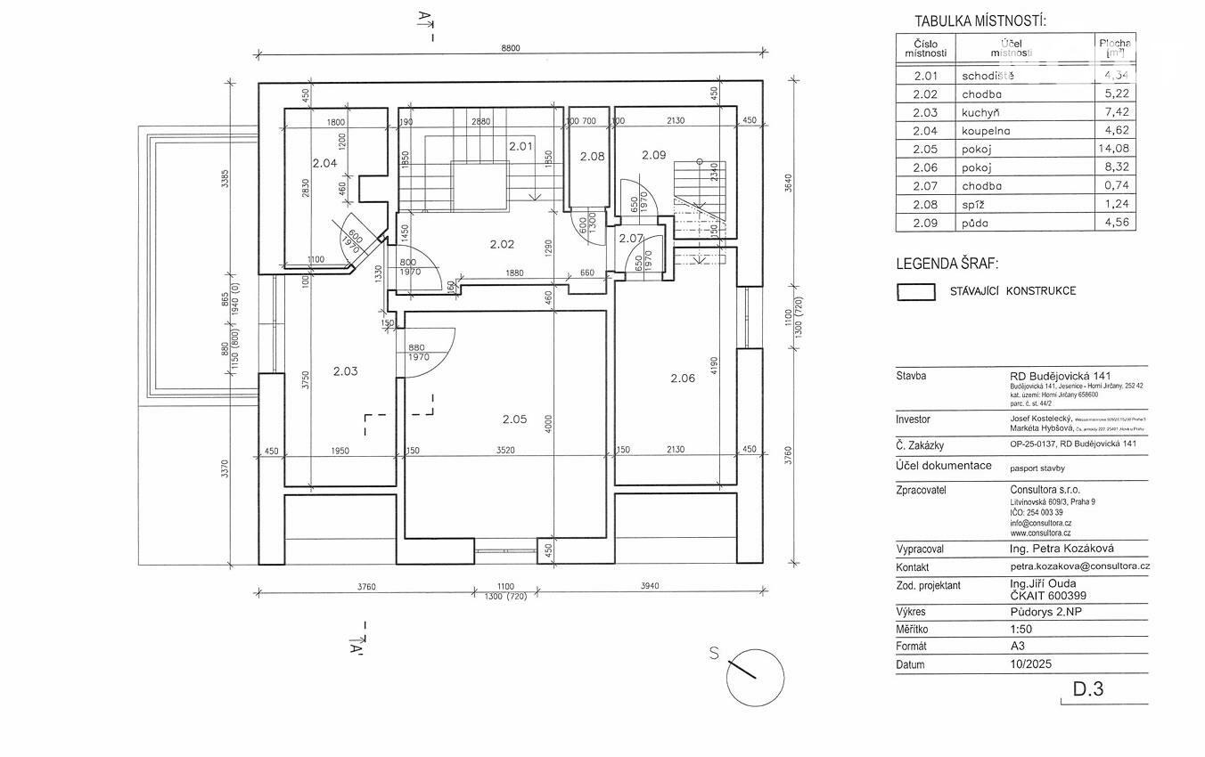
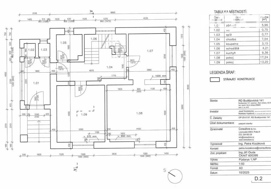
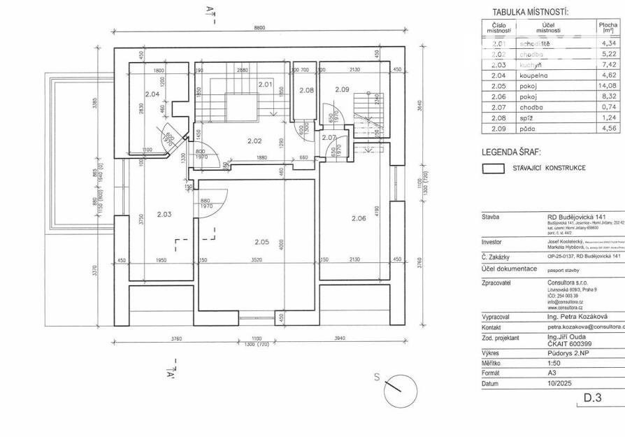
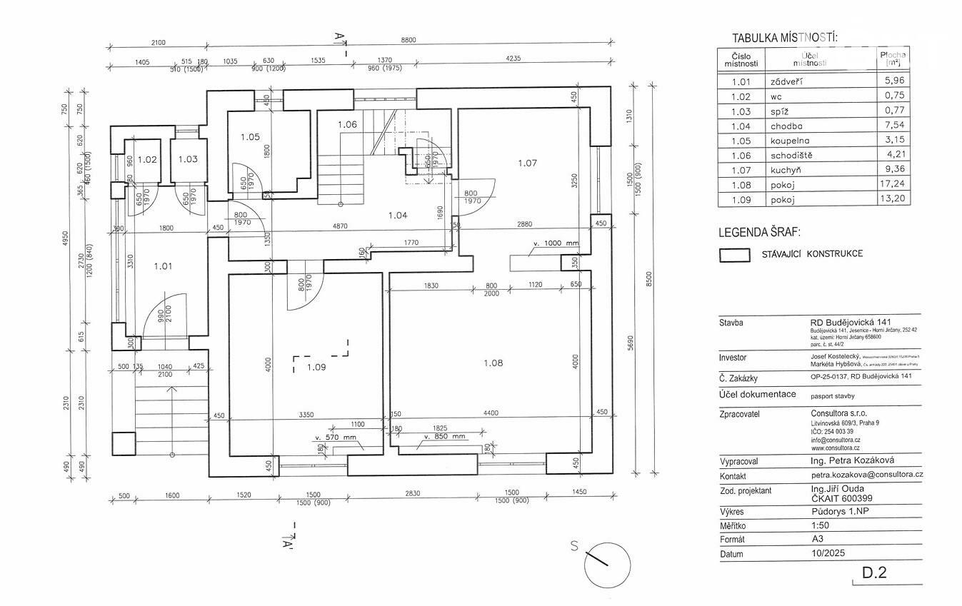
Přízemí domu je dispozičně řešeno jako ložnice, obývací pokoj s kuchyní a jídelnou. Dále koupelna s vanou a samostatnou toaletou. Prostorná chodba a spíž.
První patro je dispozičně řešeno jako ložnice, kuchyně se vstupem na rozestavěnou terasu, menší pracovna se šatnou, spíž a dále koupelna s vanou a toaletou.
Půda je vhodná k vybudování dalšího pokoje, nyní je využívána jako úložný prostor. V suterénu domu sklep o rozloze cca 15 m2, nyní využívaný jako posilovna.
V roce 2009 byla provedena výměna původních oken a vstupních dveří. Původní okna zůstala pouze v 1. NP na toaletě, ve spíži a koupelně, ve zbytku domu plastová okna s dvojskly. V roce 2011 byla provedena výměna střešní krytiny (sedlová střecha). Na půdu byla také vložena minerální vata a umístěna pojistná hydroizolace pro snížení úniku tepla z budovy. 
Vytápění je řešeno teplovodní otopnou soustavnou s otopnými tělesy, která je napojena na plynový kotel. Ohřev TUV je pro bytovou jednotku v 1. NP zajištěn průtokově plynovým kotlem, ve 2. NP je ohřev vody zajištěn elektrickým bojlerem o objemu 97 l, který je umístěn v koupelně.
Dům je napojený na obecní vodovod a obecní kanalizaci. Na pozemku jsou parkovací stání pro dvě vozidla, případně před pozemkem.
V obci obchod, restaurace, fotbalové a dětské hřiště, sportoviště, cyklostezky.
Dobrá dostupnost do centra Prahy, autem 10 minut. Zastávka autobusu 3 minuty pěšky od domu, na metro Kačerov nebo na druhou stranu do Kamenice či Benešova.
Pouze u nás vám zajistíme klasické i moderní financování až na 35 let, bez ohledu na věk a prokazování příjmů, či nutnosti předkládat daňové přiznání (u podnikatelů). Zeptejte se nás a bydlete chytře!
Vřele doporučuji prohlídku. Pro komunikaci uvádějte evidenční číslo zakázky N114700. 
