1659 nemovitostí v ČESKÉ REPUBLICE
141 nemovitostí v ZAHRANIČÍ

Hlavní město Praha

Středočeský kraj

Jihočeský kraj

Plzeňský kraj

Karlovarský kraj

Ústecký kraj

Liberecký kraj

Královéhradecký kraj

Pardubický kraj

Kraj Vysočina

Jihomoravský kraj

Olomoucký kraj

Moravskoslezský kraj

Zlínský kraj

ZEMĚ

DISPOZICE

CENA A PLOCHA

Cena od
Cena do
Plocha od
Plocha do
Zobrazit nabídky
20 fotografií

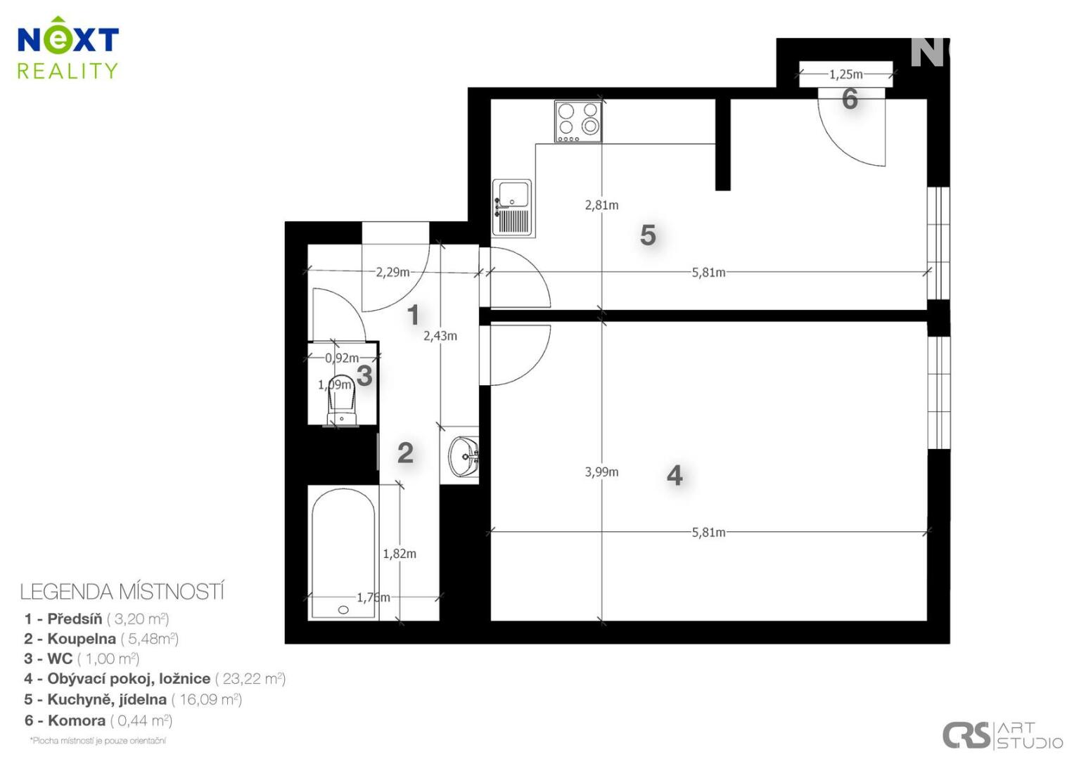
Prodej bytu 2+kk, 52 m²

Na výsledku I 1084/4, Nusle, Praha
6 350 000 Kč (za nemovitost)

Exkluzivně nabízím k prodeji byt o dispozici 2+kk, který se nachází ve třetím nadzemním podlaží bytového domu v pražských Nuslích. Byt je dispozičně řešen vstupní chodbou, ze které se vchází do jednotlivých místností. Okna bytu jsou orientována do klidné části ulice na severovýchodní straně domu. Z předsíně se vstupuje do kuchyně s jídelním koutem, která je vybavena kuchyňskou linkou s kombinovaným sporákem a odsavačem par. Dále se z chodby vchází do prostorného obývacího pokoje, který byl dosud využíván také jako ložnice. V místnosti se nachází vestavěná skříň nabízející velkorysý úložný prostor. Koupelna je vybavena vanou, umyvadlem, naleznete zde i prostor pro pračku a plynovou karmu pro ohřev vody. Ze vstupní chodby je rovněž přístupná samostatná toaleta. Vytápění bytu je zajištěno plynovými vafkami. Byt je vhodný k celkové rekonstrukci s možností úpravy dispozice podle vašich individuálních představ. K bytu náleží sklepní kóje, využívat lze také společné prostory domu a zejména udržovanou okrasnou zahradu se vzrostlou zelení, která nabízí příjemné místo k odpočinku. V okolí domu je kompletní občanská vybavenost – základní i mateřská škola, obchody, restaurace a také obchodní centrum Arkády Pankrác. Stanice metra C – Pankrác je v docházkové vzdálenosti přibližně 10 minut. Lokalita nabízí i široké možnosti volnočasového vyžití. Pokud hledáte pohodlné bydlení nebo zajímavou investiční příležitost, tento byt je ideální volbou. Pro komunikaci uvádějte evidenční číslo zakázky N114549.

Typ zakázky:
Prodej
Dispozice bytu:
2+kk
Stav objektu:
Dobrý
Užitná plocha:
52 m²
Umístění v objektu:
3. podlaží
Druh objektu:
Cihlová
Vlastnictví:
Osobní
Sklep:
3 m²
Energ. nár. budovy:
G - Mimořádně nehospodárná
ID zakázky:
N114549
Pro pohyb mapy použijte dva prsty.
HYPOTEČNÍ KALKULAČKA
Hodnota nemovitosti
6 350 000 Kč
Výše úvěru
Vlastní zdroje
Doba splácení
let
Tato nemovitost již od měsíčně s roční úrokovou sazbou od 4,39 %.
Zjistit více informací
PODOBNÉ NEMOVITOSTI