1648 nemovitostí v ČESKÉ REPUBLICE
116 nemovitostí v ZAHRANIČÍ

Hlavní město Praha

Středočeský kraj

Jihočeský kraj

Plzeňský kraj

Karlovarský kraj

Ústecký kraj

Liberecký kraj

Královéhradecký kraj

Pardubický kraj

Kraj Vysočina

Jihomoravský kraj

Olomoucký kraj

Moravskoslezský kraj

Zlínský kraj

ZEMĚ

DISPOZICE

CENA A PLOCHA

Cena od
Cena do
Plocha od
Plocha do
Zobrazit nabídky
22 fotografií

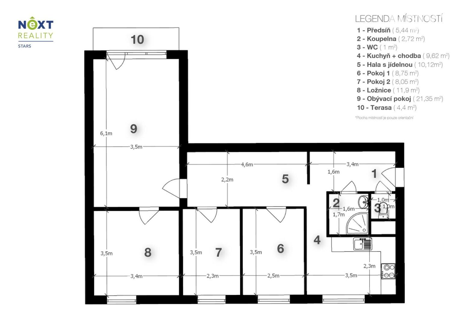
Prodej bytu 4+1, 78 m²

Sofijská 2830/1, Tábor
5 150 000 Kč (za nemovitost)

Představuji vám nabídku bytu o dispozici 4+1 s lodžií, který se nachází v 5. nadzemním podlaží kompletně revitalizovaného bytového domu. V uplynulých letech prošel byt kompletní rekonstrukcí. Dispozičně je řešen vstupní chodbou, kde se nacházejí vestavěné skříně s odkládací stěnou. Z chodby je vstup do haly, která momentálně slouží jako jídelna. Z haly je vstup do severně orientovaných dětských ložnic s výhledem do klidného vnitrobloku a obývacího pokoje, ze kterého je vstup na zasklenou lodžii, orientovanou na jižní stranu domu. Z obývacího pokoje je přístupná rodičovská ložnice. Ze vstupní chodby je přístupná samostatná toaleta, koupelna, která je vybavena sprchovým koutem, umyvadlem, koupelnovým nábytkem a nechybí prostor na pračku a sušičku. Dále kuchyně, která je vybavena kuchyňskou sestavou, kombinovaným sporákem a myčkou. K bytu je k dispozici sklepní kóje a pro uložení vašeho jízdního kola je k dispozici kolárna. Dům se nachází v oblíbené lokalitě sídliště Nad Lužnicí, kde máte kompletní občanskou vybavenost, základní i mateřská škola, řada restaurací, kavárny obchodní centra, supermarkety, venkovní sportoviště, ale hlavně celá řada možností trávení volného času v přírodě. Pro milovníky vodních sportů a rybaření je nedaleko řeka Lužnice. Pro komunikaci uvádějte evidenční číslo zakázky N114523.

Typ zakázky:
Prodej
Dispozice bytu:
4+1
Stav objektu:
Velmi dobrý
Užitná plocha:
78 m²
Umístění v objektu:
5. podlaží
Druh objektu:
Panelová
Vlastnictví:
Osobní
Sklep:
2 m²
Lodžie:
5 m²
Energ. nár. budovy:
C - Úsporná
ID zakázky:
N114523
Pro pohyb mapy použijte dva prsty.
HYPOTEČNÍ KALKULAČKA
Hodnota nemovitosti
5 150 000 Kč
Výše úvěru
Vlastní zdroje
Doba splácení
let
Tato nemovitost již od měsíčně s roční úrokovou sazbou od 4,39 %.
Zjistit více informací
PODOBNÉ NEMOVITOSTI