1661 nemovitostí v ČESKÉ REPUBLICE
135 nemovitostí v ZAHRANIČÍ

Hlavní město Praha

Středočeský kraj

Jihočeský kraj

Plzeňský kraj

Karlovarský kraj

Ústecký kraj

Liberecký kraj

Královéhradecký kraj

Pardubický kraj

Kraj Vysočina

Jihomoravský kraj

Olomoucký kraj

Moravskoslezský kraj

Zlínský kraj

ZEMĚ

DISPOZICE

CENA A PLOCHA

Cena od
Cena do
Plocha od
Plocha do
Zobrazit nabídky
29 fotografií

Prodej bytu 3+1, 72 m²

Na Pohoří 749, Zruč nad Sázavou
4 300 000 Kč (za nemovitost)

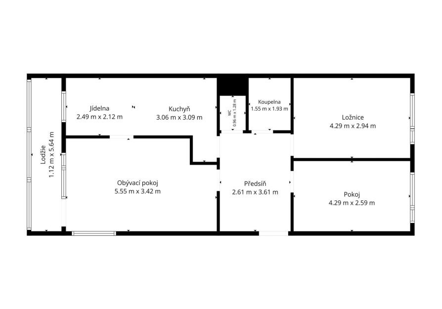
Hledáte rodinné bydlení v klidné části města Zruč? Nabízíme k prodeji skvěle udržovaný byt o dispozici 3+1 a celkové výměře 78,9 m² (z toho 6,7 m² lodžie + 1,5 m sklepní kóje, dřevěná) ul. Na Poříčí, Zruč nad Sázavou.

Bytová jednotka disponuje prostorným obývacím pokojem (18,8 m²), kuchyní s jídelním koutem (12,2 m²), ložnicí (12,8 m²), pokojem (12,2 m²), koupelnou se sprchovým koutem (2,9 m²), samostatnou toaletou (1,1m2), chodbou (10,7 m²) a lodžií (6,7 m²). K bytu náleží sklepní kóje umístěná v suterénu domu.

Vybavení bytu – starší kuchyňská linka, spotřebiče, v ložnici a na chodbě jsou prakticky řešené vestavěné skříně s vnitřním osvětlením. Podlahy jsou koberce v pokojích a na chodbě, v koupelně a WC je dlažba. Na oknech jsou vnitřní žaluzie. Bytové jádro je vyzděné.
Parkovat můžete jednoduše před domem,

Bydlení kousek od pěkného zámeckého parku a zámku Zruč n. S. Ideální místo na procházky. Dále je tu cyklostezka vede i k nedalekému mlýnu, vyhlídka BABKA a v údolí Sázavy jezdí Posázavský Pacifik.

Ve městě je kompletní občanská vybavenost: U domu je základní škola a mateřská školka. Praktický lékař na dosah a krásné a oblíbené dětské hřiště na dosah i s cukrárnou na mlsání pro babičky, mamky a taťky..

V případě zájmu lze nemovitost financovat hypotečním úvěrem přes naše hypoteční centrum. Pouze u nás vám také zajistíme moderní financování až na 35 let, bez ohledu na věk, prokazování příjmů či nutnosti předkládat daňové přiznání (u podnikatelů). Zeptejte se nás a bydlete chytře! Nenechte si ujít tuto jedinečnou příležitost a kontaktujte nás pro další informace a domluvení termínu prohlídky. Ráda vás osobně přesvědčím o výjimečnosti této skvělé nemovitosti. Pro komunikaci uvádějte evidenční číslo zakázky N114214.

Typ zakázky:
Prodej
Dispozice bytu:
3+1
Stav objektu:
Velmi dobrý
Užitná plocha:
72 m²
Umístění v objektu:
1. podlaží
Druh objektu:
Panelová
Vlastnictví:
Osobní
Sklep:
1 m²
Lodžie:
7 m²
Energ. nár. budovy:
G - Mimořádně nehospodárná
ID zakázky:
N114214
Pro pohyb mapy použijte dva prsty.
HYPOTEČNÍ KALKULAČKA
Hodnota nemovitosti
4 300 000 Kč
Výše úvěru
Vlastní zdroje
Doba splácení
let
Tato nemovitost již od měsíčně s roční úrokovou sazbou od 4,39 %.
Zjistit více informací
PODOBNÉ NEMOVITOSTI