1656 nemovitostí v ČESKÉ REPUBLICE
139 nemovitostí v ZAHRANIČÍ

Hlavní město Praha

Středočeský kraj

Jihočeský kraj

Plzeňský kraj

Karlovarský kraj

Ústecký kraj

Liberecký kraj

Královéhradecký kraj

Pardubický kraj

Kraj Vysočina

Jihomoravský kraj

Olomoucký kraj

Moravskoslezský kraj

Zlínský kraj

ZEMĚ

DISPOZICE

CENA A PLOCHA

Cena od
Cena do
Plocha od
Plocha do
Zobrazit nabídky
27 fotografií

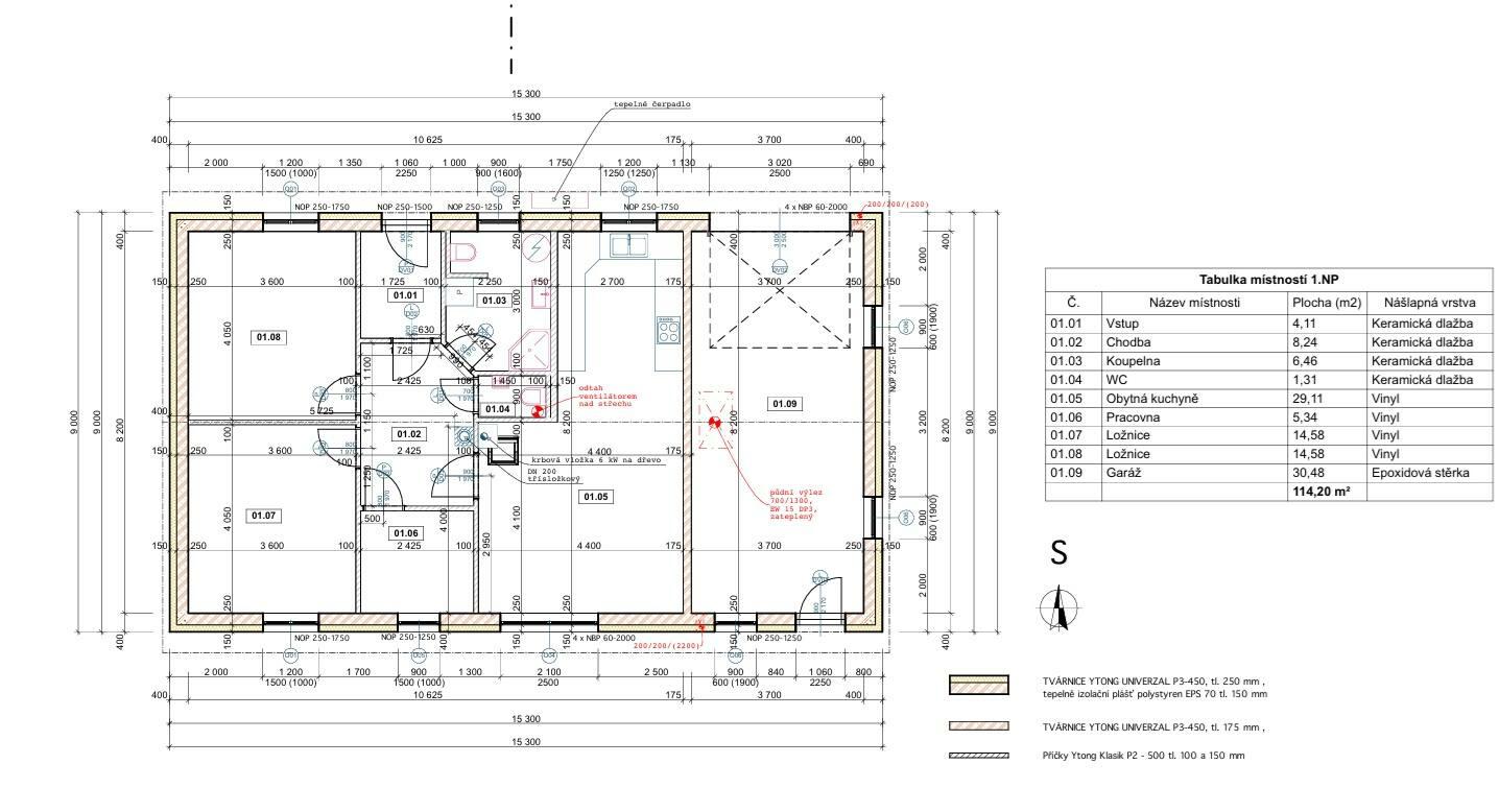
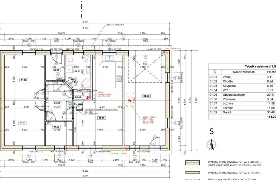
Prodej domu Na klíč, 114 m²

Mělník, Mělník
9 200 000 Kč (za nemovitost)
Cena včetně provize a právního servisu

Exklusivně vám nabízíme prodej nízkoenergetického bezbariérového rodinného domu 3+kk s garáží, dílnou a pracovnou o zastavěné ploše 137m² na rovinatém jižním pozemku o celkové výměře 836 m² v okrajové části města Mělník. Dům je ve stavu hrubé stavby s tím, že rozpočet k dodělání je cca 2,7 - 3 miliony Kč (dle použitých materiálů). Obvodové zdivo je postaveno z izolačních tvárnic YTONG Lambda o síle 45 cm, a dál se již nemusí zateplovat. Okna a dveře jsou plastová ze špičkových německých profilů Gealan s hloubkou rámu 90 mm a jsou zasklena termoizolačními trojskly (0,77 W/K. m²). Okna a dveře jsou z vnější strany provedena v módní antracitové barvě a vhodně tak ladí se střechu z betonových tašek BRAMAC stejné barvy. Dům je napojen na městský vodovod, kanalizaci a elektřinu.
Vytápění je navrženo tepelným čerpadlem do podlahy celého domu vč. garáže. Jižní strana střechy (cca 90m2) je připravena na montáž fotovoltaických panelů a v kombinaci s bateriovým uložištěm tak zajistí energetickou soběstačnost domu. Další možností vytápění je napojení se na teplovod, který vede městským pozemkem před domem. V neposlední řadě je počítáno i s výstavbou komínu a umístění krbových kamen nebo krbu v obývacím pokoji.
Pokud by do budoucna nestačila velikost domu 3+kk, lze přepažením velké garáže a propojením s obytným prostorem získat další pokoj orientovaný na jih do zahrady. Jeho výhodou je pak přímý vstup dveřmi na zahradu.
V půdním prostoru je počítáno s vytvořením pochozí podlahy a úložného prostoru po celé délce domu. Může sloužit k uložení sezonního oblečení, sportovního vybavení apod.
Na pozemku je složena ornice k finalizaci a ozelenění slunné zahrady.
Dům má výhled na jižní straně na centrum Mělníka s dominantní věží kostela. Je postaven v okrajové části města s rychlou dostupností na dálnici D8 a tím i přímým spojením s Prahou, Litoměřicemi, Ústím nad Labem atd. Vlakové nádraží s přímým spojením na Prahu je na dohled od domu v docházkové vzdálenosti cca 1200 m.
Termín dodělání a kolaudace domu je květen 2026. Více informací v RK. Pro komunikaci uvádějte evidenční číslo zakázky N114196.

Typ zakázky:
Prodej
Stav objektu:
Ve výstavbě
Užitná plocha:
114 m²
Plocha pozemku:
836 m²
Typ nemovitosti:
Na klíč
Poloha domu:
Samostatný
Typ domu:
Přízemní
Parkovací místo:
ANO
Energ. nár. budovy:
B - Velmi úsporná
ID zakázky:
N114196
Pro pohyb mapy použijte dva prsty.
HYPOTEČNÍ KALKULAČKA
Hodnota nemovitosti
9 200 000 Kč
Výše úvěru
Vlastní zdroje
Doba splácení
let
Tato nemovitost již od měsíčně s roční úrokovou sazbou od 4,39 %.
Zjistit více informací
PODOBNÉ NEMOVITOSTI