1668 nemovitostí v ČESKÉ REPUBLICE
116 nemovitostí v ZAHRANIČÍ

Hlavní město Praha

Středočeský kraj

Jihočeský kraj

Plzeňský kraj

Karlovarský kraj

Ústecký kraj

Liberecký kraj

Královéhradecký kraj

Pardubický kraj

Kraj Vysočina

Jihomoravský kraj

Olomoucký kraj

Moravskoslezský kraj

Zlínský kraj

ZEMĚ

DISPOZICE

CENA A PLOCHA

Cena od
Cena do
Plocha od
Plocha do
Zobrazit nabídky
17 fotografií

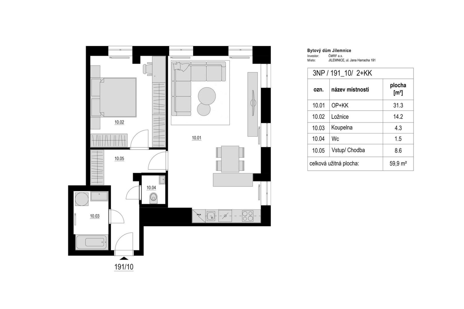
Prodej bytu 2+kk, 64 m²

Jana Harracha 191, Jilemnice
4 785 000 Kč (za nemovitost)

Prodej moderního bytu 2kk, 64 m², s parkovacím stáním v centru Jilemnice – pěší zóna ulice Jana Harracha.
Nabízíme ke koupi byt s dispozicí 2KK/64m², s parkovacím stáním na pěší zóně ulice Jana Harracha v Jilemnici – městě právem označovaném jako „brána do Krkonoš“.
Dispozice bytu č. 191_10 (dle prohlášení vlastníka):
• Vstupní chodba: 8,6 m²
• Obývací pokoj s kuchyňským koutem: 31,3 m²
• Koupelna s vanou vč. wc: 3,4 m²
• Ložnice: 14,2 m²
• Samostatné wc : 1,5 m²
Vysoký standard bydlení Projekt „Bydlení Jilemnice“ kombinuje historický šarm budovy s nejnovějšími moderními prvky a je zde pouze 9 bytových jednotek.
Bytový dům je navržen s důrazem na moderní technologie a úsporný provoz – vytápění a ohřev vody zajišťuje nová centrální plynová kotelna, ve všech místnostech je instalováno komfortní podlahové topení s vinylovou podlahou. Byty jsou vybaveny moderními koupelnami a sanitou značky SIKO. Perfektní místo pro život Jilemnice nabízí kompletní občanskou vybavenost: mateřské a základní školy, renomované sportovní gymnázium, nemocnici, restaurace, obchody i pestré kulturní vyžití – kino, divadlo, společenský dům, festivaly i tradiční jarmarky. Aktivní životní styl po celý rok V okolí najdete nový biatlonový areál Hraběnka, krytý plavecký bazén, atletický i fotbalový stadion a budované přírodní koupaliště (biotop). Krkonošské turistické trasy a oblíbená lyžařská střediska (Benecko, Rokytnice, Horní Mísečky, Špindlerův Mlýn) jsou snadno dostupná autem během 25 minut.
Další výhody:
• K bytu náleží vlastní venkovní parkovací stání s přípravou pro elektro dobíjení.
• Možnost zajištění výhodného financování včetně kompletní administrativní podpory.
• Využijte i možnost družstevního financování bez prokazování příjmů, úvěr na 30 let v jakémkoliv věku. Prohlídky jsou možné po dohodě i o víkendu či svátcích. Neváhejte mě kontaktovat, ráda Vám osobně ukážu poslední 2 volné byty. Pro komunikaci uvádějte evidenční číslo zakázky N113278.

Typ zakázky:
Prodej
Dispozice bytu:
2+kk
Stav objektu:
Velmi dobrý
Užitná plocha:
64 m²
Umístění v objektu:
3. podlaží
Druh objektu:
Cihlová
Vlastnictví:
Osobní
Sklep:
4 m²
Parkovací místo:
ANO
Energ. nár. budovy:
C - Úsporná
ID zakázky:
N113278
Pro pohyb mapy použijte dva prsty.
HYPOTEČNÍ KALKULAČKA
Hodnota nemovitosti
4 785 000 Kč
Výše úvěru
Vlastní zdroje
Doba splácení
let
Tato nemovitost již od měsíčně s roční úrokovou sazbou od 4,39 %.
Zjistit více informací
PODOBNÉ NEMOVITOSTI