1626 nemovitostí v ČESKÉ REPUBLICE
143 nemovitostí v ZAHRANIČÍ

Hlavní město Praha

Středočeský kraj

Jihočeský kraj

Plzeňský kraj

Karlovarský kraj

Ústecký kraj

Liberecký kraj

Královéhradecký kraj

Pardubický kraj

Kraj Vysočina

Jihomoravský kraj

Olomoucký kraj

Moravskoslezský kraj

Zlínský kraj

ZEMĚ

DISPOZICE

CENA A PLOCHA

Cena od
Cena do
Plocha od
Plocha do
Zobrazit nabídky
10 fotografií

Pronájem komerčního objektu Kanceláře, 123 m²

Masarykova 69, Hluboká nad Vltavou
22 000 Kč (za měsíc)

Exkluzivně vám nabízíme pronájem nebytového prostoru v centru města Hluboká nad Vltavou v citlivě zrekonstruované budově bývalé restaurace a ubytovacího zařízení Bakalář.
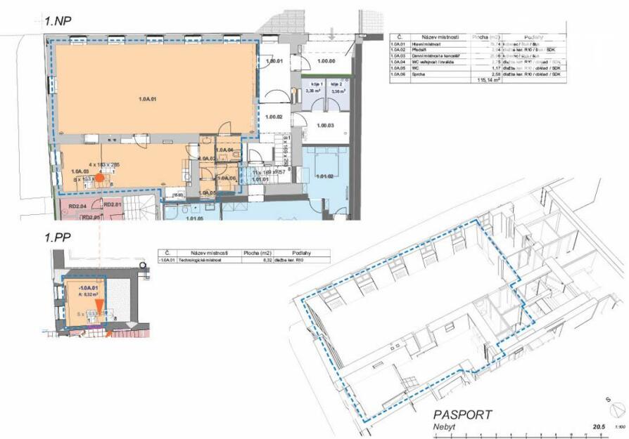
Vchod do nebytového prostoru je situován z ulice Masarykova. Užitná plocha činí 123,46 m2. Dle projektové dokumentace bude mít prostor následující podobu: 1.NP - předsíň (2,94 m2), hlavní místnost (79,74 m2), 2x WC (2,75 m2 a 1,17 m2), sprcha (2,58 m2), denní místnost a kancelář (25,96 m2). 1.PP - technologická místnost (8,32 m2). Vytápění a ohřev vody je zajištěn tepelným čerpadlem (vzduch, voda). Vstup do budovy bude bezbariérový.
Aktuálně na nemovitosti probíhají stavební práce. K nastěhování bude prostor připraven ke 30.1.2026.
Měsíční náklady spojené s užíváním prostoru činí: 22.000,- Kč nájem + energie dle potřeb nájemce, přičemž náklady na elektřinu budou sníženy díky vlastní fotovoltaické elektrárně. Internet bude přepsán na nového nájemce. Provize RK činí jeden měsíční nájem vč. DPH, vratná kauce je pronajímatelem stanovena na 22.000,- Kč. Zároveň zde nabízíme možnost pronájmu parkovacího stání / garáže. Více informací poskytne RK.
Prostor je díky své dispozici vhodný pro vybudování kanceláří či pro maloobchodní sektor. Doporučujeme prohlídku nemovitosti. Pro komunikaci uvádějte evidenční číslo zakázky N109811.

Typ zakázky:
Pronájem
Typ nemovitosti:
Komerční
Zastavěná plocha:
123 m²
Užitná plocha:
123 m²
Stav objektu:
Po rekonstrukci
Parkovací místo:
ANO
Energ. nár. budovy:
C - Úsporná
ID zakázky:
N109811
Pro pohyb mapy použijte dva prsty.