1626 nemovitostí v ČESKÉ REPUBLICE
143 nemovitostí v ZAHRANIČÍ

Hlavní město Praha

Středočeský kraj

Jihočeský kraj

Plzeňský kraj

Karlovarský kraj

Ústecký kraj

Liberecký kraj

Královéhradecký kraj

Pardubický kraj

Kraj Vysočina

Jihomoravský kraj

Olomoucký kraj

Moravskoslezský kraj

Zlínský kraj

ZEMĚ

DISPOZICE

CENA A PLOCHA

Cena od
Cena do
Plocha od
Plocha do
Zobrazit nabídky
5 fotografií

Pronájem komerčního objektu Kanceláře, 22 m²

Revoluční 1056/8, Nové Město, Praha
7 737 Kč (za měsíc)
+ záloha na služby 3.714,- Kč + DPH

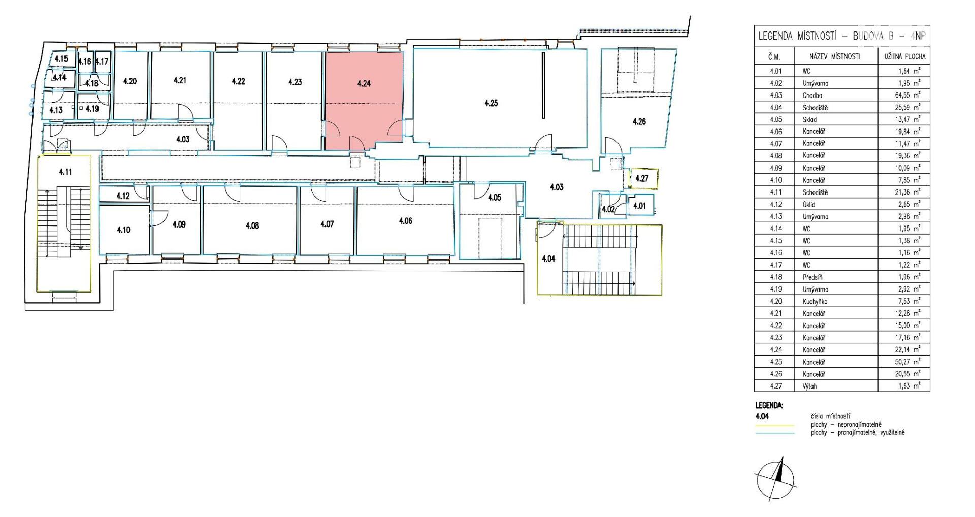
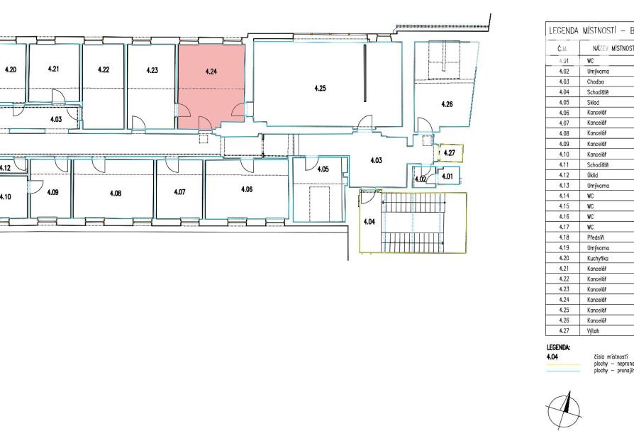
Nabízíme k pronájmu kancelář ve třetím patře administrativní budovy (B) v Praze 1 – Nové Město. Jedná se o prostor č. 4.24 (viz. plánek). Celková výměra v nájmu je 30,95 m2 (kancelář 22,14 m2 + společné prostory 8,81 m2). Budova se nachází na prestižní adrese v centru, nedaleko obchodního centra Palladium. Místo je dobře obslužné veřejnou dopravou, v blízkosti stanice metra „B“ Náměstí Republiky. V okolí velká nabídka služeb. Pro více informací volejte makléřku. Pro komunikaci uvádějte evidenční číslo zakázky N107502.

Typ zakázky:
Pronájem
Typ nemovitosti:
Komerční
Užitná plocha:
22 m²
Plocha pozemku:
22 m²
Stav objektu:
Velmi dobrý
Energ. nár. budovy:
G - Mimořádně nehospodárná
ID zakázky:
N107502
Pro pohyb mapy použijte dva prsty.